Eladó felújítandó ház - Nyékládháza
- INGYENES HIRDETÉS FELADÁS
Ingatlan adatai
- Eladó vagy kiadó:Eladó
- Település:Nyékládháza
- Kategória:Ház
- Alkategória:Családi ház
- Alapterület:140 m2
- Telekterület:1771 m2
- Csere is:Nem
- Hirdető:Cég
- Élő videón megtekinthető:Nem
- Építés éve:1985
- Szobaszám:4 + 1 fél
- Állapot:Felújítandó
- Hány szintes az ingatlan:nincs megadva
- Tetőtér:nincs megadva
- Komfortosság:nincs megadva
- Pince:nincs megadva
- Parkolási lehetőség:nincs megadva
- Fűtés:Egyéb
- Bútorozottság:Bútorozott
- Fényviszony:nincs megadva
- Tájolás:nincs megadva
- Kilátás:nincs megadva
- Internet:nincs megadva
- Klíma:nincs megadva
- Akadálymentesített:nincs megadva
- Energiatanúsítvány:nincs megadva
- Villany:nincs megadva
- Víz:nincs megadva
- Gáz:nincs megadva
- Csatorna:nincs megadva
- Kapcsolatfelvétel

Bártfai Gábor
+36204620909
Mondd meg a hirdetőnek, hogy a megveszLAK-on találtad a hirdetést.
Hitel ajánlatok
Ingatlan hirdetés leírása
Eladó két szintes, két generáció számára is ideális családi há...
Eladó két szintes, két generáció számára is ideális családi ház Nyékládházán!
Nyékládháza kedvelt, ládházi oldalán kínálok megvásárlásra egy 140 m²-es, két szintes, külön bejárattal rendelkező családi házat, amely kiváló lehetőség akár több generáció együttélésére is.
Az ingatlan szilikát falazatú, tetőzetét jó állapotú, minőségi cserép borítja.
Az alsó szint felújítást igényel, míg a felső szint jó állapotú, azonnal lakható.
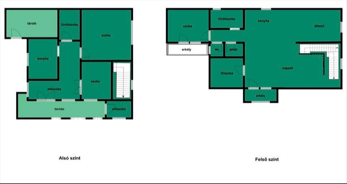
Elrendezése:
Alsó szint: tágas előszoba, 2 szoba, folyosó, konyha, fürdőszoba
Felső szint: előszoba, nagy méretű amerikai konyhás nappali, szoba, félszoba, folyosó, fürdőszoba, külön wc, 2 erkély
A fűtés gázkazánnal és vegyes tüzelésű kazánnal is megoldható, ráadásul szintenként külön szabályozható, ami gazdaságos üzemeltetést biztosít.
A 1771 m²-es telek igazi vidéki nyugalmat kínál:
melléképületek, tárolók, garázs, fedett beálló, filagória és szalonnasütő is helyet kapott. a hátsó kert sík, füvesített, gyümölcsfákkal – tökéletes pihenéshez, kertészkedéshez vagy családi összejövetelekhez.
Nyékládháza egy folyamatosan fejlődő, barátságos kisváros, ahol a nyugodt kertvárosi élet és a jó infrastruktúra találkozik.
Óvoda, orvosi rendelő, üzletek, buszmegálló és vasútállomás mindössze 10 perc sétával elérhetők.
Elhelyezkedése kiváló:
Miskolc: 10 km
Tiszaújváros: 20 km
Autópálya-felhajtó néhány percen belül elérhető
Ajánlom mindazoknak, akik csendes, zöld környezetben szeretnének élni, mégis fontos számukra Miskolc vagy Tiszaújváros közelsége – legyen szó családról, több generációról vagy hosszú távú befektetésről.
Vevőink részére ingyenes banksemleges hiteltanácsadás és ügyintézés biztosított!
Ha párhuzamosan szeretné eladni ingatlanát, de nem tudja, hol kezdje, hívjon bizalommal! FIX 3% lakáshitelre megvehető
Tetszett ez az eladó Nyékládházai felújítandó 4 egész és 1 fél szobás családi ház? Hívd fel a hirdetőt most, és tudj meg mindent erről az eladó családi házról! Ha gondolod nézelődj tovább az eladó ház Nyékládháza oldal hirdetései között. Ennek az eladó háznak az ára 39900000 Ft és mivel az alapterülete 140 négyzetméter, ezért az átlagos négyzetméterára 285000 HUF/m2.
Az eladó házak menüpontban további hirdetések között is böngészhetsz. Ha van kedved, akkor böngészhetsz a Bártfai Gábor összes hirdetése között, vagy akár a/az Immo1 Debrecen - Zsuzsi Irodája összes hirdetése között is.

