Eladó új építésű ház - Nyíregyháza
- INGYENES HIRDETÉS FELADÁS
Ingatlan adatai
- Eladó vagy kiadó:Eladó
- Település:Nyíregyháza
- Kategória:Ház
- Alkategória:Családi ház
- Alapterület:98 m2
- Telekterület:450 m2
- Csere is:Nem
- Hirdető:Cég
- Élő videón megtekinthető:Nem
- Építés éve:2026
- Szobaszám:4
- Állapot:Új építésű
- Hány szintes az ingatlan:Földszintes
- Tetőtér:nincs megadva
- Komfortosság:nincs megadva
- Pince:nincs megadva
- Parkolási lehetőség:nincs megadva
- Fűtés:Hőszivattyús
- Bútorozottság:nincs megadva
- Fényviszony:Napfényes
- Tájolás:DK
- Kilátás:nincs megadva
- Internet:nincs megadva
- Klíma:nincs megadva
- Akadálymentesített:nincs megadva
- Energiatanúsítvány:A++
- Villany:nincs megadva
- Víz:nincs megadva
- Gáz:nincs megadva
- Csatorna:nincs megadva
- Kapcsolatfelvétel

Baloghné Járosi Rita
+36-(20)-366-5877
Mondd meg a hirdetőnek, hogy a megveszLAK-on találtad a hirdetést.
Referencia szám: HZ043266
Hitel ajánlatok
Ingatlan hirdetés leírása
Eladó ház, Nyíregyháza
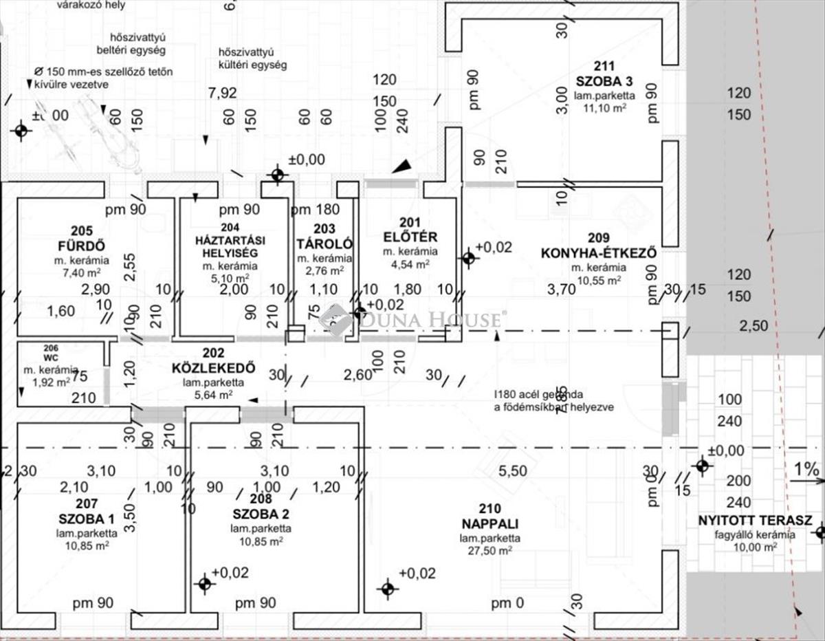
Nyíregyháza Orosi út közelében, Lakóparki környezetben, igényes, szép családi házak szomszédságában, komoly referenciával rendelkező kivitelezőtől eladó egy 450 m² -es telekre épülő, 98, 21 m² -es, nappali - amerikai konyha + 3 szobás új építésű IKERHÁZ. Az ingatlan főbb jellemzői:- Lakótér 95, 45 m² + nyitott terasz 10 m²- nappali-konyha-étkező, 3 hálószoba, fürdőszoba, wc, mosókonyha, közlekedő, előtér, garázs- Külső főfalak: Porotherm 30-as téglafal, a külső falak 15 cm-es grafitos hőszigeteléssel- Belső főfalak: Porotherm 30-as téglafal- Födém: a földszint feletti födém 15/15 cm-es fagerendákból épül. a födém 30 cm üveggyapot hőszigetelést kap. - Nyílászárók: kívül fehér színű műanyag szerkezetű ajtók és ablakok kerülnek beépítésre. - Burkolatok: a helyiségek padlóburkolata kerámia és laminált parketta. - Fűtése: hőszivattyús, padlófűtéssel- a lakáshoz közvetlenül kapcsolódó nyitott teraszon beton térkő burkolat lett tervezve- Korszerű hőszivattyús fűtésrendszer, minden helyiségben padlófűtéssel szerelve- Hőszigetelések: a földszinti padlóban 15 cm lépésálló Nikecell, illetve a garázsban 12 cm grafitos hőszigetelés, a földszint feletti födémben 30 cm hőszigetelés, a külső falakon 15 cm vtg. Hőszigetelés lett tervezve. - a külső térrel érintkező áthidalások és koszorúk 5+15 cm-es hőszigetelést kapnak. Amennyiben hirdetésem felkeltette az érdeklődését, kérem keressen bizalommal elérhetőségeim egyikén! Vevőink részére minden szolgáltatásunk díjmentes! Irodánkban szintén díjmentes hitel-, CSOK plusz, Babaváró, Biztosítások ügyintézése!
Irányár 92900000 Ft
Referencia szám: hz043266 FIX 3% lakáshitelre megvehető
Tetszett ez az eladó Nyíregyházai új építésű 4 szobás családi ház? Hívd fel a hirdetőt most, és tudj meg mindent erről az eladó családi házról! Ha gondolod nézelődj tovább az eladó ház Nyíregyháza oldal hirdetései között. Ennek az eladó háznak az ára 92900000 Ft és mivel az alapterülete 98 négyzetméter, ezért az átlagos négyzetméterára 947959 HUF/m2.
Az eladó házak menüpontban további hirdetések között is böngészhetsz. Ha van kedved, akkor böngészhetsz a Baloghné Járosi Rita összes hirdetése között, vagy akár a/az Duna House Nyíregyháza, Búza tér összes hirdetése között is.

