Eladó átlagos állapotú ház - Nyíregyháza
- INGYENES HIRDETÉS FELADÁS
Ingatlan adatai
- Eladó vagy kiadó:Eladó
- Település:Nyíregyháza
- Kategória:Ház
- Alkategória:Családi ház
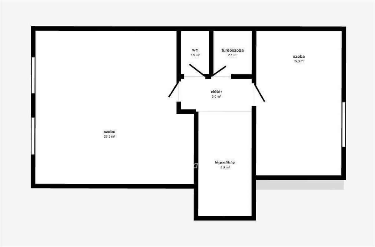
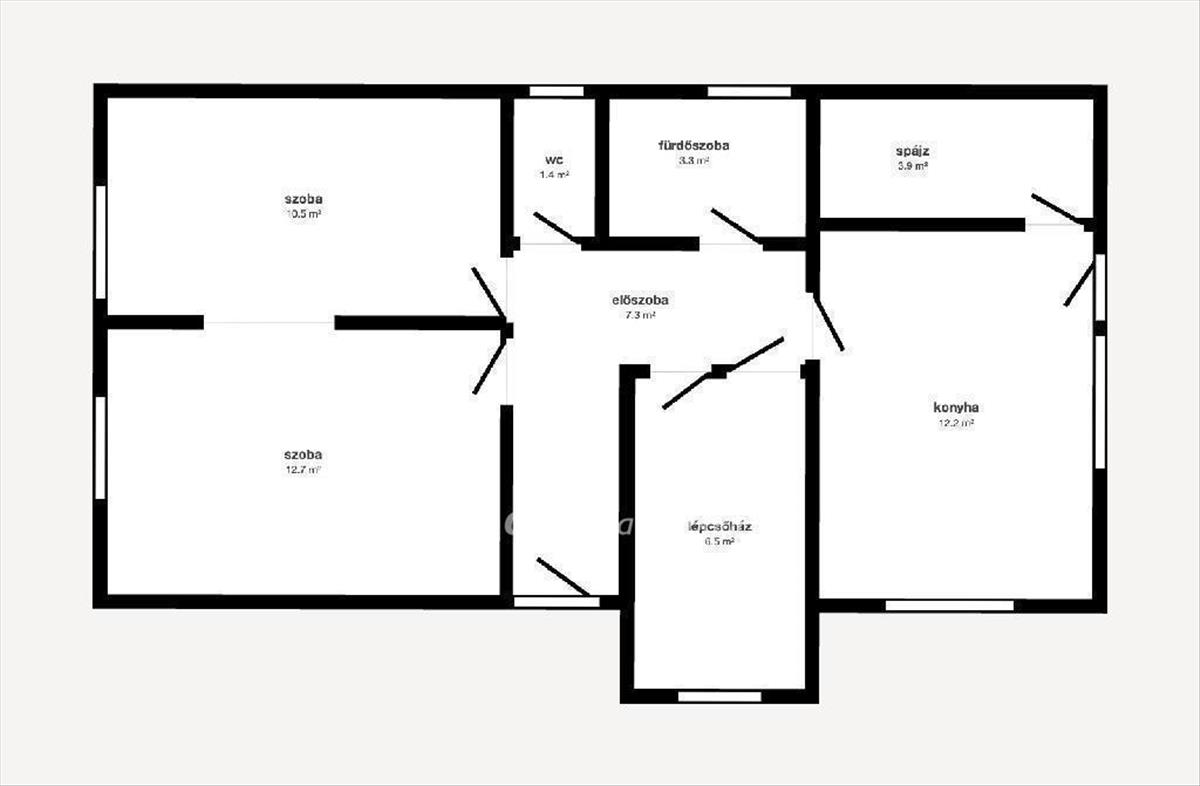
- Alapterület:116 m2
- Telekterület:700 m2
- Csere is:Nem
- Hirdető:Cég
- Élő videón megtekinthető:Nem
- Építés éve:1990
- Szobaszám:3 + 1 fél
- Állapot:Átlagos állapotú
- Hány szintes az ingatlan:2 szintes
- Tetőtér:nincs megadva
- Komfortosság:nincs megadva
- Pince:nincs megadva
- Parkolási lehetőség:nincs megadva
- Fűtés:Egyéb
- Bútorozottság:nincs megadva
- Fényviszony:Napfényes
- Tájolás:nincs megadva
- Kilátás:nincs megadva
- Internet:nincs megadva
- Klíma:nincs megadva
- Akadálymentesített:nincs megadva
- Energiatanúsítvány:A
- Villany:nincs megadva
- Víz:nincs megadva
- Gáz:nincs megadva
- Csatorna:nincs megadva
- Kapcsolatfelvétel

Szabolcsi Vince
+36-(30)-242-9122
Mondd meg a hirdetőnek, hogy a megveszLAK-on találtad a hirdetést.
Referencia szám: M313531
Hitel ajánlatok
Ingatlan hirdetés leírása
Eladó Ház, Nyíregyháza
Eladó családi ház Nyíregyháza-Rozsrétszőlőben
Nyíregyháza-Rozsrétszőlő csendes, rendezett részén eladásra kínálunk egy földszintes, tetőtér-beépítéses, teljesen alápincézett családi házat.
A földszint kb. 70 Nm -es, a tetőtér szintén kb. 70 Nm alapterületű, ahol két szoba és egy fürdőszoba található. a földszinthez egy 8 nm -es terasz kapcsolódik. a tető időtálló betoncseréppel fedett.
Az ingatlan a? 90-Es években épült vázkerámia falazóelemből, az akkori hőtechnikai előírásoknak megfelelően. a víz-, gáz- és villanyvezetékek korszerűek, a meleg vizet elektromos bojler biztosítja.
A fűtés többféleképpen megoldható: gázkazánnal, cserépkályhával vagy elektromos energiával. a tetőn 5 kW-os napelemrendszer működik, amely még 5 évig éves szaldó elszámolású.
A kb. 700 Nm-es telek részben parkosított, részben konyhakertként használható, mérete lehetőséget biztosít az épület bővítésére is.
A környék csendes, kertvárosias, jó lakóközösséggel. Nyíregyháza belvárosa autóval 10 percen belül elérhető, rendszeres buszjárat is közlekedik. a közelben iskola, óvoda, bolt és templom található, az M3-as autópálya felhajtója pedig mindössze 5 percnyire van.
A ház több mint 30 éves, ezért részleges felújítást igényel (festés, tapétázás, kerítés- és lábazatjavítás, kertrendezés).
Az ingatlan tehermentes, azonnal birtokba vehető.
OTP Banki háttérrel díjmentes, gyors ügyintézést biztosítunk finanszírozási és biztosítási igények esetén (pl. Otthon Start Hitelprogram, Babaváró, Falusi csok, CSOK Plusz, lakáshitel, személyi kölcsön stb. ).
Referenciaszám: M313531
Érdeklődni a +36302429122-es telefonszámon lehetséges! FIX 3% lakáshitelre megvehető
Tetszett ez az eladó Nyíregyházai átlagos állapotú 3 egész és 1 fél szobás családi ház? Hívd fel a hirdetőt most, és tudj meg mindent erről az eladó családi házról! Ha gondolod nézelődj tovább az eladó ház Nyíregyháza oldal hirdetései között. Ennek az eladó háznak az ára 58000000 Ft és mivel az alapterülete 116 négyzetméter, ezért az átlagos négyzetméterára 500000 HUF/m2.
Az eladó házak menüpontban további hirdetések között is böngészhetsz. Ha van kedved, akkor böngészhetsz a Szabolcsi Vince összes hirdetése között, vagy akár a/az OTPip Nyíregyháza Dózsa György út 32-34 - OTP Ingatlanpont Iroda összes hirdetése között is.

