Eladó jó állapotú ház - Nyíregyháza
- INGYENES HIRDETÉS FELADÁS
Ingatlan adatai
- Eladó vagy kiadó:Eladó
- Település:Nyíregyháza
- Kategória:Ház
- Alkategória:Családi ház
- Alapterület:137 m2
- Telekterület:991 m2
- Csere is:Nem
- Hirdető:Cég
- Élő videón megtekinthető:Nem
- Építés éve:1995
- Szobaszám:4
- Állapot:Jó állapotú
- Hány szintes az ingatlan:2 szintes
- Tetőtér:nincs megadva
- Komfortosság:nincs megadva
- Pince:nincs megadva
- Parkolási lehetőség:Udvaron
- Fűtés:Gáz (cirko)
- Bútorozottság:nincs megadva
- Fényviszony:Napfényes
- Tájolás:nincs megadva
- Kilátás:nincs megadva
- Internet:nincs megadva
- Klíma:nincs megadva
- Akadálymentesített:nincs megadva
- Energiatanúsítvány:nincs megadva
- Villany:nincs megadva
- Víz:nincs megadva
- Gáz:nincs megadva
- Csatorna:nincs megadva
- Kapcsolatfelvétel

Tóth Zoltán
+36-(20)-390-3546
Mondd meg a hirdetőnek, hogy a megveszLAK-on találtad a hirdetést.
Referencia szám: M315677
Hitel ajánlatok
Ingatlan hirdetés leírása
Eladó Ház, Nyíregyháza
Eladó családi ház Nyíregyháza Borbánya közelében - tágas, belső szintes, dupla garázsos otthon parkosított telken
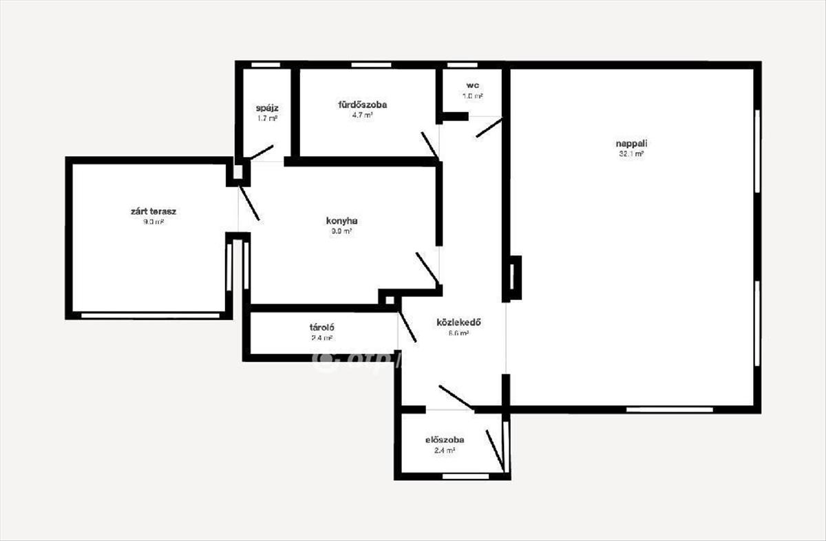
Nyíregyháza kedvelt, kertvárosi részén eladó egy 137 nm alapterületű, belső szintes, tégla építésű családi ház, melyet gondosan karbantartottak és folyamatosan fejlesztettek. Az ingatlan kívülről szigetelt, hőszigetelt műanyag nyílászárókkal felszerelt, így energiatakarékos és kényelmes otthont kínál.
A földszinten egy tágas nappali található, amely igény esetén akár két külön szobává is átalakítható, továbbá konyha, spájz, fürdőszoba és zárt terasz kapott helyet. Az emeleten három külön nyíló szoba, egy újabb fürdőszoba és közlekedő található, így a ház nagyobb család számára is ideális elrendezésű.
A ház alatt dupla állásos garázs biztosít kényelmes parkolást, az udvaron pedig garázs szerelőaknával, borospince, kemence és füstölő is helyet kapott. a fúrott kúttal ellátott, gondosan parkosított kert rendezett, zöld növényzettel és kellemes pihenőrészekkel teszi teljessé az otthon hangulatát.
A fűtésről gázkazán, vegyes tüzelésű kazán, padlófűtés és radiátorok gondoskodnak, így a ház többféle módon is komfortosan fűthető.
Ez az ingatlan kiváló választás azok számára, akik nagy élettérrel rendelkező, kényelmes, sokoldalúan használhat.
OTP Banki hátterünknek köszönhetően finanszírozási igényekben (pl. Otthon Start Hitelprogram, Babaváró, Falusi csok, CSOK Plusz, Lakáshitel, Személyi kölcsön stb. ), Illetve biztosítások tekintetében is díjmentesen, soron kívüli ügyintézéssel segítem ügyfeleim! Referenciaszám: m315677 FIX 3% lakáshitelre megvehető

