Eladó átlagos állapotú ház - Nyíregyháza
- INGYENES HIRDETÉS FELADÁS
Ingatlan adatai
- Eladó vagy kiadó:Eladó
- Település:Nyíregyháza
- Kategória:Ház
- Alkategória:Családi ház
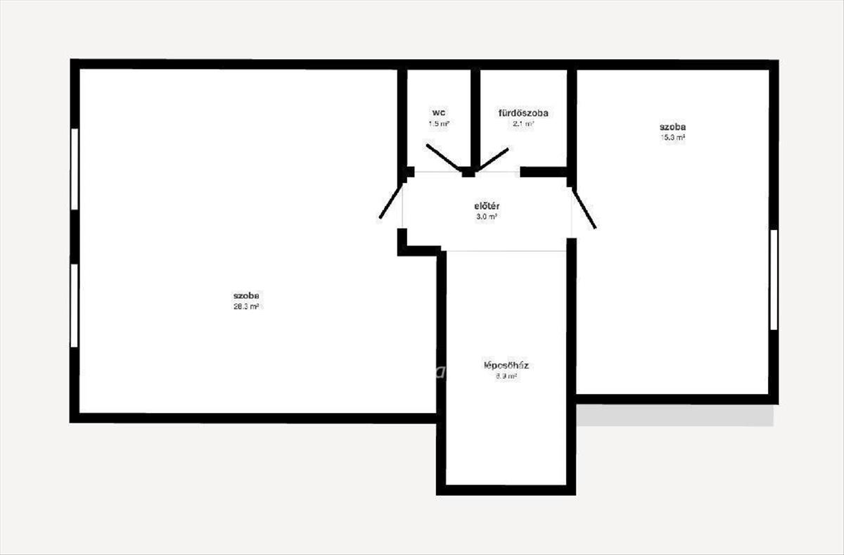
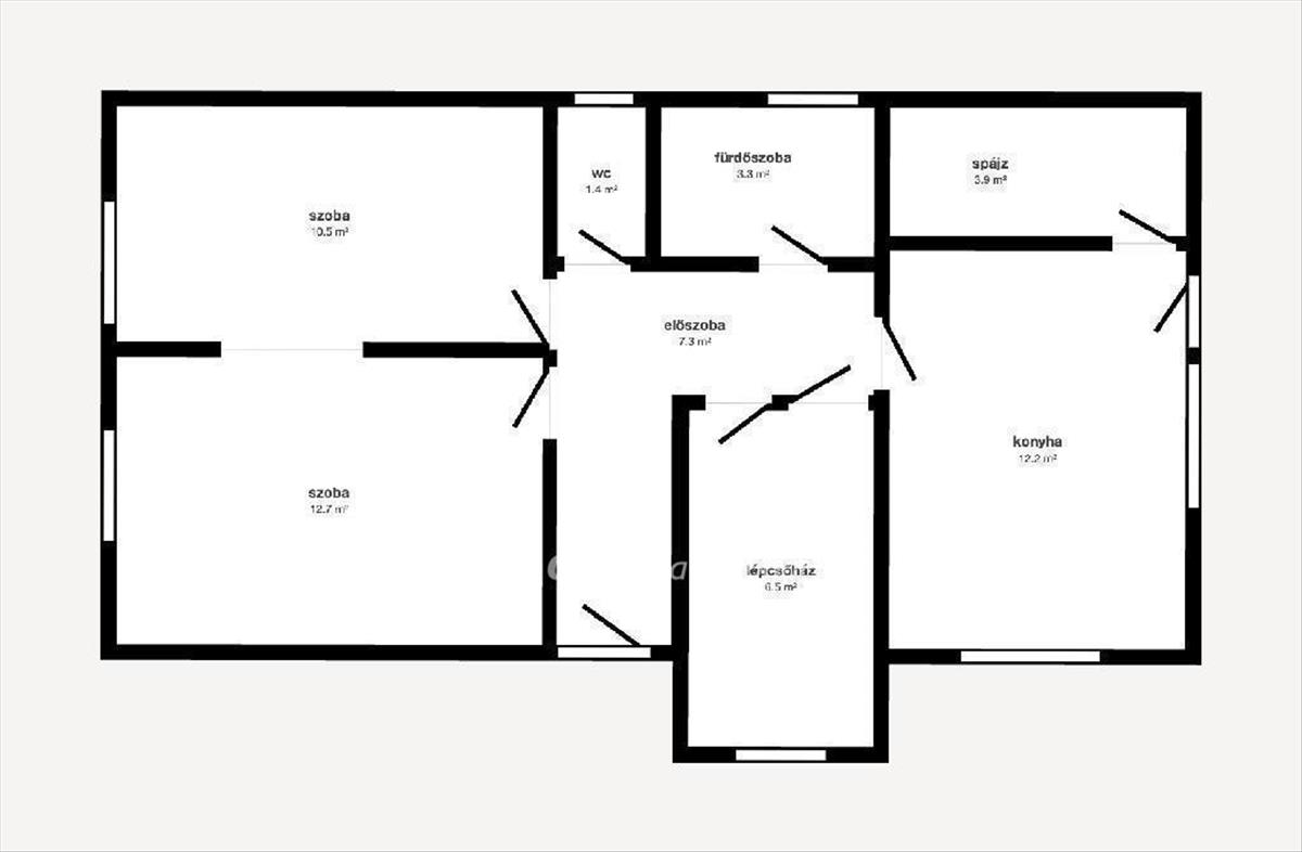
- Alapterület:116 m2
- Telekterület:700 m2
- Csere is:Nem
- Hirdető:Cég
- Élő videón megtekinthető:Nem
- Építés éve:1990
- Szobaszám:3 + 1 fél
- Állapot:Átlagos állapotú
- Hány szintes az ingatlan:2 szintes
- Tetőtér:nincs megadva
- Komfortosság:nincs megadva
- Pince:nincs megadva
- Parkolási lehetőség:nincs megadva
- Fűtés:Egyéb
- Bútorozottság:nincs megadva
- Fényviszony:Napfényes
- Tájolás:nincs megadva
- Kilátás:nincs megadva
- Internet:nincs megadva
- Klíma:nincs megadva
- Akadálymentesített:nincs megadva
- Energiatanúsítvány:nincs megadva
- Villany:nincs megadva
- Víz:nincs megadva
- Gáz:nincs megadva
- Csatorna:nincs megadva
- Kapcsolatfelvétel

Nádasdi Bence
+36-(20)-451-6275
Mondd meg a hirdetőnek, hogy a megveszLAK-on találtad a hirdetést.
Referencia szám: M313531
Hitel ajánlatok
Ingatlan hirdetés leírása
Eladó Ház, Nyíregyháza
Masszív családi ház szaldós napelemmel és hatalmas potenciállal Rozsrétszőlőn!
Kiváló lehetőség Nyíregyháza-Rozsrétszőlő egyik legkedveltebb, csendes utcájában! Eladásra kínálunk egy a 90-es években épült, kétszintes (földszint + tetőtér), teljesen alápincézett családi házat egy 700 nm -es telken. Ez az ingatlan tökéletes választás azoknak, akik egy szerkezetileg stabil, rezsivédett otthont keresnek, amit a saját ízlésükre formálhatnak!
MIÉRT különleges ez az INGATLAN?
Rezsigyilkos megoldás (Éves Szaldós Napelem! ): a tetőn egy 5 kW-os napelemrendszer dolgozik, amely még 5 évig éves szaldó elszámolásban van! Ez hatalmas kincs a mai piacon. a fűtést emellett gázkazánnal, egy hangulatos cserépkályhával vagy akár elektromosan is megoldhatja.
Tágas, élhető terek 3 szinten: a ház teljesen alápincézett, ami rengeteg tárolási lehetőséget nyújt. a kb. 70 Nm-es földszinthez egy 8 nm -es terasz csatlakozik, míg a szintén kb. 70 Nm-es tetőtérben 2 hálószoba és egy fürdőszoba kapott helyet.
Megbízható alapok és korszerűsített vezetékek: a ház vázkerámia falazóelemből épült, a tetőt pedig időtálló betoncserép fedi. a víz-, gáz- és villanyvezetékek már korszerűek, a meleg vizet elektromos bojler biztosítja.
Alakítsa saját képére! a több mint 30 éves épület szerkezetileg kiváló, de esztétikailag (festés, tapétázás, kerítés- és lábazatjavítás) már igényli a törődést. Itt nem mások drága, esetleg Önnek nem tetsző felújítását kell megfizetnie!
Azonnal birtokba vehető: Az ingatlan per- és tehermentes, így a kulcsátadás és a munkálatok megkezdése azonnal megtörténhet.
LOKÁCIÓ – nyugalom és kiváló KÖZLEKEDÉS:
Rozsrétszőlő igazi kertvárosias, jó lakóközösséggel rendelkező rész. a 700 nm -es, részben parkosított telek bőven hagy teret a konyhakertnek, a pihenésnek, vagy akár az épület későbbi bővítésének is. Nyíregyháza belvárosa mindössze 10 perc autóval, az M3-as autópálya felhajtója pedig 5 perc alatt elérhető. Iskola, óvoda, bolt és templom a közvetlen közelben található, és a buszközlekedés is rendszeres.
Ne maradjon le erről a remek ár-érték arányú, azonnal költözhető házról! Várom hívását a megtekintéssel kapcsolatban.
Referenciaszám: m313531 FIX 3% lakáshitelre megvehető
Tetszett ez az eladó Nyíregyházai átlagos állapotú 3 egész és 1 fél szobás családi ház? Hívd fel a hirdetőt most, és tudj meg mindent erről az eladó családi házról! Ha gondolod nézelődj tovább az eladó ház Nyíregyháza oldal hirdetései között. Ennek az eladó háznak az ára 58000000 Ft és mivel az alapterülete 116 négyzetméter, ezért az átlagos négyzetméterára 500000 HUF/m2.
Az eladó házak menüpontban további hirdetések között is böngészhetsz. Ha van kedved, akkor böngészhetsz a Nádasdi Bence összes hirdetése között, vagy akár a/az OTPip Nyíregyháza Sólyom utca 4 - OTP Ingatlanpont Iroda összes hirdetése között is.

