Eladó felújítandó ház - Nyíregyháza (42943563)
ELADÓ INGATLANOK
KIADÓ INGATLANOK
CSERE INGATLANOK
KÜLFÖLDI INGATLANOK
RÉSZLETES KERESÉS
INGATLAN HÍREK
HIRDETÉS FELADÁS
BELÉPÉS
REGISZTRÁCIÓ
hirdetés 1. fotó
hirdetés 2. fotóhirdetés 3. fotó
hirdetés 4. fotóhirdetés 5. fotó
hirdetés 6. fotó
+ 14 fotó
hirdetés 7. fotó
+ 11 fotó
hirdetés 7. fotóhirdetés 8. fotóhirdetés 9. fotóhirdetés 10. fotóhirdetés 11. fotóhirdetés 12. fotóhirdetés 13. fotóhirdetés 14. fotóhirdetés 15. fotóhirdetés 16. fotóhirdetés 17. fotó

Ingatlan adatai

  • Eladó vagy kiadó:Eladó
  • Település:Nyíregyháza
  • Kategória:Ház
  • Alkategória:Családi ház
  • Alapterület:76 m2
  • Telekterület:3572 m2
  • Csere is:Nem
  • Hirdető:Cég
  • Élő videón megtekinthető:Nem
  • Építés éve:1975
  • Szobaszám:2 + 1 fél
  • Állapot:Felújítandó
  • Hány szintes az ingatlan:Földszintes
  • Tetőtér:nincs megadva
  • Komfortosság:nincs megadva
  • Pince:nincs megadva
  • Parkolási lehetőség:Udvaron
  • Fűtés:Elektromos
  • Bútorozottság:nincs megadva
  • Fényviszony:Közepes
  • Tájolás:nincs megadva
  • Kilátás:nincs megadva
  • Internet:nincs megadva
  • Klíma:Van
  • Akadálymentesített:nincs megadva
  • Energiatanúsítvány:nincs megadva
  • Villany:nincs megadva
  • Víz:nincs megadva
  • Gáz:nincs megadva
  • Csatorna:nincs megadva
  • Kapcsolatfelvétel
Konc Richárd
Konc Richárd
+36-(70)-597-3523
Mondd meg a hirdetőnek, hogy a megveszLAK-on találtad a hirdetést.
Referencia szám: M310599
Érdekel kedvezményes lakáshitel ajánlat is
Az ASZF-et és az Adatkezelési tájékoztatót elfogadom

Hitel ajánlatok

 

Ingatlan hirdetés leírása

Eladó Ház, Nyíregyháza


Eladó gazdálkodásra alkalmas családi ház Nyíregyháza közelében, hatalmas telekkel és melléképületekkel!

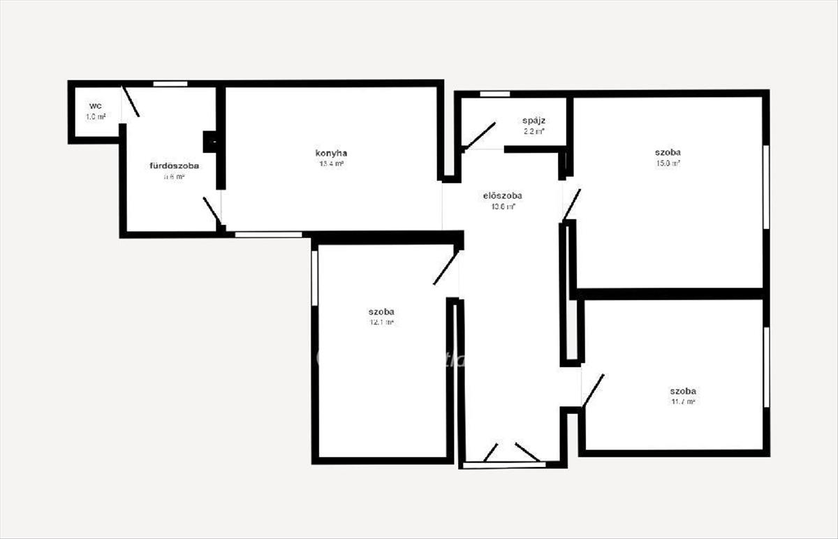
Nyíregyháza belvárosától mindössze 10 perc autóútra, nyugodt, csendes környezetben kínálunk eladásra egy 76 nm-es, vegyes falazatú, stabil szerkezetű családi házat, mely 1975-ben épült. Az ingatlan 2, 5 szobával, konyhával, fürdőszobával és külön WC-vel, kamrával és nyári konyhával rendelkezik.

A ház teljes felújítást igényel, így az új tulajdonos saját igényei szerint alakíthatja ki otthonát vagy gazdaságát.

Főbb jellemzők:

3572 nm-es, tágas telek - kiváló lehetőség kertészkedésre, gazdálkodásra, állattartásra,

melléképületek - melyek alkalmasak állattartásra vagy tárolásra,

könnyen megközelíthető - mégis nyugodt, vidéki környezet.

Ez az ingatlan ideális választás lehet mindazok számára, akik szeretnének kisgazdaságot indítani, állatokat tartani, vagy egyszerűen csak nagy kerttel rendelkező otthonra vágynak a város közelében.

OTP Banki hátterünknek köszönhetően finanszírozási igényekben (pl. Otthon Start Hitelprogram, Babaváró, Falusi csok, CSOK Plusz, Lakáshitel, Személyi kölcsön stb. ), Illetve biztosítások tekintetében is díjmentesen, soron kívüli ügyintézéssel segítem ügyfeleim! Referenciaszám: m310599 FIX 3% lakáshitelre megvehető
 
 

Hasonló ingatlan hirdetések

 
 
© megveszLAK.hu - Az egyszerűen jó ingatlan hirdetési oldal