Eladó átlagos állapotú ház - Nyíregyháza
- INGYENES HIRDETÉS FELADÁS
Ingatlan adatai
- Eladó vagy kiadó:Eladó
- Település:Nyíregyháza
- Kategória:Ház
- Alkategória:Családi ház
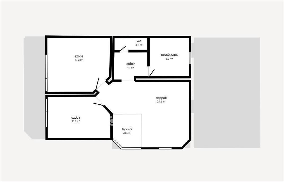
- Alapterület:183 m2
- Telekterület:480 m2
- Csere is:Nem
- Hirdető:Cég
- Élő videón megtekinthető:Nem
- Építés éve:1990
- Szobaszám:4
- Állapot:Átlagos állapotú
- Hány szintes az ingatlan:3 szintes
- Tetőtér:nincs megadva
- Komfortosság:nincs megadva
- Pince:nincs megadva
- Parkolási lehetőség:nincs megadva
- Fűtés:Gáz (cirko)
- Bútorozottság:nincs megadva
- Fényviszony:Napfényes
- Tájolás:nincs megadva
- Kilátás:nincs megadva
- Internet:nincs megadva
- Klíma:nincs megadva
- Akadálymentesített:nincs megadva
- Energiatanúsítvány:A+
- Villany:nincs megadva
- Víz:nincs megadva
- Gáz:nincs megadva
- Csatorna:nincs megadva
- Kapcsolatfelvétel

Takács Jánosné
+36-(20)-510-2695
Mondd meg a hirdetőnek, hogy a megveszLAK-on találtad a hirdetést.
Referencia szám: M310550
Hitel ajánlatok
Ingatlan hirdetés leírása
Eladó Ház, Nyíregyháza
Álomház nagycsaládoknak, költözzön be azonnal!
Csendes, biztonságos környezetben, minden fontos szolgáltatáshoz közel kínálunk eladásra egy 3 szintes, 183 nm -es, rendkívül tágas és napfényes családi házat, amelyhez további 120 nm pince tartozik. Ez az ingatlan valódi ritkaság a piacon, tökéletes választás nagycsaládosoknak vagy azoknak, akik kényelmes, sokoldalúan használható otthonra vágynak.
A belső elrendezés átgondolt és praktikus:
4 kényelmes hálószoba
világos nappali és galéria
tágas konyha-étkező
2 fürdőszoba és 2 külön WC
A pince szint különleges extrákat kínál:
wellness részleg a feltöltődéshez
játszószoba a gyerekeknek
2 nagy méretű garázs autóknak és tárolásra
A 480 nm -es, gondozott telek igazi nyugalomsziget, ahol a gyerekek biztonságban játszhatnak, a felnőttek pedig kertet, veteményest vagy pihenőkertet alakíthatnak ki.
További előnyök:
gázfűtés
több tárolóhely
családbarát, nyugodt környezet
óvoda, iskola, üzletek és tömegközlekedés néhány perc sétára
Ez a ház egyszerre kínál kényelmet, eleganciát és biztonságot? Ideális választás mindazoknak, akik a város zajától távol, mégis könnyen elérhető helyen szeretnének élni.
OTP Banki hátterünkkel díjmentesen, soron kívül segítünk minden finanszírozási igényben (Babaváró, Falusi csok, CSOK Plusz, Lakáshitel, Személyi kölcsön), valamint biztosítási ügyekben is.
Referenciaszám: M 310550
Referencia szám: m310550 FIX 3% lakáshitelre megvehető
Tetszett ez az eladó Nyíregyházai átlagos állapotú 4 szobás családi ház? Hívd fel a hirdetőt most, és tudj meg mindent erről az eladó családi házról! Ha gondolod nézelődj tovább az eladó ház Nyíregyháza oldal hirdetései között. Ennek az eladó háznak az ára 102000000 Ft és mivel az alapterülete 183 négyzetméter, ezért az átlagos négyzetméterára 557377 HUF/m2.
Az eladó házak menüpontban további hirdetések között is böngészhetsz. Ha van kedved, akkor böngészhetsz a Takács Jánosné összes hirdetése között, vagy akár a/az OTPip Nyíregyháza Dózsa György út 32-34 - OTP Ingatlanpont Iroda összes hirdetése között is.

