Eladó átlagos állapotú ház - Nyíregyháza
- INGYENES HIRDETÉS FELADÁS
Ingatlan adatai
- Eladó vagy kiadó:Eladó
- Település:Nyíregyháza
- Kategória:Ház
- Alkategória:Családi ház
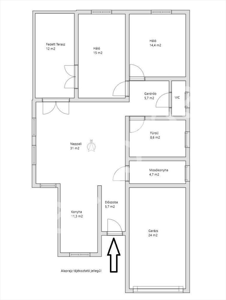
- Alapterület:117 m2
- Telekterület:668 m2
- Csere is:Nem
- Hirdető:Cég
- Élő videón megtekinthető:Nem
- Építés éve:2016
- Szobaszám:2 + 1 fél
- Állapot:Átlagos állapotú
- Hány szintes az ingatlan:nincs megadva
- Tetőtér:nincs megadva
- Komfortosság:nincs megadva
- Pince:nincs megadva
- Parkolási lehetőség:Garázsban
- Fűtés:Egyéb
- Bútorozottság:nincs megadva
- Fényviszony:nincs megadva
- Tájolás:nincs megadva
- Kilátás:nincs megadva
- Internet:nincs megadva
- Klíma:Van
- Akadálymentesített:nincs megadva
- Energiatanúsítvány:nincs megadva
- Villany:nincs megadva
- Víz:nincs megadva
- Gáz:nincs megadva
- Csatorna:nincs megadva
- Kapcsolatfelvétel

Ivánku Szabina
+36302789685
Mondd meg a hirdetőnek, hogy a megveszLAK-on találtad a hirdetést.
Hitel ajánlatok
Ingatlan hirdetés leírása
Nyíregyháza–Sóstóhegy egyik legkedveltebb, csendes utcájában, ...
Nyíregyháza–Sóstóhegy egyik legkedveltebb, csendes utcájában, az Aranykalász sor közelében kínáljuk megvételre ezt a különleges hangulatú, önálló családi házat, ahol a minőség, az elegancia és a nyugalom tökéletes összhangban találkozik.
A 668 m²-es, gondosan parkosított telek valódi privát oázist teremt: térkövezett udvar, automata öntözőrendszer és egy esztétikusan kialakított medence, amely a nyári napok luxus élményét biztosítja – mindezt zavartalan környezetben.
A 117 m²-es, letisztult belső tér tágas, világos kialakítású. Az amerikai konyhás nappali a ház központi élettere, ahonnan – csakúgy, mint a hálószobából – közvetlen kijárat nyílik a teraszra és a kertre. a térkapcsolatok és az anyaghasználat minden részletében a prémium életérzést szolgálják.
Az otthon elrendezése:
elegáns amerikai konyhás nappali
2 kényelmes hálószoba
külön gardróbszoba
minőségi burkolatokkal kialakított helyiségek
A komfortérzetet padlófűtés biztosít a nappaliban, konyhában és fürdőben, a hálószobákban radiátoros hőleadással kiegészítve, valamint klímaberendezés is beépítésre került.
A 23, 4 m²-es, fűtött garázs elektromos kapuval ellátott.
A mindössze két éves, teljesen gépesített, prémium minőségű konyhabútor a vételár részét képezi.
Műszaki tartalom – kompromisszumok nélkül:
masszív tégla falazat
15 cm-es hőszigetelés
modern műanyag, hőszigetelt nyílászárók
redőnyök, a nappaliban és a hálószobában elektromos kivitelben
riasztórendszer
a medence fűtésének előkészítése megtörtént
Az ingatlan 2016-ban épült, folyamatosan karbantartott, megjelenésében és műszaki tartalmában is időtálló, modern otthon.
Ez a ház nem csupán egy ingatlan, hanem életstílus-választás azok számára, akik a magas színvonalat, a nyugalmat és az exkluzív környezetet keresik Sóstóhegy egyik legjobb részén.
Irányár: 98 900 000 Ft
Ivánku Szabina
06/30-278 96 85
ivankuszabina@ingatlanbar. Hu FIX 3% lakáshitelre megvehető
Tetszett ez az eladó Nyíregyházai átlagos állapotú 2 egész és 1 fél szobás családi ház? Hívd fel a hirdetőt most, és tudj meg mindent erről az eladó családi házról! Ha gondolod nézelődj tovább az eladó ház Nyíregyháza oldal hirdetései között. Ennek az eladó háznak az ára 98900000 Ft és mivel az alapterülete 117 négyzetméter, ezért az átlagos négyzetméterára 845299 HUF/m2.
Az eladó házak menüpontban további hirdetések között is böngészhetsz. Ha van kedved, akkor böngészhetsz a Ivánku Szabina összes hirdetése között, vagy akár a/az IngatlanBár Nyíregyháza összes hirdetése között is.

