Eladó jó állapotú ház - Nyíregyháza (63339437)
+ 28 fotó
hirdetés 1. fotó

Eladó jó állapotú ház Nyíregyháza

árcsökkenés figyelő
Kedvencbe Megosztás Árfigyelő
FIX 3% lakáshitelre megvehető
95 000 000 HUF

Ingatlan adatai

  • Eladó vagy kiadó:Eladó
  • Település:Nyíregyháza
  • Kategória:Ház
  • Alkategória:Családi ház
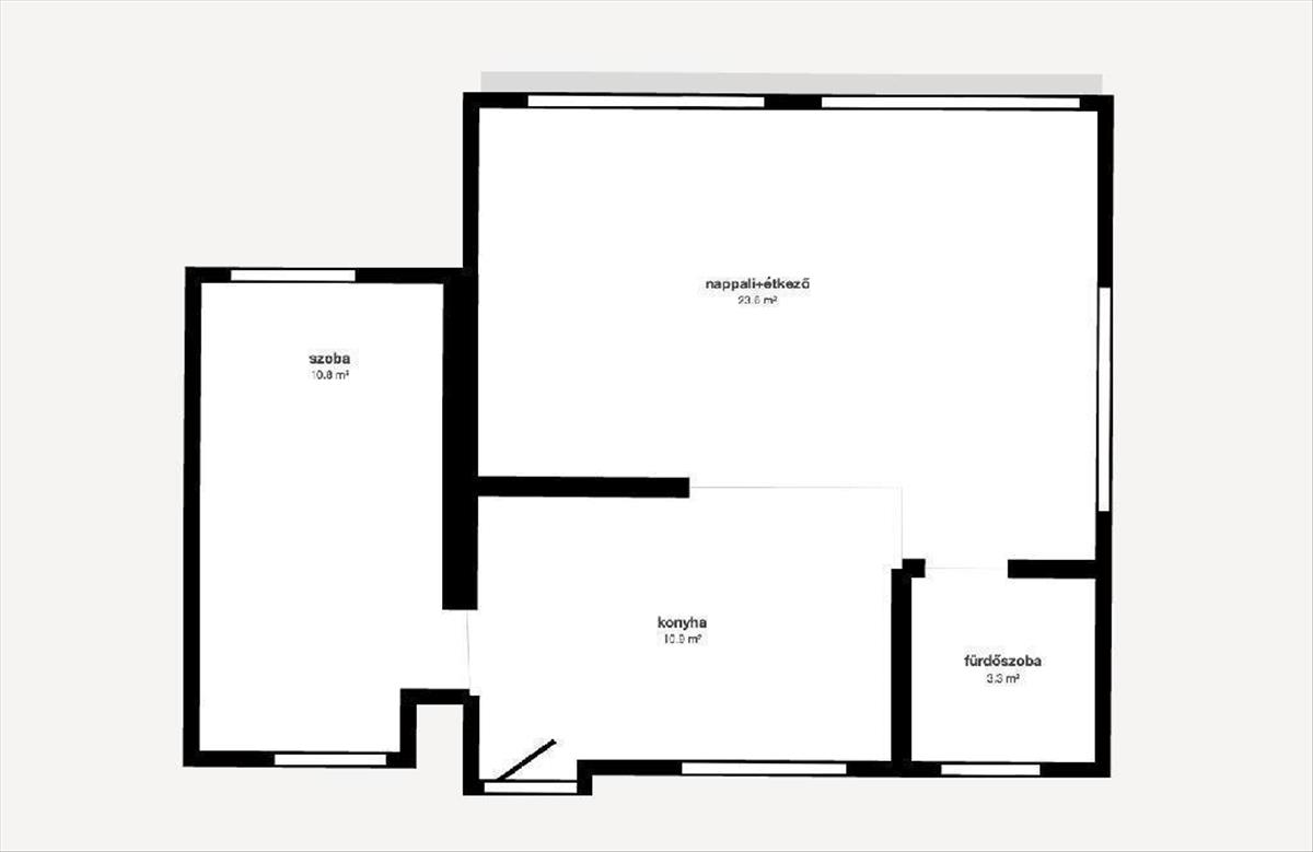
  • Alapterület:75 m2
  • Telekterület:469 m2
  • Csere is:Nem
  • Hirdető:Cég
  • Élő videón megtekinthető:Nem
  • Építés éve:1980
  • Szobaszám:3 + 1 fél
  • Állapot:Jó állapotú
  • Hány szintes az ingatlan:Földszintes
  • Tetőtér:nincs megadva
  • Komfortosság:nincs megadva
  • Parkolási lehetőség:Teremgarázsban
  • Fűtés:Gáz (cirko)
  • Bútorozottság:nincs megadva
  • Fényviszony:Napfényes
  • Tájolás:nincs megadva
  • Kilátás:nincs megadva
  • Internet:nincs megadva
  • Klíma:Van
  • Akadálymentesített:nincs megadva
  • Energiatanúsítvány:nincs megadva
  • Villany:nincs megadva
  • Víz:nincs megadva
  • Gáz:nincs megadva
  • Csatorna:nincs megadva
INGYENES HIRDETÉS FELADÁS
  • Üzenetküldés
  • Hívás
Érdekel kedvezményes lakáshitel ajánlat is
Az ASZF-et és az Adatkezelési tájékoztatót elfogadom
Lukács Lóránt
Lukács Lóránt
Mondd meg a hirdetőnek, hogy a megveszLAK-on találtad a hirdetést.
Referencia szám: M315883
ingatlan mutatása térképen

Hitel ajánlat

Ingatlan hirdetés leírása

Eladó Ház, Nyíregyháza

Sóstófürdő kedvelt, csendes és mégis frekventált részén eladásra kínálok gyönyörű környezetben egy szintes, gondosan karbantartott, rendezett, parkosított, 75 nm hasznos alapterületű családi házat, 469 négyzetméteres telken.
Az ingatlan földszintjén amerikai konyhás nappali, egy hálószoba, valamint fürdőszoba és wc egyben található.
Az emeleten két külön nyíló szoba és egy wc kapott helyet. Az alagsorban 18 négyzetméteres garázs, tárolóhelyiségek, konyha és spájz biztosítanak további kényelmet.
A ház fűtését gáz cirkó kazán biztosítja, a konyhában padlófűtéssel, a többi helyiségben radiátorokkal. a komfortot és biztonságot riasztórendszer, hűtő-fűtő klíma, valamint hőszigetelt borovi fenyő nyílászárók teszik teljessé. a ház kelet-dél-nyugati tájolású, így egész nap világos és napfényes.
2023-Ban a külső átalakítási felújításhoz tervrajz készült, jelenleg folyamatban van a terasz építése és a homlokzati szigetelés, melyek a vételár részét képezik.
Ideális választás családoknak, akik nyugodt, mégis jól megközelíthető környezetben keresnek kényelmes, hangulatos otthont. Várom hívását akár hétvégén is!
OTP Banki hátterünknek köszönhetően finanszírozási igényekben (pl. Otthon Start Hitelprogram, Babaváró, Falusi csok, CSOK Plusz, Lakáshitel, Személyi kölcsön stb. ), Illetve biztosítások tekintetében is díjmentesen, soron kívüli ügyintézéssel segítem ügyfeleim! Referenciaszám: M315883
Virtuális séta: https://my. Matterport. Com/show/? M=KGM1eSEpZE7 FIX 3% lakáshitelre megvehető

Hasonló ingatlan hirdetések




Felhívom
© megveszLAK.hu
Az egyszerűen jó ingatlan hirdetési oldal