Eladó jó állapotú ház - Nyírjákó
- INGYENES HIRDETÉS FELADÁS
Ingatlan adatai
- Eladó vagy kiadó:Eladó
- Település:Nyírjákó
- Kategória:Ház
- Alkategória:Családi ház
- Alapterület:90 m2
- Telekterület:7785 m2
- Csere is:Nem
- Hirdető:Cég
- Élő videón megtekinthető:Nem
- Építés éve:1990
- Szobaszám:3
- Állapot:Jó állapotú
- Hány szintes az ingatlan:Földszintes
- Tetőtér:nincs megadva
- Komfortosság:nincs megadva
- Pince:nincs megadva
- Parkolási lehetőség:Garázsban
- Fűtés:nincs megadva
- Bútorozottság:nincs megadva
- Fényviszony:nincs megadva
- Tájolás:nincs megadva
- Kilátás:nincs megadva
- Internet:nincs megadva
- Klíma:nincs megadva
- Akadálymentesített:nincs megadva
- Energiatanúsítvány:nincs megadva
- Villany:nincs megadva
- Víz:nincs megadva
- Gáz:nincs megadva
- Csatorna:nincs megadva
- Kapcsolatfelvétel

Kissné Orosz Ildikó Kr...
+36-20-468-0753
Mondd meg a hirdetőnek, hogy a megveszLAK-on találtad a hirdetést.
Hitel ajánlatok
Ingatlan hirdetés leírása
Nyírjákó főutcáján, központ közeli elhelyezkedéssel eladásra k...
Nyírjákó főutcáján, központ közeli elhelyezkedéssel eladásra kínálok egy szilikát építésű, 90 nm -es, 3 szobás családi házat 7785 nm -es telken.
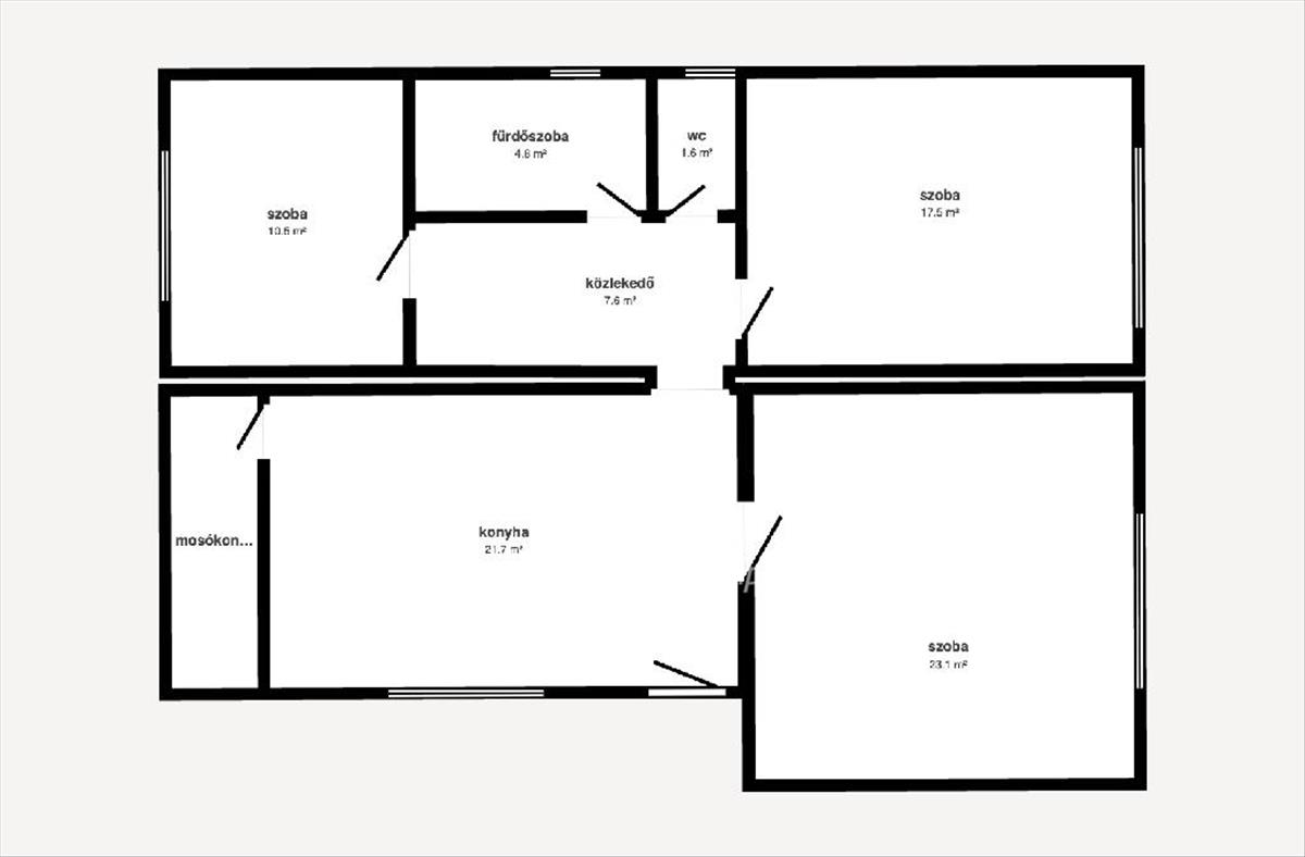
Az ingatlan praktikus elosztású, külön bejáratú szobákkal rendelkezik. Helyiségek: 3 szoba, konyha étkezővel, fürdőszoba /fürdőkáddal és zuhanyzóval/, külön wc, közlekedő /ahol egy hatalmas beépített gardrób szekrény kapott helyet/, mosókonyha. a házhoz egy nagy, fedett terasz is tartozik, amely kellemes pihenési lehetőséget biztosít.
A ház műszaki állapota kiváló, 2015-ben teljes elektromos hálózat csere történt. a nyílászárók háromrétegű, műanyag hőszigetelt ablakok, mindenhol redőnnyel és szúnyoghálóval felszerelve.
A fűtést vegyes tüzelésű kazán és gázkazán biztosítja, melyet hűtő-fűtő klíma egészít ki a komfort növelése érdekében. a meleg víz ellátása villanybojlerrel megoldott. Az ingatlan energiahatékonyságát egy 5 kW teljesítményű napelem rendszer segíti.
A tető cserépfedésű, a tetőtér beépíthető, így további lakótér kialakítására is lehetőség van. a ház háromnegyed része alatt pince található.
A körbekerített udvaron garázs is helyet kapott, az udvarra való bejutást elektromos kapu könnyíti meg. Az ingatlan riasztórendszerrel felszerelt.
A 7785 nm -es telek mérete miatt gazdálkodásra, állattartásra vagy akár további fejlesztésre is kiváló lehetőséget biztosít.
Megtekintésért keressen bizalommal, akár hétvégén is!
OTP Banki hátterünknek köszönhetően finanszírozási igényekben (pl. Otthon Start Hitelprogram, Babaváró, Falusi csok, CSOK Plusz, Lakáshitel, Személyi kölcsön stb. ), Illetve biztosítások tekintetében is díjmentesen, soron kívüli ügyintézéssel segítem ügyfeleim! Referenciaszám: M324192
Virtuális séta: https://my. Matterport. Com/show/? M=q0ki1sg3hdmpmpke738t2mtpd&views=0&mls=1 FIX 3% lakáshitelre megvehető
Tetszett ez az eladó Nyírjákói jó állapotú 3 szobás családi ház? Hívd fel a hirdetőt most, és tudj meg mindent erről az eladó családi házról! Ha gondolod nézelődj tovább az eladó ház Nyírjákó oldal hirdetései között. Ennek az eladó háznak az ára 39700000 Ft és mivel az alapterülete 90 négyzetméter, ezért az átlagos négyzetméterára 441111 HUF/m2.
Az eladó házak menüpontban további hirdetések között is böngészhetsz. Ha van kedved, akkor böngészhetsz a Kissné Orosz Ildikó Krisztina összes hirdetése között, vagy akár a/az Nyíregyháza Bocskai utca 18-20 - OTP Ingatlanpont Iroda összes hirdetése között is.

