Eladó átlagos állapotú ház - Nyírtelek
- INGYENES HIRDETÉS FELADÁS
Ingatlan adatai
- Eladó vagy kiadó:Eladó
- Település:Nyírtelek
- Kategória:Ház
- Alkategória:Családi ház
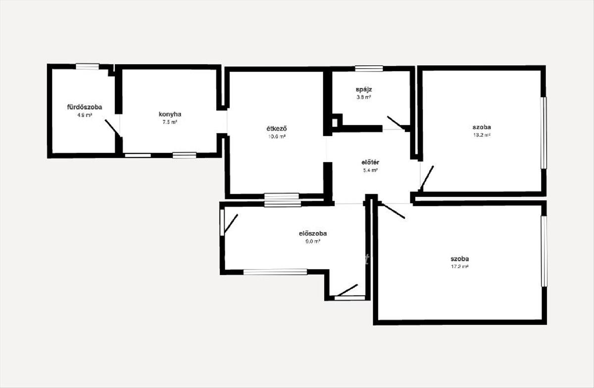
- Alapterület:72 m2
- Telekterület:1061 m2
- Csere is:Nem
- Hirdető:Cég
- Élő videón megtekinthető:Nem
- Építés éve:1986
- Szobaszám:3
- Állapot:Átlagos állapotú
- Hány szintes az ingatlan:Földszintes
- Tetőtér:nincs megadva
- Komfortosság:nincs megadva
- Pince:nincs megadva
- Parkolási lehetőség:Garázsban
- Fűtés:Gáz (konvektor)
- Bútorozottság:nincs megadva
- Fényviszony:nincs megadva
- Tájolás:nincs megadva
- Kilátás:nincs megadva
- Internet:nincs megadva
- Klíma:nincs megadva
- Akadálymentesített:nincs megadva
- Energiatanúsítvány:nincs megadva
- Villany:nincs megadva
- Víz:nincs megadva
- Gáz:nincs megadva
- Csatorna:nincs megadva
- Kapcsolatfelvétel

Kissné Orosz Ildikó Kr...
+36-20-468-0753
Mondd meg a hirdetőnek, hogy a megveszLAK-on találtad a hirdetést.
Hitel ajánlatok
Ingatlan hirdetés leírása
Nyírtelek Dózsa szőlő városrészében, a Puskin utcában eladó eg...
Nyírtelek Dózsa szőlő városrészében, a Puskin utcában eladó egy 3 szobás, külön nyíló helyiségekkel rendelkező családi ház nyugodt, biztonságos környezetben, jó szomszédsággal, berendezéssel együtt. Az ingatlan vegyes falazatú, tégla és tufa szerkezetű, gázkonvektoros fűtéssel. a ház belső tere felújítandó, így az új tulajdonos saját igényei szerint alakíthatja ki, míg külső állapota rendezett, szigetelt, cseréptetővel ellátott. a fa nyílászárók műanyag redőnyökkel felszereltek.
A telken melléképületek találhatók, az udvaron fúrt kút is rendelkezésre áll. a körülbelül 450 m2-es telek akácfákkal beültetett, kellemes, természetközeli hangulatot biztosít. a közelben buszmegálló, kisbolt, iskola és gyógyszertár is elérhető, így a mindennapi élet kényelmesen megoldható. Az ingatlan tehermentes, hitelképes, akár azonnal birtokba vehető.
OTP Banki hátterünknek köszönhetően finanszírozási igényekben (pl. Otthon Start Hitelprogram, Babaváró, Falusi csok, CSOK Plusz, Lakáshitel, Személyi kölcsön stb. ), Illetve biztosítások tekintetében is díjmentesen, soron kívüli ügyintézéssel segítem ügyfeleim! Referenciaszám: M321484
Virtuális séta: https://my. Matterport. Com/show/? M=mn8b4eeewsdq6h1y4if9fha0d&views=0&mls=1 FIX 3% lakáshitelre megvehető
Tetszett ez az eladó Nyírteleki átlagos állapotú 3 szobás családi ház? Hívd fel a hirdetőt most, és tudj meg mindent erről az eladó családi házról! Ha gondolod nézelődj tovább az eladó ház Nyírtelek oldal hirdetései között. Ennek az eladó háznak az ára 29700000 Ft és mivel az alapterülete 72 négyzetméter, ezért az átlagos négyzetméterára 412500 HUF/m2.
Az eladó házak menüpontban további hirdetések között is böngészhetsz. Ha van kedved, akkor böngészhetsz a Kissné Orosz Ildikó Krisztina összes hirdetése között, vagy akár a/az Nyíregyháza Bocskai utca 18-20 - OTP Ingatlanpont Iroda összes hirdetése között is.

