Eladó jó állapotú ház - Nyírtelek
- INGYENES HIRDETÉS FELADÁS
Ingatlan adatai
- Eladó vagy kiadó:Eladó
- Település:Nyírtelek
- Kategória:Ház
- Alkategória:Családi ház
- Alapterület:187 m2
- Telekterület:4257 m2
- Csere is:Nem
- Hirdető:Cég
- Élő videón megtekinthető:Nem
- Építés éve:1995
- Szobaszám:4 + 1 fél
- Állapot:Jó állapotú
- Hány szintes az ingatlan:2 szintes
- Tetőtér:nincs megadva
- Komfortosság:nincs megadva
- Pince:nincs megadva
- Parkolási lehetőség:Teremgarázsban
- Fűtés:Gáz (cirko)
- Bútorozottság:nincs megadva
- Fényviszony:Jó
- Tájolás:nincs megadva
- Kilátás:nincs megadva
- Internet:nincs megadva
- Klíma:nincs megadva
- Akadálymentesített:nincs megadva
- Energiatanúsítvány:nincs megadva
- Villany:nincs megadva
- Víz:nincs megadva
- Gáz:nincs megadva
- Csatorna:nincs megadva
- Kapcsolatfelvétel

Szücs-Hajdú Angelika
+36-(70)-262-4299
Mondd meg a hirdetőnek, hogy a megveszLAK-on találtad a hirdetést.
Referencia szám: M318959
Hitel ajánlatok
Ingatlan hirdetés leírása
Eladó Ház, Nyírtelek
Nyírtelken venne tágas családi házat?
Akkor ez az Ön kihagyhatatlan lehetősége!
Nyírtelken eladó egy tágas, kivételes adottságokkal rendelekző családi ház.
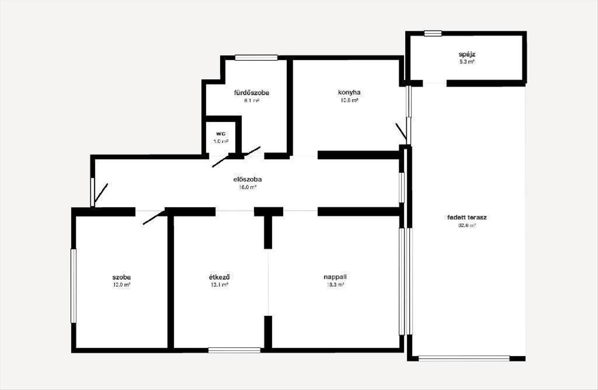
Az ingatlan vegyes falazattal épült, szilikát és tufa felhasználásával, stabil szerkezettel rendelkezik. Hasznos alapterülete 187 négyzetméter, két szinten kialakítva 4 tágas szobával, amely jól átgondolt térszerkezetet és kényelmes életteret biztosít.
A fűtés többféle megoldással is megoldott, vegyes tüzelésű kazán, kombi rendszer és kandalló is rendelkezésre áll, így a fenntartás rugalmasan alakítható.
A földszinten fa nyílászárók találhatók, míg az emeleti szinten korszerű műanyag nyílászárók kerültek beépítésre, hozzájárulva a jobb hőszigeteléshez és komfortérzethez.
Az épülethez egy szép, tágas, fedett terasz is tartozik, amely kiváló helyszíne lehet családi összejöveteleknek vagy pihenésnek.
A telek mérete 4257 négyzetméter, amely bőséges lehetőséget kínál kertészkedésre, gazdálkodásra vagy további fejlesztésekre. Az ingatlan csendes, nyugodt környezetben helyezkedik el, rendezett, barátságos szomszédsággal.
A mindennapi élethez szükséges intézmények könnyen elérhetők, körülbelül 1, 5 kilométeres távolságon belül megtalálható gyógyszertár, óvoda, iskola, orvosi és fogorvosi rendelő is.
Ez az ingatlan kiváló lehetőség mindazok számára, akik tágas életteret, nagy telket és nyugodt környezetet keresnek Nyírtelken.
Az ingatlan alkalmas Csok Pluszra illetve Otthon Start Programra is.
OTP Banki hátterünknek köszönhetően finanszírozási igényekben (pl. Otthon Start Hitelprogram, Babaváró, Falusi csok, CSOK Plusz, Lakáshitel, Személyi kölcsön stb. ), Illetve biztosítások tekintetében is díjmentesen, soron kívüli ügyintézéssel segítem ügyfeleim! Referenciaszám: M318959
https://my. Matterport. Com/show/? M=YzV3Xv8t7tM&mls=1
58900000 Ft
Referencia szám: m318959 FIX 3% lakáshitelre megvehető

