Eladó felújított ház - Onga
- INGYENES HIRDETÉS FELADÁS
Ingatlan adatai
- Eladó vagy kiadó:Eladó
- Település:Onga
- Kategória:Ház
- Alkategória:Családi ház
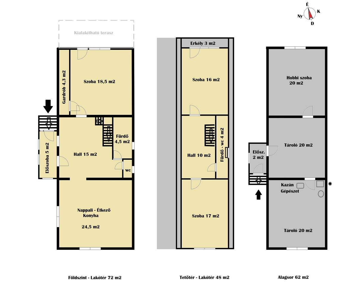
- Alapterület:120 m2
- Telekterület:857 m2
- Csere is:Nem
- Hirdető:Cég
- Élő videón megtekinthető:Nem
- Építés éve:1989
- Szobaszám:4
- Állapot:Felújított
- Hány szintes az ingatlan:nincs megadva
- Tetőtér:nincs megadva
- Komfortosság:nincs megadva
- Pince:nincs megadva
- Parkolási lehetőség:nincs megadva
- Fűtés:nincs megadva
- Bútorozottság:Bútorozott
- Fényviszony:nincs megadva
- Tájolás:nincs megadva
- Kilátás:nincs megadva
- Internet:nincs megadva
- Klíma:Van
- Akadálymentesített:nincs megadva
- Energiatanúsítvány:nincs megadva
- Villany:nincs megadva
- Víz:nincs megadva
- Gáz:nincs megadva
- Csatorna:nincs megadva
- Kapcsolatfelvétel

Siroki Zoltán
+36303337774
Mondd meg a hirdetőnek, hogy a megveszLAK-on találtad a hirdetést.
Hitel ajánlatok
Ingatlan hirdetés leírása
Miskolc közelében Ongán, a Dózsa György utcában, újszerű tetőt...
Miskolc közelében Ongán, a Dózsa György utcában, újszerű tetőtér beépítéses családi ház eladó.
Az ingatlan amerikai konyhás nappalival, 3 szobával, 2 fürdőszobával, 120 m2-es fűtött lakótérrel rendelkezik. Az alagsorban 62 m2-es, 3 helyiségből álló tárolóval, gépészettel, és hobbiszobával, és az udvaron garázzsal várja új tulajdonosát.
A stabil tégla falazatú ház, cserép fedéssel. 1989-Ban készült, és az elmúlt években teljes felújítást követően nyerte el mai modern formáját.
Nagyméretű, 857 m2-es saroktelken kialakított pihenőkerttel, játszótérrel.
Említést érdemlő extrák:
-Az ingatlan ára igény szerint tartalmazza a teljes berendezést.
-Felújított, hangulatos modern épület.
-Hőszigetelt 3 rétegű műanyag nyílászárók.
-Alu távirányítású redőnyök, üvegszálas szúnyoghálók minden ablakon.
-Beépített, gépesített egyedi konyhabútor, étkezővel.
-Vegyes tüzelésű tjk gyártmányú 30 Kw-os kazán. (Pár éves készülék).
-Modern gáz központi fűtés 150l hőtárolóval. (24 Kw-os Vaillant kombi kondenzációs kazán).
-Amerikai konyhás nappali, étkezővel. 3 Db tágas szobával, gardróbbal, erkéllyel.
-A tetőtéri fürdőszoba befejezésével 2 db fürdő, és wc.
-Hőszigetelt Porotherm 30 cm-es falazat, és alagsor (Lakótér 15 cm- Alagsor 12cm xps szigetelés).
-Pár éve komplett cserélt tető. Cserép, esőcsatornák, és tetőtéri ablak is cserélve.
-Hőszigetelt tető. (25 Cm kőzetgyapot szigetelés).
-Természetesen vasbeton födém, Tégla tetőtéri falazat, Szigetelt padlás,
-Hangulatos saroktelek, remek parkolási lehetőségekkel.
-Garázs, játszótér, szalonnasütő. Már elkezdett parkosítással.
-3 Db midea Hűtő-fűtő klímaberendezés.
-Villamos hálózat teljesen cserélve, modernizálva. Érintésvédelmi relével.
-Kamerarendszer.
- Víz, és szennyvíz vezetékek teljes mértékben cserélve.
- Hideg és meleg burkolatok, csempék minden helyiségben cserélve.
-Statikailag, és szerkezetileg kifogástalan állapot. (Kőműves volt a tulaj).
-Minimális rezsivel fenntartható épület.
- Fúrt kút. (Medencéhez, autómosáshoz, és a kert locsolására).
-Utcafronti terasz kialakítására van lehetőség.
-Remek tájolás, egyedi hangulatú, világos, tágas lakótér.
Remek környék, Jó tömegközlekedés, szimpatikus szomszédok. a település központja, iskola, óvoda, orvosi rendelő, élelmiszerbolt pár perc alatt elérhető.
Nagyon kedvelt környék a kedvező ingatlan árak miatt fiatalok körében. Valamint Miskolc közelsége, és a dinamikusan fejlődő település magával ragadó hangulata miatt.
Így várhatóan, rövid ideig lesz elérhető a ház, az ingatlanpiacon.
Kizárólag a mi kínálatunkban szerepel!
Rugalmas megtekintés!
Az ingatlan per, és tehermentes, szinte azonnal birtokba vehető.
További információért keressen bizalommal!
Irodánkban bank független hitellehetőségekkel, ingyenes Csok, Csok +, Otthon start (Fix 3%-os) hitel, és Babaváró ügyintézéssel várjuk. Teljes körű ügyintézés! FIX 3% lakáshitelre megvehető
Tetszett ez az eladó Ongai felújított 4 szobás családi ház? Hívd fel a hirdetőt most, és tudj meg mindent erről az eladó családi házról! Ha gondolod nézelődj tovább az eladó ház Onga oldal hirdetései között. Ennek az eladó háznak az ára 62900000 Ft és mivel az alapterülete 120 négyzetméter, ezért az átlagos négyzetméterára 524167 HUF/m2.
Az eladó házak menüpontban további hirdetések között is böngészhetsz. Ha van kedved, akkor böngészhetsz a Siroki Zoltán összes hirdetése között, vagy akár a/az Express ingatlan Kerek Edina Mária irodája összes hirdetése között is.

