Eladó új építésű ház Őrbottyán
| Kedvencbe | Megosztás | Árfigyelő |
| FIX 3% lakáshitelre megvehető | ||
| 124 900 000 HUF | ||
Ingatlan adatai
- Eladó vagy kiadó:Eladó
- Település:Őrbottyán
- Kategória:Ház
- Alkategória:Családi ház
- Alapterület:118 m2
- Telekterület:820 m2
- Csere is:Nem
- Hirdető:Cég
- Élő videón megtekinthető:Nem
- Építés éve:2026
- Szobaszám:4
- Állapot:Új építésű
- Hány szintes az ingatlan:Földszintes
- Tetőtér:nincs megadva
- Komfortosság:nincs megadva
- Parkolási lehetőség:Beállóban
- Fűtés:Gáz (cirko)
- Bútorozottság:nincs megadva
- Fényviszony:nincs megadva
- Tájolás:nincs megadva
- Kilátás:nincs megadva
- Internet:nincs megadva
- Akadálymentesített:nincs megadva
- Energiatanúsítvány:nincs megadva
- Villany:Van
- Víz:Van
- Gáz:Van
- Csatorna:Van
- Üzenetküldés
- Hívás


Hitel ajánlat
Ingatlan hirdetés leírása
Eladásra kínálok Őrbottyán kiváló kertvárosias részén egy önál...
Eladásra kínálok Őrbottyán kiváló kertvárosias részén egy önálló családiházat, amely építése most kezdődik el.Az amerikai konyhás nappalit 3 hálószoba egészíti ki.
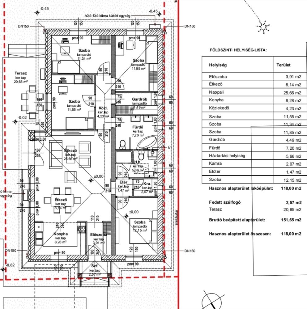
Felosztása:
Előszoba 3, 91 m2
Étkező 8, 14 m2
Nappali 25, 66 m2
Konyha 8, 28 m2
Közlekedő 4, 23 m2
Szoba 11, 55 m2
Szoba 11, 34 m2
Szoba 11, 85 m2
Gardrób 4, 49 m2
Fürdő 7, 20 m2
Háztartási helyiség 5, 66 m2
Kamra 2, 07 m2
Előtér 1, 47 m2
Szoba 12, 15 m2
Összesen: 118, 00 m2
Fedett szélfogó 2, 57 m2
Nyitott terasz 20, 65 m2
Hasznos alapterület összesen: 118, 00 m2
BRUTTÓ beépített alapterület: 151, 65 m2
Gázcirkós fűtés, padlófűtéses hőleadókkal.
Műanyag három rétegű nyílászárók.
Saját autóbealló, nagy méretű telek!
Hívjon bizalommal! FIX 3% lakáshitelre megvehető

