Eladó új építésű ház - Őrbottyán (34491375)
ELADÓ INGATLANOK
KIADÓ INGATLANOK
CSERE INGATLANOK
KÜLFÖLDI INGATLANOK
RÉSZLETES KERESÉS
INGATLAN HÍREK
HIRDETÉS FELADÁS
BELÉPÉS
REGISZTRÁCIÓ

Ingatlan adatai

  • Eladó vagy kiadó:Eladó
  • Település:Őrbottyán
  • Kategória:Ház
  • Alkategória:Családi ház
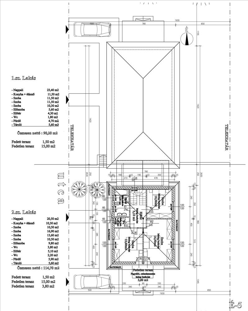
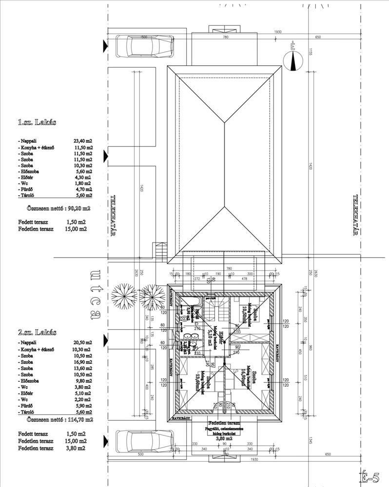
  • Alapterület:125 m2
  • Telekterület:500 m2
  • Csere is:Nem
  • Hirdető:Cég
  • Élő videón megtekinthető:Nem
  • Építés éve:2025
  • Szobaszám:3 + 2 fél
  • Állapot:Új építésű
  • Hány szintes az ingatlan:2 szintes
  • Tetőtér:nincs megadva
  • Komfortosság:nincs megadva
  • Pince:Nincs
  • Parkolási lehetőség:Beállóban
  • Fűtés:nincs megadva
  • Bútorozottság:nincs megadva
  • Fényviszony:nincs megadva
  • Tájolás:nincs megadva
  • Kilátás:nincs megadva
  • Internet:nincs megadva
  • Klíma:nincs megadva
  • Akadálymentesített:nincs megadva
  • Energiatanúsítvány:nincs megadva
  • Villany:nincs megadva
  • Víz:nincs megadva
  • Gáz:nincs megadva
  • Csatorna:nincs megadva
  • Kapcsolatfelvétel
Gyurkó Melinda
Gyurkó Melinda
+36-(30)-239-6175
Mondd meg a hirdetőnek, hogy a megveszLAK-on találtad a hirdetést.
Érdekel kedvezményes lakáshitel ajánlat is
Az ASZF-et és az Adatkezelési tájékoztatót elfogadom

Hitel ajánlatok

 

Ingatlan hirdetés leírása

Őrbottyánban, horgásztó közelében, új építésű tégla családi há...


Őrbottyán belterületi részén új építésű ház leköthető!

Horgásztó közelében nappali + 3 hálószobás téglaházak eladók 500 nm -es telekkel!

Főbb jellemzők:

- csendes, nyugodt részen, sok zölddel mindenfelé

- 500 nm -es saját, leválasztott telekkel

- a teljes telek 1000 nm , melyre 2 ház épül, az egyik 2 szintes lesz, a másik egy szintes. Jelenleg mindkét fele eladó! a 2 épület között a tárolók helyezkednek el.

- a telek 19 méter széles, 56 méter utcafrontos, remek telek! 

- Gyönyörű tujasor takar az egyik szomszéd felé és sok fa található a telekhatárokon

- jogilag 2 db társasházi albetét lesz

- az építkezés ősszel indul, kb. 6-8 Hónap alatt elkészül, a tervek engedélyeztetése miatt és a használatbavételi miatt 8-10 hónapra tolódhat ki

Az egyik ház 90 nm -es + teraszok, egyszintes, nappali + 3 hálós, a másik ház 2 szinten 114. 7 Nm + teraszok, nappali + 3 hálós.

Ez a hirdetés az 2. Számú lakásról szól, mely kétszintes!

Műszaki jellemzők:

- Porotherm okos tégla

- hőszivattyús fűtés

- cserépfedés

- klíma kiállás

- autóbeállási lehetőség a kertben

- külön tároló

- murvás földút van jelenleg a főbb úttól nem messze

Előny: 

- A természetben vásárolhat egy újépítésú házat, mely nem külterületi, nem zártkerti, hanem belterületi ingatlan, így értéke is magasabb, illetve bármely bank hitelezi!

Díjtalan, banksemleges hitelügyintézésben segítünk! FIX 3% lakáshitelre megvehető

Tetszett ez az eladó Őrbottyáni új építésű 3 egész és 2 fél szobás családi ház? Hívd fel a hirdetőt most, és tudj meg mindent erről az eladó családi házról! Ha gondolod nézelődj tovább az eladó ház Őrbottyán oldal hirdetései között. Ennek az eladó háznak az ára 98900000 Ft és mivel az alapterülete 125 négyzetméter, ezért az átlagos négyzetméterára 791200 HUF/m2.

Az eladó házak menüpontban további hirdetések között is böngészhetsz. Ha van kedved, akkor böngészhetsz a Gyurkó Melinda összes hirdetése között, vagy akár a/az Be My Home összes hirdetése között is.

 
 
© megveszLAK.hu - Az egyszerűen jó ingatlan hirdetési oldal