Eladó új építésű ház Őrbottyán
| Kedvencbe | Megosztás | Árfigyelő |
| FIX 3% lakáshitelre megvehető | ||
| 84 990 000 HUF | ||
Ingatlan adatai
- Eladó vagy kiadó:Eladó
- Település:Őrbottyán
- Kategória:Ház
- Alkategória:Családi ház
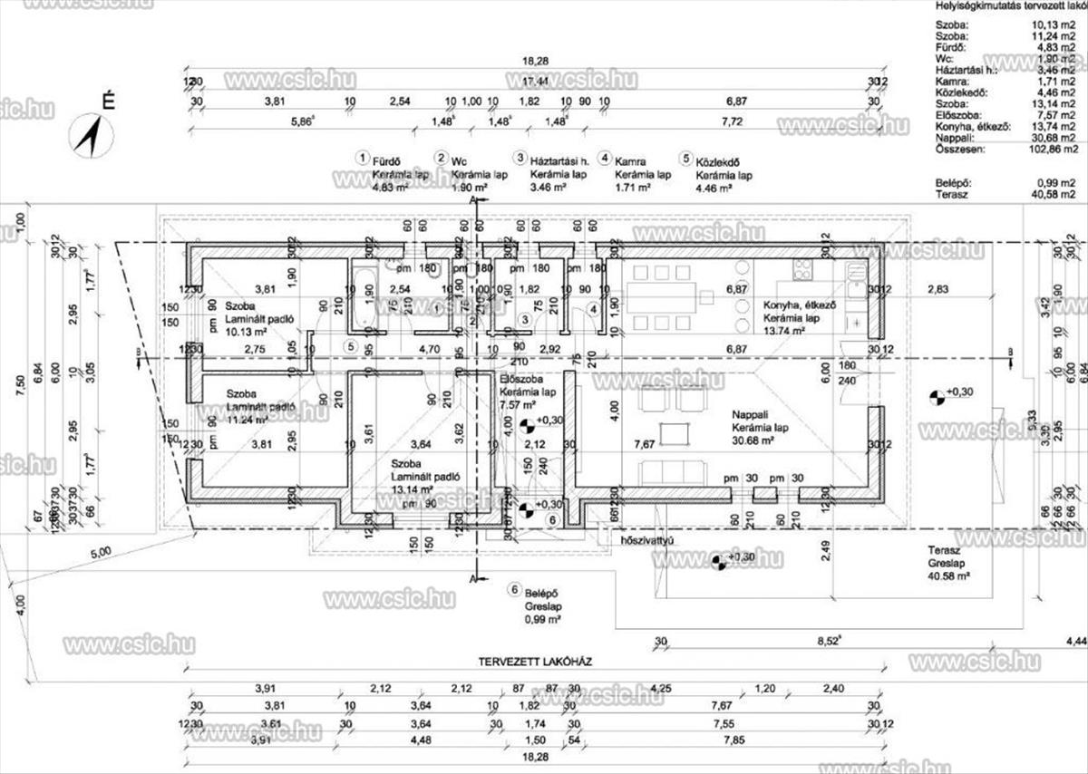
- Alapterület:102 m2
- Telekterület:720 m2
- Csere is:Nem
- Hirdető:Cég
- Élő videón megtekinthető:Nem
- Építés éve:2026
- Szobaszám:4
- Állapot:Új építésű
- Hány szintes az ingatlan:nincs megadva
- Tetőtér:nincs megadva
- Komfortosság:nincs megadva
- Parkolási lehetőség:Beállóban
- Fűtés:nincs megadva
- Bútorozottság:nincs megadva
- Fényviszony:nincs megadva
- Tájolás:nincs megadva
- Kilátás:nincs megadva
- Internet:nincs megadva
- Akadálymentesített:nincs megadva
- Energiatanúsítvány:nincs megadva
- Villany:Van
- Víz:Van
- Gáz:Van
- Csatorna:Van
- Üzenetküldés
- Hívás


Hitel ajánlat
Ingatlan hirdetés leírása
ELADÓ CSALÁDI HÁZ ŐRBOTTYÁN Ú JÉPÍTÉSŰ
Őrbottyánban önálló családi ház 720 nm telken kedvező áron Eladó!BELSŐ elrendezés még igény szerint VÁLTOZTATHATÓ!
HŐSZIVATTYÚS FŰTÉS!
Őrbottyánban épülő, földszintes nappali + 3 szobás, 720 nm telekkel rendelkező önálló családi házat kínálunk eladásra!
A családi ház alapterülete bruttó: 102 nm, 1+3 szobás, kert és teraszkapcsolatos 42 nm amerikai konyhás nappalival, három világos hálószobával, egy kádas fürdőszobával, külön wc- vel, gépészeti helyiséggel, előszobával, közlekedővel és egy szép tágas terasszal rendelkezik.
- Kitűnő minőség,
- Modern külső megjelenés
- Magas műszaki tartalom épül 30-as téglából +
- 10 dryvit szigeteléssel.
- Hőszivattyús, fűtés padlófűtéssel.
- Napelem – előkészítés (igény szerint)
- Műanyag gondozásmentes 3 rétegű nyílászárók
- Biztonsági bejárati ajtó
- Riasztó előkészítés
- Gépkocsibeálló
- Kaputelefon
- Padlásfeljáró
Várható átadás: 2026 nyár
Ha az ingatlan vásárláshoz még el kell adnia jelenlegi ingatlanát, annak értékesítésének lebonyolítását, kedvezményes feltételekkel vállaljuk. 15 Éves tapasztalt, jógi, ügyvédi háttérrel segítjük.
Ha vásárláshoz hitelre van szüksége, hitel ügyintézőnk ingyenesen segít Önnek megtalálni a piacon fellelhető legkedvezőbb hitelkonstrukciót.
Várom megtisztelő hívását a hét minden napján! FIX 3% lakáshitelre megvehető

