Eladó átlagos állapotú ház - Orfű
- INGYENES HIRDETÉS FELADÁS
Ingatlan adatai
- Eladó vagy kiadó:Eladó
- Település:Orfű
- Kategória:Ház
- Alkategória:Családi ház
- Alapterület:120 m2
- Telekterület:5956 m2
- Csere is:Nem
- Hirdető:Cég
- Élő videón megtekinthető:Nem
- Építés éve:2008
- Szobaszám:5
- Állapot:Átlagos állapotú
- Hány szintes az ingatlan:nincs megadva
- Tetőtér:nincs megadva
- Komfortosság:nincs megadva
- Pince:nincs megadva
- Parkolási lehetőség:nincs megadva
- Fűtés:nincs megadva
- Bútorozottság:nincs megadva
- Fényviszony:nincs megadva
- Tájolás:NY
- Kilátás:nincs megadva
- Internet:nincs megadva
- Klíma:nincs megadva
- Akadálymentesített:nincs megadva
- Energiatanúsítvány:nincs megadva
- Villany:Van
- Víz:Van
- Gáz:Nincs
- Csatorna:Van
- Kapcsolatfelvétel

Szabó Tibor
+36-(70)-716-9031
Mondd meg a hirdetőnek, hogy a megveszLAK-on találtad a hirdetést.
Hitel ajánlatok
Ingatlan hirdetés leírása
Vágyik egy helyre, ahol a reggeli kávé mellé templomtoronyra n...
Vágyik egy helyre, ahol a reggeli kávé mellé templomtoronyra néző panoráma és erdőszéli csend jár? Orfű belterületén, egy hatalmas, közel 6000 m²-es dupla telken várja új gazdáját ez a különleges, autentikus parasztház.
Hatalmas tér, végtelen lehetőség: a két helyrajzi számon fekvő, összesen 5956 m²-es terület valójában 2-3 építési portányi helyet kínál – ideális családi rezidenciának, vendégháznak vagy befektetésnek. Csodás panorámát nyújt Orfű községre, a templomtoronyra, illetve a környező hegyoldalakra. a telek egyik vége erdővel határos.
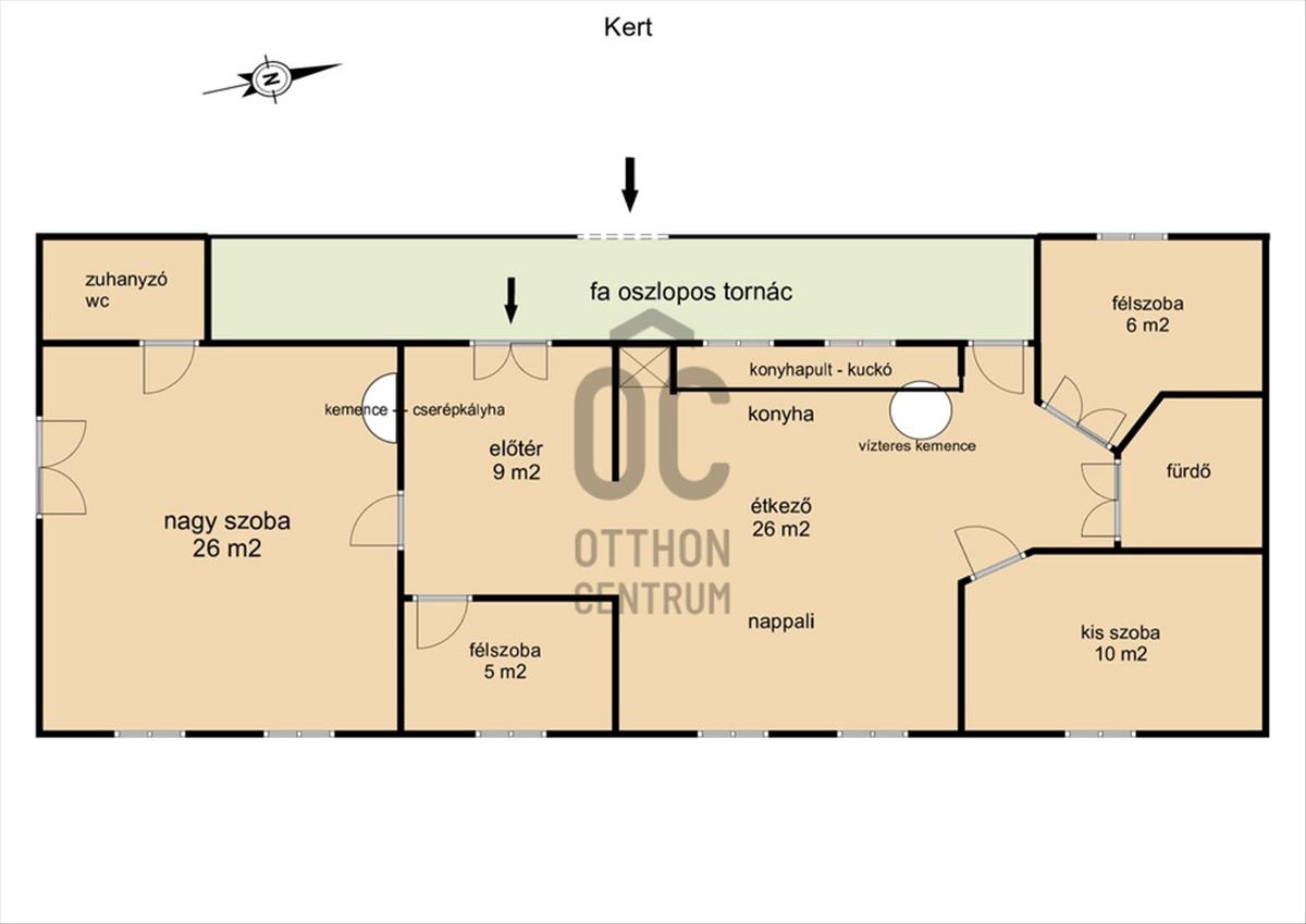
A szép, tornácos ház helyi védettség alatt áll, nettó alapterülete 97 m2, amely áll előtérből, nagy konyha-étkező-nappali helyiségből (26 m2), nagyszobából, amely külön bejáratú is lehet, saját fürdő+wc-vel, kuckós kemencével, 2 félszobából, és egy kisebb szobából, valamint még egy fürdő+wc helyiségből. a fürdők két éve lettek átalakítva. a házhoz tartozik egy kívülről megközelíthető 15 m2-es pince, illetve egy melléképület, fészer, amelynek a megerősítése szükséges.
A ház modernizálása 2008-ban történt, pl. a víz-, és villanyvezetékek cseréje, bekerültek a látszó fagerendák, kialakították a vízelvezetést a ház körül. Akkor készült el a két búbos kemence, amelyek közül a nappaliban lévő vízteres kialakítású, erről működik keringetős rendszerrel a radiátoros központi fűtés. a másik a nagyszobában van, az előtér felől fűthető, a szecessziós cserépkályhán keresztül. (Tipp: Ez a nagyszoba leválasztható a lakótér többi részétől, külön apartmanként funkcionálhat önálló utcai bejárattal. ) a ház egyedi gyártású külső-belső nyílászárókat kapott, a hidegburkolat padlástégla, a fapadló pedig egyedi, asztalos által készített, de felújításra szorul. a födém-, és tetőszerkezet még eredeti állapotában van.
Több, mint egy ingatlan: Életérzés.
Ez a porta nem csak falakból áll – erős kisugárzása, békéje azonnal magával ragadja az embert. Itt az erdő a szomszéd, a kilátás pedig minden nap más arcát mutatja.
Az ingatlan per- és tehermentes, azonnal birtokba vehető. Az energetikai tanúsítvány készítése folyamatban van, amint rendelkezésre áll, úgy azzal a hirdetés frissítésre kerül.
Jöjjön el, érezzen rá a hangulatára, és legyen Ön is büszke orfűi lakos!
Kérem, tekintse meg a tájékoztató jellegű alaprajzot!
Tájékoztatásért hívjon nyugodtan! FIX 3% lakáshitelre megvehető
Tetszett ez az eladó Orfűi átlagos állapotú 5 szobás családi ház? Hívd fel a hirdetőt most, és tudj meg mindent erről az eladó családi házról! Ha gondolod nézelődj tovább az eladó ház Orfű oldal hirdetései között. Ennek az eladó háznak az ára 74900000 Ft és mivel az alapterülete 120 négyzetméter, ezért az átlagos négyzetméterára 624167 HUF/m2.
Az eladó házak menüpontban további hirdetések között is böngészhetsz. Ha van kedved, akkor böngészhetsz a Szabó Tibor összes hirdetése között, vagy akár a/az Otthon Centrum Pécs - Király utca összes hirdetése között is.

