- >>
- eladó ingatlanok
- >>
- eladó ház
- >>
- eladó ház Orosháza
- >>
Eladó felújítandó ház - Orosháza
| | |||
| Kedvencnek jelölöm | Elküldöm emailben | Megosztás | Szavazás |
| FIX 3% lakáshitelre megvehető | |||
| 54 500 000 HUF | |||
Ingatlan adatai
- Eladó vagy kiadó:Eladó
- Település:Orosháza
- Kategória:Ház
- Alkategória:Családi ház
- Alapterület:140 m2
- Telekterület:1000 m2
- Csere is:Nem
- Hirdető:Cég
- Élő videón megtekinthető:Nem
- Építés éve:1977
- Szobaszám:4
- Állapot:Felújítandó
- Hány szintes az ingatlan:2 szintes
- Tetőtér:nincs megadva
- Komfortosság:nincs megadva
- Parkolási lehetőség:Teremgarázsban
- Fűtés:Gáz (konvektor)
- Bútorozottság:nincs megadva
- Fényviszony:Jó
- Tájolás:nincs megadva
- Kilátás:nincs megadva
- Internet:nincs megadva
- Akadálymentesített:nincs megadva
- Energiatanúsítvány:nincs megadva
- Villany:nincs megadva
- Víz:nincs megadva
- Gáz:nincs megadva
- Csatorna:nincs megadva
- Üzenetküldés
- Hívás

Referencia szám: M293722

Hitel ajánlat
Ingatlan hirdetés leírása
Eladó Ház, Orosháza, Eladó felújítandó ház - Orosháza
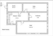
Eladásra kínálunk Békés Vármegyében Orosháza belvárosába egy 140 nm-es kétszintes felújítandó családi téglaépítésű házat. a ház felújítását a tulaj elkezdte, ám érdemes most megvásárolni, mert saját ízlés szerint még alakítható. a házban jelenleg 4 szoba, 2 fürdőszoba vécével, konyha és egy tetőterasz is megtalálható. a szobákban jelenleg parketta a többi helységben hidegburkolat van tervezve. Fűtését gázkonvektor, melegvizet bojler biztosítja. a ház 1000 nm-es telken található, ahova egy új dupla garázst építettek. a duplagarázs 41 nm. Közelben orvosi rendelő, boltok, iskola és óvoda, könnyen megközelíthető akár gyalog is. Az ingatlan tágas terekkel rendelkezik, gyönyörű otthonná lehet alakítani akár 2 generáció számára is. Ha felkeltettem érdeklődését, hívjon bizalommal. Összeköltözőknek, nagyobb lakásra vágyóknak, kiváló lehetőség. Az ingatlan per- és tehermentes. Igény esetén az adásvételkor ügyvédi segítséget is biztosítunk. Ingyenes hitelügyintézés irodáinkban!Érdeklődni: Lázár Krisztina 06302233606
Referencia szám: m293722-ml FIX 3% lakáshitelre megvehető

