Eladó jó állapotú ház - Orosháza
- INGYENES HIRDETÉS FELADÁS
Ingatlan adatai
- Eladó vagy kiadó:Eladó
- Település:Orosháza
- Kategória:Ház
- Alkategória:Családi ház
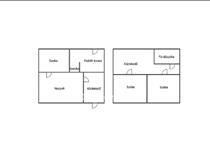
- Alapterület:90 m2
- Telekterület:1433 m2
- Csere is:Nem
- Hirdető:Cég
- Élő videón megtekinthető:Nem
- Építés éve:2003
- Szobaszám:2 + 2 fél
- Állapot:Jó állapotú
- Hány szintes az ingatlan:2 szintes
- Tetőtér:nincs megadva
- Komfortosság:nincs megadva
- Pince:nincs megadva
- Parkolási lehetőség:Udvaron
- Fűtés:Gáz (konvektor)
- Bútorozottság:nincs megadva
- Fényviszony:Jó
- Tájolás:nincs megadva
- Kilátás:nincs megadva
- Internet:nincs megadva
- Klíma:nincs megadva
- Akadálymentesített:Akadálymentesített
- Energiatanúsítvány:nincs megadva
- Villany:nincs megadva
- Víz:nincs megadva
- Gáz:nincs megadva
- Csatorna:nincs megadva
- Kapcsolatfelvétel

Feketéné Bodor Regina
+36-(30)-418-8808
Mondd meg a hirdetőnek, hogy a megveszLAK-on találtad a hirdetést.
Referencia szám: M312531
Hitel ajánlatok
Ingatlan hirdetés leírása
Eladó Ház, Orosháza, Eladó jó állapotú ház - Orosháza
Orosházán, a Gyopárosfürdő közvetlen szomszédságában eladó egy téglaépítésű, szépen karbantartott üdülőház. Az ingatlan részben akadálymentesített, így idősek vagy mozgásukban korlátozottak számára is kényelmes és jól használható megoldást nyújt.
A házhoz egy nagy, rendezett, parkosított kert tartozik, amelyet automata öntözőrendszer gondoz. a kert kiválóan alkalmas pihenésre és kikapcsolódásra, továbbá helyet kapott benne egy hangulatos melléképület, amely vendégek fogadására, hobbyhelyiségnek vagy tárolásra is ideális.
A lakótér minden helyiségében hűtő-fűtő klíma biztosítja a kellemes hőmérsékletet egész évben. Az épület szerkezete jó állapotú, az ingatlan folyamatosan karbantartott.
A ház csendes, nyugodt környéken található, a termálfürdő és a wellness szolgáltatások mindössze pár perc sétával elérhetők, így akár állandó lakhatásra, akár üdülési célra is kiváló választás.
Amennyiben felkeltettem érdeklődését, hívjon bizalommal! Az OTP Ingatlanpont teljes körű ügyintézéssel áll az eladók és vevők rendelkezésére. a nálunk kiválasztott ingatlan finanszírozásához kedvezményes hitelkonstrukciókat kínálunk. Az OTP Banknál elérhető Babaváró, Falusi csok, CSOK Plusz és egyéb kölcsönök ügyintézését díjmentesen vállaljuk. Az adásvételi szerződés megkötéséhez igény esetén ügyvédet is biztosítunk.
Referencia szám: m312531 FIX 3% lakáshitelre megvehető
Tetszett ez az eladó Orosházai jó állapotú 2 egész és 2 fél szobás családi ház? Hívd fel a hirdetőt most, és tudj meg mindent erről az eladó családi házról! Ha gondolod nézelődj tovább az eladó ház Orosháza oldal hirdetései között. Ennek az eladó háznak az ára 50000000 Ft és mivel az alapterülete 90 négyzetméter, ezért az átlagos négyzetméterára 555556 HUF/m2.
Az eladó házak menüpontban további hirdetések között is böngészhetsz. Ha van kedved, akkor böngészhetsz a Feketéné Bodor Regina összes hirdetése között, vagy akár a/az OTPip Csongrád Fő utca 54 - OTP Ingatlanpont Iroda összes hirdetése között is.

