Eladó új építésű ház Ostoros
| Kedvencbe | Megosztás | Árfigyelő |
| FIX 3% lakáshitelre megvehető | ||
| 94 500 000 HUF | ||
Ingatlan adatai
- Eladó vagy kiadó:Eladó
- Település:Ostoros
- Kategória:Ház
- Alkategória:Családi ház
- Alapterület:96 m2
- Telekterület:939 m2
- Csere is:Nem
- Hirdető:Cég
- Élő videón megtekinthető:Nem
- Építés éve:2023
- Szobaszám:3
- Állapot:Új építésű
- Hány szintes az ingatlan:Földszintes
- Tetőtér:nincs megadva
- Komfortosság:nincs megadva
- Parkolási lehetőség:Udvaron
- Fűtés:Gáz (cirko)
- Bútorozottság:nincs megadva
- Fényviszony:Napfényes
- Tájolás:nincs megadva
- Kilátás:nincs megadva
- Internet:nincs megadva
- Akadálymentesített:nincs megadva
- Energiatanúsítvány:nincs megadva
- Villany:nincs megadva
- Víz:nincs megadva
- Gáz:nincs megadva
- Csatorna:nincs megadva
- Üzenetküldés
- Hívás

Herger-Varga Hajnalka
Mondd meg a hirdetőnek, hogy a megveszLAK-on találtad a hirdetést.
Referencia szám: M249688

Hitel ajánlat
Ingatlan hirdetés leírása
Eladó Ház, Ostoros, Eladó új építésű ház - Ostoros
Ostoroson a tópart lakóparkban új építésú 2 lakásos társasházban családi ikerház jellegű lakás eladó! ! ! ! Ebben az évben még IGÉNYELHETŐCSOK, CSOK + államilag kamattámogatott kedvezményes hitel és ILLETÉKKEDVEZMÉNY! ! ! ! ! !
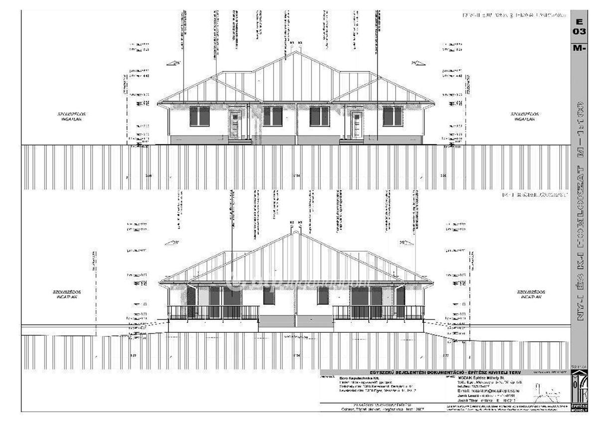
Eladásra kínálunk Ostoroson a tópart Lakóparkban új építésű családi ikerház jellegű két lakásos társasház lakását! a lakás földszintes, Netto: 96, 89 m2 alapterületű, hozzá tartozik egy 34 m2-es Terasz. a lakás helyiségei: nappali + étkező, konyha, 3 egész szoba, fürdőszoba, zuhanyzó wc, gardrob helyiség, előtér közlekedő, kamra.
A lakás építése a Wienerberger mesterház minőségi elemeiből készül. Így az elkészült lakás aa épületenergetika minősítésű lesz. a társasházhoz tartozó külön önálló udvarrész tereprendezéssel, térkő burkolattal kerül átadásra. a lakás magas minőségű Wienerberger építőelemekből készül. Tégla falazattal, hőszigetelés + nemesvakolattal, kerámia
tetőcseréppel, műanyag hőszigetelt külső nyílászárókkal, a belső nyílászárók borovitip fenyő beltéri ajtókkal. a lakás fűtése központi lapradiátoros melynek működésér SaunierDuval SemiatekCondens 24 kombikondenzációs gázkazán biztosítja. a fürdőszobai beépített szaniterek szintén magas minőségű Mofém elemekből állnak. Ha felkeltettem érdeklődését a Műszaki leírásról és a Wienerberger mesterház építőelemeiről részletes műszaki leírást és tájékoztatást adunk! a lakás várható átadása 2024. Augusztus 31. Új építésű Ingatlanvásárláshoz kapcsolódó csok, CSOK + hitel, Illetékkedvezmény még az idén 2023-ban igénybe vehető! Ha felkeltettem érdeklődését kérem hívjon bizalommal! ! !
Referencia szám: m249688 FIX 3% lakáshitelre megvehető

