Eladó átlagos állapotú ház - Pécs
- INGYENES HIRDETÉS FELADÁS
Ingatlan adatai
- Feladva:70 napja a megveszLAK-on
- Eladó vagy kiadó:Eladó
- Település:Pécs
- Kategória:Ház
- Alkategória:Családi ház
- Alapterület:70 m2
- Telekterület:480 m2
- Csere is:Nem
- Hirdető:Cég
- Élő videón megtekinthető:Nem
- Építés éve:1960
- Szobaszám:2 + 1 fél
- Állapot:Átlagos állapotú
- Hány szintes az ingatlan:Földszintes
- Tetőtér:nincs megadva
- Komfortosság:nincs megadva
- Pince:nincs megadva
- Parkolási lehetőség:Teremgarázsban
- Fűtés:Gáz (cirko)
- Bútorozottság:nincs megadva
- Fényviszony:Napfényes
- Tájolás:nincs megadva
- Kilátás:nincs megadva
- Internet:nincs megadva
- Klíma:nincs megadva
- Akadálymentesített:nincs megadva
- Energiatanúsítvány:nincs megadva
- Villany:nincs megadva
- Víz:nincs megadva
- Gáz:nincs megadva
- Csatorna:nincs megadva
- Kapcsolatfelvétel

Vincze László György
+36-(20)-938-4141
Mondd meg a hirdetőnek, hogy a megveszLAK-on találtad a hirdetést.
Referencia szám: M324682
Hitel ajánlatok
Ingatlan hirdetés leírása
Eladó Ház, Pécs, Eladó átlagos állapotú ház - Pécs
Lehetőség a zsolnay negyednél! ? Saját kert + Garázs!
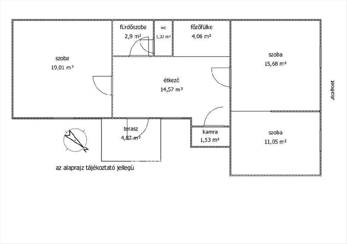
Eladó egy átlagos állapotú, szerkezetileg stabil, jó adottságokkal rendelkező családi ház Pécsett, a Kiss Ernő utcában (Zsolnay-domb)!
? 70 M? Lakótér: 2, 5 szoba, konyha, étkező, spájz.
? Dupla fűtés: Gázkazán + vegyestüzelésű kazán (rugalmas rezsi! ).
? 480 M? -Es kert: Pont akkora, amit még élvezet gondozni.
? 21 M? -Es garázs: a kert végében, külön helyrajzi számmal, és villanyórával (benne van az árban! ).
? Melléképületek: Tároló és kazánház az udvarban.
Jelenleg főzőfülke van a házban. Kisebb átalakítással a kamra mellé lehet telepíteni konyhát.
Az udvar két részre van bontva pl. Kutyatartás miatt lehet érdekes. Az első udvarban kisebb pince található.
Buszmegálló: 1 perc gyalog!
Zsolnay negyed: 3 perc séta!
Ideális választás családoknak vagy befektetésnek a kulturális negyed közelsége miatt. Alakítsad saját ízlésedre és varázsolj belőle modern otthont! a ház 1970. Előtt épült.
Referenciaszám: M324682
58700000 Ft
Referencia szám: m324682 FIX 3% lakáshitelre megvehető
Tetszett ez az eladó Pécsi átlagos állapotú 2 egész és 1 fél szobás családi ház? Hívd fel a hirdetőt most, és tudj meg mindent erről az eladó családi házról! Ha gondolod nézelődj tovább az eladó ház Pécs oldal hirdetései között. Ennek az eladó háznak az ára 58700000 Ft és mivel az alapterülete 70 négyzetméter, ezért az átlagos négyzetméterára 838571 HUF/m2.
Az eladó házak menüpontban további hirdetések között is böngészhetsz. Ha van kedved, akkor böngészhetsz a Vincze László György összes hirdetése között, vagy akár a/az OTPip Pécs Király utca 75 - OTP Ingatlanpont Iroda összes hirdetése között is.

