Eladó jó állapotú ház Pécs
| Kedvencbe | Megosztás | Árfigyelő |
| FIX 3% lakáshitelre megvehető | ||
| 42 900 000 HUF | ||
Ingatlan adatai
- Eladó vagy kiadó:Eladó
- Település:Pécs
- Kategória:Ház
- Alkategória:Családi ház
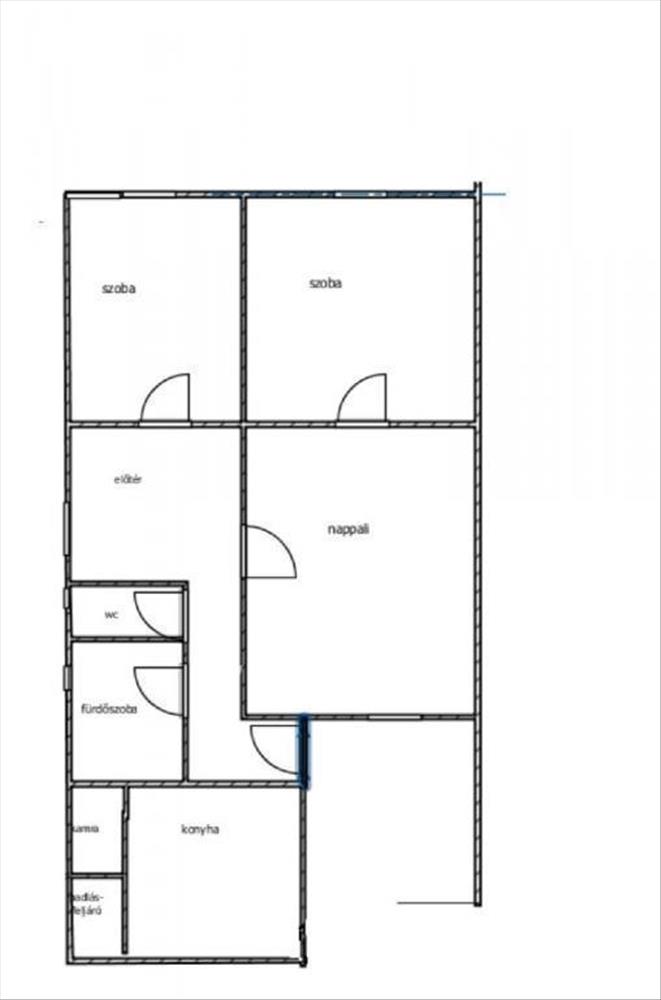
- Alapterület:99 m2
- Telekterület:374 m2
- Csere is:Nem
- Hirdető:Cég
- Élő videón megtekinthető:Nem
- Építés éve:1961
- Szobaszám:3
- Állapot:Jó állapotú
- Hány szintes az ingatlan:Földszintes
- Tetőtér:nincs megadva
- Komfortosság:nincs megadva
- Parkolási lehetőség:Udvaron
- Fűtés:Gáz (cirko)
- Bútorozottság:nincs megadva
- Fényviszony:Napfényes
- Tájolás:nincs megadva
- Kilátás:nincs megadva
- Internet:nincs megadva
- Akadálymentesített:nincs megadva
- Energiatanúsítvány:nincs megadva
- Villany:nincs megadva
- Víz:nincs megadva
- Gáz:nincs megadva
- Csatorna:nincs megadva
- Üzenetküldés
- Hívás

Referencia szám: M302500

Hitel ajánlat
Ingatlan hirdetés leírása
Eladó Ház, Pécs, Eladó jó állapotú ház - Pécs
Eladó ikerház Pécs-Vasas városrészben!Pécs-Vasas csendes részén, a B utcában kínálunk megvételre egy 99 nm-es ikerházat. a téglaépítésű ingatlan 5 éven belül felújításon esett át, amely során a konyha, fürdőszoba, padlóburkolatok, víz- és villanyvezetékek, valamint a nyílászárók is korszerűsítve lettek.
Az otthon jellemzői: 3 tágas szoba, konyha, fürdőszoba és külön wc, kamra és padlásfeljáró, 7 nm-es terasz, 12 nm-es zárt garázs, szuterén, amely az udvarból megközelíthető.
Műszaki adatok:
Gáz-cirkófűtés lapradiátoros hőleadással. Műanyag, redőnnyel és szúnyoghálóval ellátott nyílászárók. Cseréptető.
Vízelvezető csatornarendszerrel.
A ház elhelyezkedése kiváló: közelben bolt és buszmegálló található, Pécs belvárosa könnyen és gyorsan elérhető a gyakori helyijáratos buszokkal.
Kiváló lehetőség családoknak, akik csendes, mégis jól megközelíthető környezetben keresnek otthont! FIX 3% lakáshitelre megvehető

