Eladó újszerű állapotú ház - Pécs
- INGYENES HIRDETÉS FELADÁS
Ingatlan adatai
- Eladó vagy kiadó:Eladó
- Település:Pécs
- Kategória:Ház
- Alkategória:Családi ház
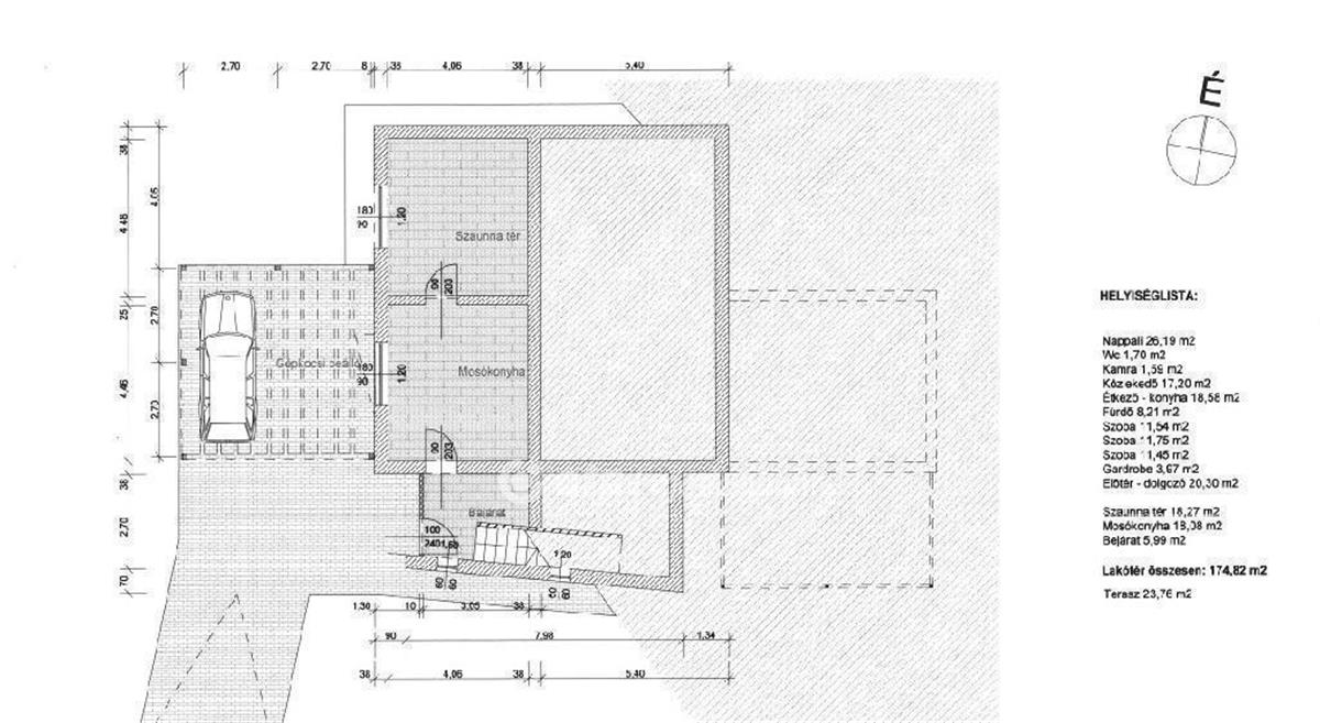
- Alapterület:184 m2
- Telekterület:1230 m2
- Csere is:Nem
- Hirdető:Cég
- Élő videón megtekinthető:Nem
- Építés éve:2015
- Szobaszám:4
- Állapot:Újszerű, kitűnő
- Hány szintes az ingatlan:2 szintes
- Tetőtér:nincs megadva
- Komfortosság:nincs megadva
- Pince:nincs megadva
- Parkolási lehetőség:Udvaron
- Fűtés:Egyéb
- Bútorozottság:nincs megadva
- Fényviszony:Napfényes
- Tájolás:nincs megadva
- Kilátás:nincs megadva
- Internet:nincs megadva
- Klíma:Van
- Akadálymentesített:nincs megadva
- Energiatanúsítvány:nincs megadva
- Villany:Telken belül
- Víz:Telken belül
- Gáz:Telken belül
- Csatorna:nincs megadva
- Kapcsolatfelvétel

Borvári Mária
+36-(70)-393-4905
Mondd meg a hirdetőnek, hogy a megveszLAK-on találtad a hirdetést.
Referencia szám: M293690
Ingatlan hirdetés leírása
Eladó Ház, Pécs, Eladó újszerű állapotú ház - Pécs
Pécs frekventált városrészén, Bálicsban eladó, egy minden igényt kielégítő, magas minőségben kivitelezett, 2015-ben épült, 1230 m2-es telken lévő 174 m2-es családi ház.
Ha egy igazi gyöngyszemre vágyik, szereti a jól átgondolt tereket és örömét lelné egy csodás parkosított kertben, akkor ezt az ingatlan Önre vár!
A D/Ny-i tájolású ingatlan egyedülálló örökpanorámával, gyönyörű örökzöldekkel rendelkezik.
Az ingatlan a terep lejtése miatt, két szinten helyezkedik el. a lakószint a földszintről lépcsőkön keresztül közelíthető meg.
A földszinten található a konditerem, mosókonyha, zuhany, vízlágyító és a gépészet. Az ingatlan takarítását a központi porszívó beépítése nagyban megkönnyíti. a ház melegéről hőszivattyú és gázkazán gondoskodnak. Hőleadás radiátorokon és padlófűtésen keresztül történik, illetve egy klíma is beépítésre került. a ház áram-ellátását a 4, 2 kW-os napelem rendszer táplálja és a 3 x 20 a lehetővé teszi az elektromos autótöltést is.
A lakószint elrendezése nagyon jól átgondolt! a tágas, világos nagy ablakokkal rendelkező, motoros zsalúziával ellátott nappaliból a félig fedett teraszra érünk, illetve a gyönyörűen parkosított kertbe.
A nappali jól elkülönül a 3 db kényelmes szobától, így nem zavarva a pihenni vágyókat. a minőségi konyhabútor látványa és a panorámás ebédlő kellemes hangulatot biztosít a családi ebédekhez.
Az ingatlant a világos, tágas terek, világos modern burkolatok jellemzik. a szobákban motoros alumínium redőny került beépítésre, ezzel teljes sötétséget biztosítva a pihentető alváshoz.
2 Db fedett parkoló került kialakításra az ingatlan előtt, de akár 5 autó elhelyezhető.
A kert rendkívül szépen karbantartott, ahogyan az egész ház. a kertben fedett nyári konyha, grillezési lehetőséggel, családi összejövetelek kellemes helyszíne.
Ha felkeltette érdeklődését ez a csodálatos ingatlan, keressen bizalommal!
m293690
209790000 Ft
Referencia szám: m293690 Hitel.hu - Hasonlítsa össze a bankok lakáshitel ajánlatait


