Eladó felújított ház Pécsely
| Kedvencbe | Megosztás | Árfigyelő |
| Kedvezményes lakáshitel ajánlatok | ||
| | 185 000 000 HUF | |
Ingatlan adatai
- Eladó vagy kiadó:Eladó
- Település:Pécsely
- Kategória:Ház
- Alkategória:Családi ház
- Alapterület:335 m2
- Telekterület:1996 m2
- Csere is:Nem
- Hirdető:Cég
- Élő videón megtekinthető:Nem
- Szobaszám:10
- Állapot:Felújított
- Hány szintes az ingatlan:3 szintes
- Tetőtér:nincs megadva
- Komfortosság:Dupla komfortos
- Parkolási lehetőség:Udvaron
- Fűtés:Egyéb
- Bútorozottság:nincs megadva
- Fényviszony:nincs megadva
- Tájolás:nincs megadva
- Kilátás:nincs megadva
- Internet:nincs megadva
- Akadálymentesített:nincs megadva
- Energiatanúsítvány:nincs megadva
- Villany:nincs megadva
- Víz:nincs megadva
- Gáz:nincs megadva
- Csatorna:nincs megadva
- Üzenetküldés
- Hívás
Vukman-Galló Anita
Mondd meg a hirdetőnek, hogy a megveszLAK-on találtad a hirdetést.

Hitel ajánlat
Ingatlan hirdetés leírása
Eladó családi ház Pécsely
Csend, nyugalom, erdő, történelem, gyógyító energiákkal rendelkező hely balatoni RÁLÁTÁSSAL.GYÖNYÖRŰEN felújított 1000 éves, medencés, patakparti, erdőszéli, grófi múlttal büszkélkedő malomépület és 2 vendégház eladó pécselyen a zádor-vár MELLETT!
AZ ingatlan igazi kuriózum, kevés a hozzá hasonló lakóingatlan, mely üzleti lehetőséget is KÍNÁL.
A lakóterek egyedi megoldásokkal, az eredeti hangulatot és - az épület 40%-ában - az 1000 éves falakat meghagyva kerültek felújításra.
A malomhoz tartozó telek területe 1996 m2, előlről murvás út, nyugatról és északról a patak és az erdő határolja.
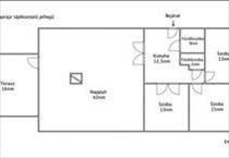
A lakóépületek helyiségei: (10 szoba és 6 fürdőszoba)
Főépület alsó szint:
- jó méretű, világos előszoba, konyha gyönyürű csikótűzhellyel (16 m2), konyhából nyíló pince (16 m2), fürdőszoba, hálószoba cserépkályhával, hatalmas, látszógerendás nappali, melyben szintén egy cserépkályha található (40 m2), hálószoba.
Főépület emelet (külön lakrész, saját bejárattal a kert FELŐL. ):
- Nappali (42 m2), 3 hálószoba, 2 fürdőszoba, konyha-étkező (12 m2), terasz (16 m2)
Apartman:
- Szoba ( 16 m2), fürdőszoba (4, 3 m2), fedett terasz
Kis ház alsó szint:
- Konyha-nappali (25 m2), garázs ( 63 m2)
Kis ház felső szint:
- Galéria (11 m2), szoba (10 m2), lépcsőház
Az ingatlanhoz 1000-1200 éves borospince tartozik.
A wellneszrész kialakítása a malomárok helyén elkezdődött, ennek befejezése az új tulajdonosra vár. (Elő van készítve a dézsa és a szauna HELYE).
KERT:
- épített Kemence és kerti grill, 20 m2 pergolás kiülő a Kemence előtti részen, nagyjából 20 m2 hátsó kiülő az erdő felé a felső lakrészhez, 8 X 4, 5 méter nagyságú medence az erdő mellett, üvegház, patakparti HÍD.
A medence gépészete a tavalyi évben került FELÚJÍTÁSRA!
Műszaki tartalom: 2021-ben került felúíjtásra az ingatlan
- statikailag ellenőrzött, 40 %- ban 1000 éves kő épület. ( Vulkanikus kő és kerámia kő)
- az apartman 38 cm-es téglából épült
- új vakolatok kívül, belül
- erősített, dupla fa födémszerkezet, betoncserép héjazat
- az épület egy részén vasbeton födém
- újabb, fából készült ablakok, ajtók, kétrétegű hőszigetelt üvegezéssel
- új villamos-, és a felső szinten új vízhálózat, új kapcsolók- 3 fázisú áramellátás vízteres CSERÉPKÁLYHÁK
- Padlófűtés a földszinten
- 25-30 főre tervezett derítő
EZ az ingatlan a béke szigete, itt tényleg gyönyörű és minden igényt kielégítő környezetben lehet feltöltődni a Patak és az erdő illatát magunkba szívva, a medencéből az erdőt nézve, a Patak csobogását HALLGATVA.
AJÁNLOM ezt a ritka lehetőséget mindenkinek, akik egy különleges ingatlanra VÁGYNAK.
A ház jelenleg jóga-és masszázsközpont, vendégház, ahol elvonulásokat, táborokat is szoktak TARTANI.
Irodai referenciaszám: Gd 312 Hitel.hu - Hasonlítsa össze a bankok lakáshitel ajánlatait

