Eladó felújítandó ház - Perkáta
- INGYENES HIRDETÉS FELADÁS
![]() |
9 900 000 HUF
Ingatlan adatai
- Eladó vagy kiadó:Eladó
- Település:Perkáta
- Kategória:Ház
- Alkategória:Családi ház
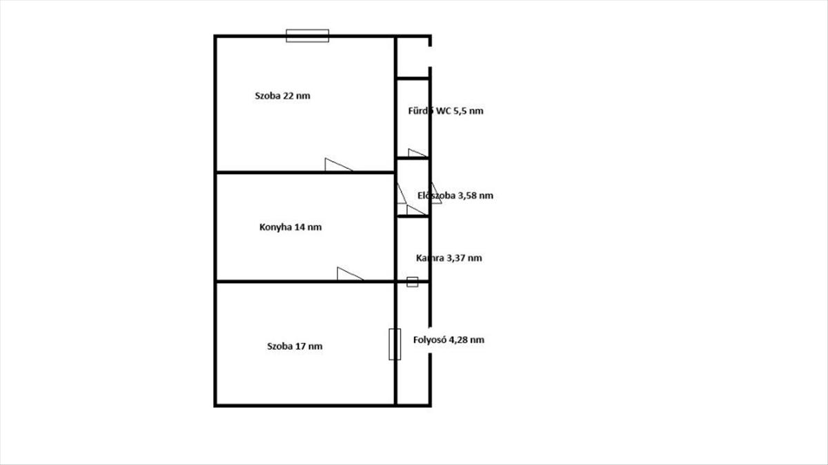
- Alapterület:70 m2
- Telekterület:1841 m2
- Csere is:Nem
- Hirdető:Cég
- Élő videón megtekinthető:Nem
- Építés éve:1950
- Szobaszám:2
- Állapot:Felújítandó
- Hány szintes az ingatlan:Földszintes
- Tetőtér:nincs megadva
- Komfortosság:nincs megadva
- Pince:nincs megadva
- Parkolási lehetőség:Udvaron
- Fűtés:nincs megadva
- Bútorozottság:nincs megadva
- Fényviszony:nincs megadva
- Tájolás:nincs megadva
- Kilátás:nincs megadva
- Internet:nincs megadva
- Klíma:nincs megadva
- Akadálymentesített:nincs megadva
- Energiatanúsítvány:H
- Villany:Van
- Víz:Van
- Gáz:Utcában
- Csatorna:Van
- Kapcsolatfelvétel

A hirdető törölte a hirdetést.
Törölt hirdetés, így nem lehet üzenetet küldeni sem.
Hitel ajánlatok
Ingatlan hirdetés leírása
, Eladó felújítandó ház - Perkáta
Sajnos ez az ingatlan hirdetés már nem aktuális, mivel a hirdető már törölte azt. FIX 3% lakáshitelre megvehető
Tetszett ez az eladó Perkátai felújítandó 2 szobás családi ház? Sajnos ez az ingatlan már nem aktuális. Nézelődj inkább tovább az eladó ház Perkáta oldal hirdetései között, vagy térj vissza az eladó ingatlanok oldalra, hátha még ma megtalálod álmaid otthonát a megveszLAK széles ingatlan kínálatában. Az eladó házak menüpontban további hirdetések között is böngészhetsz.

