Eladó felújítandó ház - Piliscsaba
- INGYENES HIRDETÉS FELADÁS
Ingatlan adatai
- Eladó vagy kiadó:Eladó
- Település:Piliscsaba
- Kategória:Ház
- Alkategória:Családi ház
- Alapterület:110 m2
- Telekterület:336 m2
- Csere is:Nem
- Hirdető:Cég
- Élő videón megtekinthető:Nem
- Építés éve:1955
- Szobaszám:3
- Állapot:Felújítandó
- Hány szintes az ingatlan:Földszintes
- Tetőtér:nincs megadva
- Komfortosság:nincs megadva
- Pince:nincs megadva
- Parkolási lehetőség:Beállóban
- Fűtés:Gáz (konvektor)
- Bútorozottság:nincs megadva
- Fényviszony:nincs megadva
- Tájolás:nincs megadva
- Kilátás:nincs megadva
- Internet:nincs megadva
- Klíma:nincs megadva
- Akadálymentesített:nincs megadva
- Energiatanúsítvány:nincs megadva
- Villany:Van
- Víz:Van
- Gáz:Van
- Csatorna:Van
- Kapcsolatfelvétel

Szalay Zsuzsanna
+36-(30)-895-1781
Mondd meg a hirdetőnek, hogy a megveszLAK-on találtad a hirdetést.
Hitel ajánlatok
Ingatlan hirdetés leírása
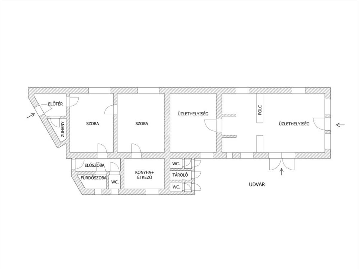
Lakás + üzlethelyiség Piliscsaba városközpont közelében. 336 ...
Lakás + üzlethelyiség Piliscsaba városközpont közelében.
336 Nm-es telken felújítás alatt álló br. 120 Nm-es lakás és üzlethelyiség.
A lakás ~ 55 nm-es, helyiségei: 2 szoba, konyha, 2 fürdőszoba + egy külön wc, közlekedő. a lakás két bejáratos.
Az üzlethelyiség korábban vendéglátóhelyként üzemelt, egy konyhából és vendégtérből + két mosdó található benne. a két helyiség akár teljesen összenyitható, ideális lehet lehet nagy teret igénylő tevékenységekre, mint pl. Raktározás, sport, bemutató stb.
Az udvaron grillező és épített kemence található.
Mindkét ingatlanrész saját fő illetve almérővel rendelkezik.
Övezeti besorolása vt-1 / településközpont vegyes építési övezet, vagyis lakó, -kereskedelmi, -szolgáltató, szórakoztató rendeltetési egység létesíthető rajta.
A telekre teherautóval is be lehet állni alkalmas. Telephely és raktározás céljára kifejezetten alkalmas.
Az eladási ár a felújítás függvényében változhat.
Amennyiben a vásárláshoz hitelt is igénybe szeretne venni, akkor
BANKFÜGGETLEN hitelcentrumunk minden elérhető bank és hitelintézet ajánlatát versenyezteti az Ön kedvéért, ráadásul díjmentesen. FIX 3% lakáshitelre megvehető

