Eladó új építésű ház - Pomáz
- INGYENES HIRDETÉS FELADÁS
Ingatlan adatai
- Feladva:65 napja a megveszLAK-on
- Eladó vagy kiadó:Eladó
- Település:Pomáz
- Kategória:Ház
- Alkategória:Családi ház
- Alapterület:114 m2
- Telekterület:759 m2
- Csere is:Nem
- Hirdető:Cég
- Élő videón megtekinthető:Nem
- Építés éve:2026
- Szobaszám:5
- Állapot:Új építésű
- Hány szintes az ingatlan:nincs megadva
- Tetőtér:nincs megadva
- Komfortosság:nincs megadva
- Pince:nincs megadva
- Parkolási lehetőség:nincs megadva
- Fűtés:Egyéb
- Bútorozottság:nincs megadva
- Fényviszony:nincs megadva
- Tájolás:nincs megadva
- Kilátás:nincs megadva
- Internet:nincs megadva
- Klíma:nincs megadva
- Akadálymentesített:nincs megadva
- Energiatanúsítvány:nincs megadva
- Villany:nincs megadva
- Víz:nincs megadva
- Gáz:nincs megadva
- Csatorna:nincs megadva
- Kapcsolatfelvétel

Thurzó Mónika
+36203503035
Mondd meg a hirdetőnek, hogy a megveszLAK-on találtad a hirdetést.
Hitel ajánlatok
Ingatlan hirdetés leírása
Pomázon, Margitligeten eladó egy újépítésű, egyszintes, duplak...
Pomázon, Margitligeten eladó egy új építésű, egyszintes, duplakomfortos Nappali+ 4 hálószobás családi ház 760 nm -es sík telken.
Átadás: 2026 IV. Negyedév. ( Szerződéskötéstől számított kb. 1 Év )
CSOK és Start Hitel igénybe vehető! ! !
Az épület jellemzői:
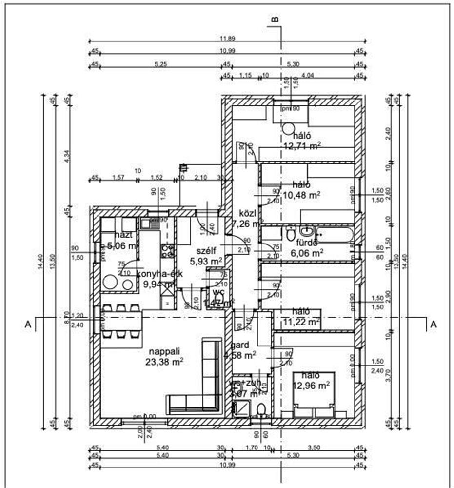
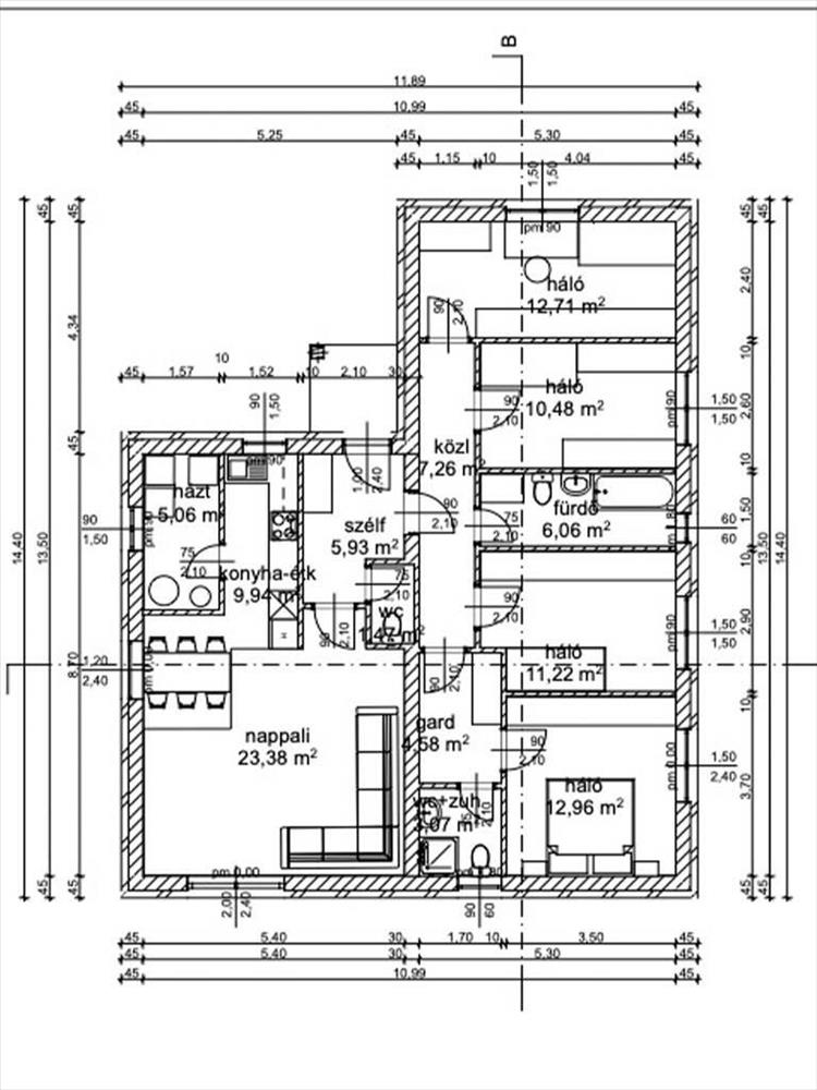
- 114, 12 nm hasznos alapterület
- Falazata: 30-as tégla
- 15 cm szigetelés
- Tető: kontyolt tető, cserépfedéssel
- Födémszigetelés: 30 cm
- Nyilászárók: 7 légkamrás műanyag nyílászárók, 3 rétegű üvegezéssel
- Fűtése: hőszivattyú, padlófűtéssel
- Burkolatok: szobákban laminált parketta, többi helyiségben hidegburkolatok
- térkövezett autóbeálló
- duplakomfort
- Burkolatok, szaniterek választhatók! ! !
Helyiséglista:
- Nappali
- 4 db hálószoba
- konyha + étkező
- közlekedő
- gardrób
- 2 db fürdőszoba
- háztartási helyiség
- szélfogó
- vendég wc
Az épület környezete:
- Családi házas környék
- buszmegálló 2 percre
- hév megálló 10 percre autóval ( forgalom függő )
- Óvoda, Iskola, Bölcsöde a közelben
- Bevásárlási lehetőségek, orvosi rendelő, gyógyszertár, posta, játszótér 5 percre autóval ( forgalom függő)
- Dobogókő- és számos kiránduló helyek a Pilisben
Az ár kulcsrakész ár! ! ! a konyhabútort nem tartalmazza! ! !
A belső képek illusztrációk!
A kivitelező számos referenciával rendelkezik. FIX 3% lakáshitelre megvehető
Tetszett ez az eladó Pomázi új építésű 5 szobás családi ház? Hívd fel a hirdetőt most, és tudj meg mindent erről az eladó családi házról! Ha gondolod nézelődj tovább az eladó ház Pomáz oldal hirdetései között. Ennek az eladó háznak az ára 149900000 Ft és mivel az alapterülete 114 négyzetméter, ezért az átlagos négyzetméterára 1314912 HUF/m2.
Az eladó házak menüpontban további hirdetések között is böngészhetsz. Ha van kedved, akkor böngészhetsz a Thurzó Mónika összes hirdetése között, vagy akár a/az Immo1 Észak-Budapest összes hirdetése között is.

