Eladó befejezetlen ház - Pomáz
- INGYENES HIRDETÉS FELADÁS
Ingatlan adatai
- Eladó vagy kiadó:Eladó
- Település:Pomáz
- Kategória:Ház
- Alkategória:Családi ház
- Alapterület:226 m2
- Telekterület:803 m2
- Csere is:Nem
- Hirdető:Cég
- Élő videón megtekinthető:Nem
- Építés éve:2025
- Szobaszám:10
- Állapot:Befejezetlen
- Hány szintes az ingatlan:Földszintes
- Tetőtér:nincs megadva
- Komfortosság:nincs megadva
- Pince:Nincs
- Parkolási lehetőség:Udvaron
- Fűtés:nincs megadva
- Bútorozottság:nincs megadva
- Fényviszony:nincs megadva
- Tájolás:nincs megadva
- Kilátás:nincs megadva
- Internet:nincs megadva
- Klíma:Van
- Akadálymentesített:nincs megadva
- Energiatanúsítvány:nincs megadva
- Villany:Van
- Víz:Van
- Gáz:Nincs
- Csatorna:Van
- Kapcsolatfelvétel
Kiss Krisztina
+36-(70)-882-5055
Mondd meg a hirdetőnek, hogy a megveszLAK-on találtad a hirdetést.
Hitel ajánlatok
Ingatlan hirdetés leírása
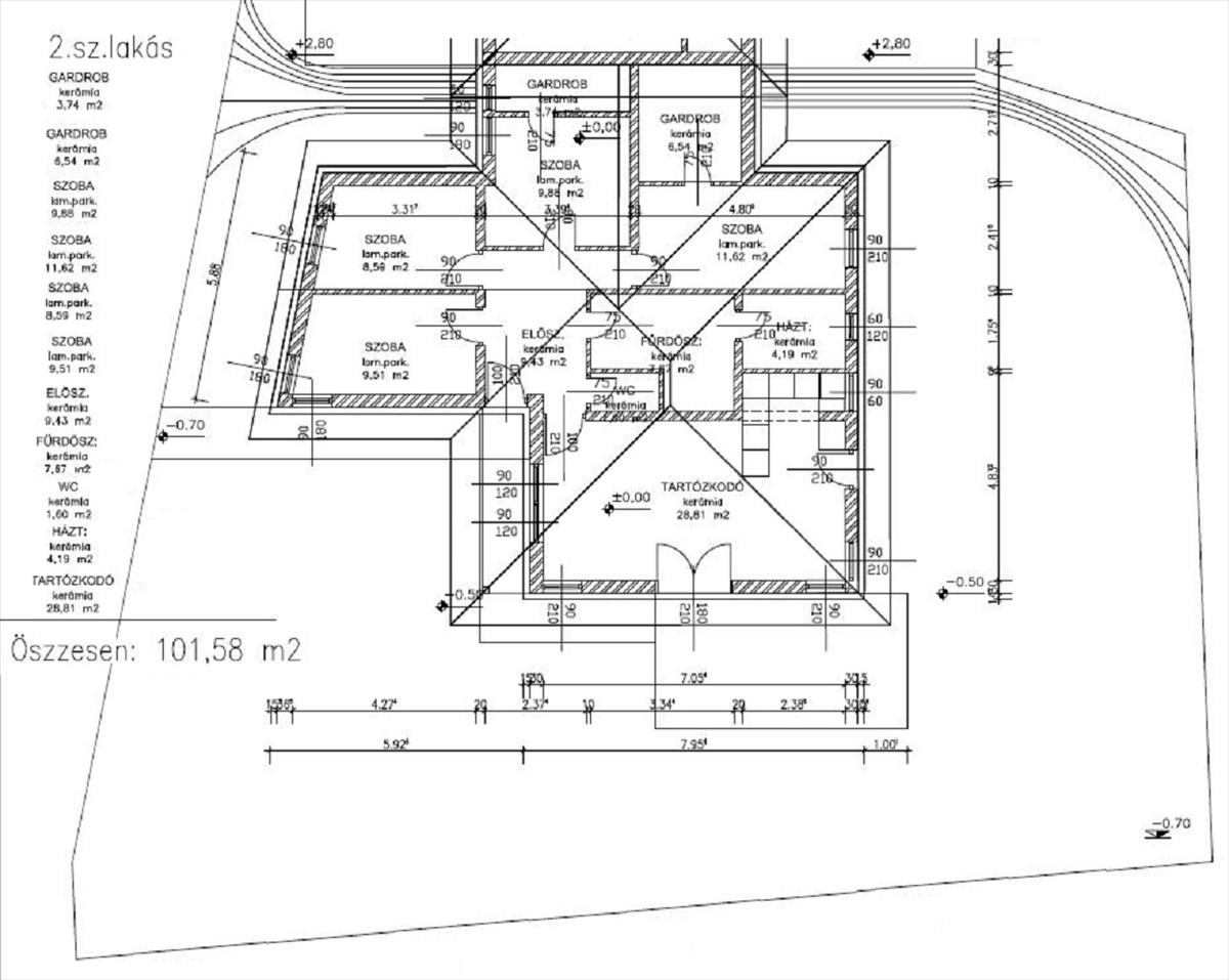
Pomázon a Meselia déli oldalában, csendes környezetben egy szi...
Pomázon a Meselia déli oldalában, csendes környezetben egy szintes, két önálló lakással rendelkező családi ház eladó.
Az építéssel kapcsolatos paraméterek:
- Tervezett átadás: a szerződést követő egy éven belül
- hőszivattyús fűtés, padlófűtéssel, radiátorokkal
- magas minőségű hőszigetelés, zöld hitelnek megfelelő energetikai besorolás
- több rétegű, műanyag nyílászárók
- választható belső burkolatok, szaniterek
- riasztó rendszer előkészítés
- 30 nm-es, az amerikai konyhás nappalihoz kapcsolódó terasz
- durva tereprendezés
- kulcsrakész átadás
Finanszírozási lehetőség:
- Zöld hitel kompatibilitás
- csok, hitel, illeték mentesség, Áfa visszatérítés igényelhető.
- Az alaprajz igény szerint még módosítható.
A beruházó a környék elismert építési vállalkozója, rengeteg referenciamunkával rendelkezik. Hitel.hu - Hasonlítsa össze a bankok lakáshitel ajánlatait

