Eladó ház Pomáz
| | |||
| Kedvencnek jelölöm | Elküldöm emailben | Megosztás | Szavazás |
| Kedvezményes lakáshitel ajánlatok | |||
| 154 900 000 HUF | |||
Ingatlan adatai
- Eladó vagy kiadó:Eladó
- Település:Pomáz
- Kategória:Ház
- Alkategória:Családi ház
- Alapterület:126 m2
- Telekterület:1065 m2
- Csere is:Nem
- Hirdető:Cég
- Élő videón megtekinthető:Nem
- Szobaszám:5
- Állapot:nincs megadva
- Hány szintes az ingatlan:nincs megadva
- Tetőtér:nincs megadva
- Komfortosság:nincs megadva
- Parkolási lehetőség:Beállóban
- Fűtés:nincs megadva
- Bútorozottság:nincs megadva
- Fényviszony:nincs megadva
- Tájolás:nincs megadva
- Kilátás:nincs megadva
- Internet:nincs megadva
- Akadálymentesített:nincs megadva
- Energiatanúsítvány:nincs megadva
- Villany:Van
- Víz:Van
- Gáz:nincs megadva
- Csatorna:Van
- Üzenetküldés
- Hívás


Hitel ajánlat
Ingatlan hirdetés leírása
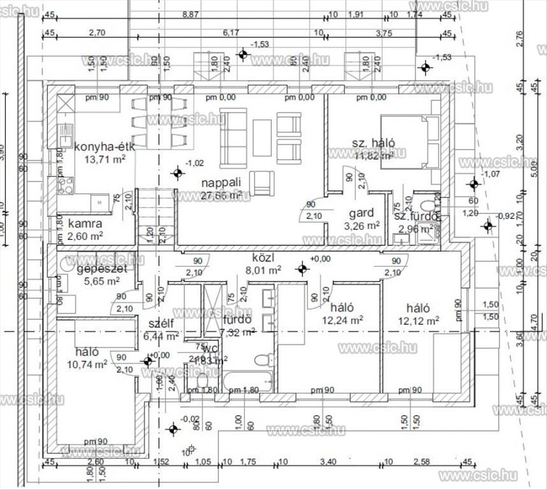
ELADÓ CSALÁDI HÁZ POMÁZ ÚJÉPÍTÉSŰ EGYSZINTES
Eladó Pomázon egy 126 m2-es, egyszintes, új építésű családi ház 1065 m2-es telekkel, a Családi Ingatlan kínálatából.A ház 30-as téglából épül, 12 cm-es szigeteléssel, műanyag nyílászárókkal. Fűtését és melegvíz ellátását hőszivattyú biztosítja. a házban előtér, közlekedő, nappali-étkező-konyha, kamra, 4 hálószoba, 2 fürdőszoba, külön wc, gépészhelyiség kerül kialakításra. Parkolási lehetőség, telken belül megoldott.
Várható átadás: 2026 Tavasz. Hitel.hu - Hasonlítsa össze a bankok lakáshitel ajánlatait

