Eladó jó állapotú ház Ráckeve
| Kedvencbe | Megosztás | Árfigyelő |
| FIX 3% lakáshitelre megvehető | ||
| 64 900 000 HUF | ||
Ingatlan adatai
- Eladó vagy kiadó:Eladó
- Település:Ráckeve
- Kategória:Ház
- Alkategória:Családi ház
- Alapterület:150 m2
- Telekterület:1172 m2
- Csere is:Nem
- Hirdető:Cég
- Élő videón megtekinthető:Nem
- Építés éve:1985
- Szobaszám:4
- Állapot:Jó állapotú
- Hány szintes az ingatlan:nincs megadva
- Tetőtér:nincs megadva
- Komfortosság:Dupla komfortos
- Pince:Nincs
- Parkolási lehetőség:Garázsban
- Fűtés:nincs megadva
- Bútorozottság:nincs megadva
- Fényviszony:nincs megadva
- Tájolás:nincs megadva
- Kilátás:nincs megadva
- Internet:nincs megadva
- Akadálymentesített:nincs megadva
- Energiatanúsítvány:nincs megadva
- Villany:Van
- Víz:Van
- Gáz:Van
- Csatorna:Van
- Üzenetküldés
- Hívás

Belák Ilona Kinga
Mondd meg a hirdetőnek, hogy a megveszLAK-on találtad a hirdetést.

Hitel ajánlat
Ingatlan hirdetés leírása
Eladó Családi ház, Ráckeve, Belváros, 150nm, 64900000 Ft
Tágas családi ház eladó Ráckeve csendes, nyugodt részén – két utcáról megközelíthető, gazdasági épületekkel!Ráckeve kertvárosias övezetében kínálunk megvételre egy stabil szerkezetű, folyamatosan karbantartott, összesen 150 m² alapterületű családi házat, 1172 m²-es, két utcáról is megközelíthető telekkel, ipari árammal.
Az ingatlan a 60-as évek végén épült, a 80-as években bővítésen esett át, ekkor nyerte el mai kialakítását. Az épület betonalapra, téglafalazattal épült, 5 cm-es homlokzati szigeteléssel. a nyílászárók korszerű, hőszigetelt műanyag szerkezetűek, a víz- és elektromos vezetékek részben cserélve lettek.
- Fűtés:
A komfortos hőérzetről központi fűtés gondoskodik, melyet vegyestüzelésű kazán, illetve gázkazán is képes ellátni, radiátoros hőleadással – így igazán rugalmasan szabályozható a fűtési költség.
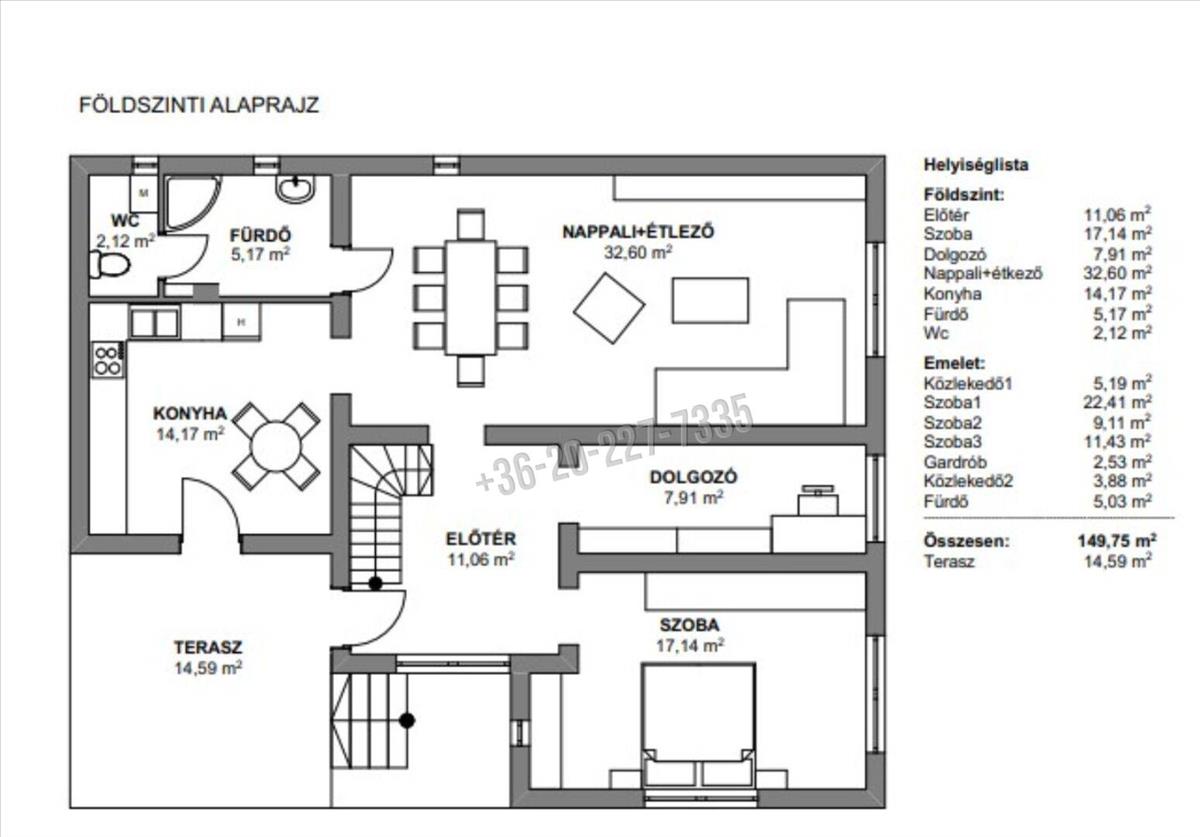
- Helyiségek elosztása:
Földszint: konyha, nappali, különálló fürdőszoba és wc, közlekedő, dolgozószoba, hálószoba
Emelet: két hálószoba, közlekedő, fürdőszoba
- Melléképületek:
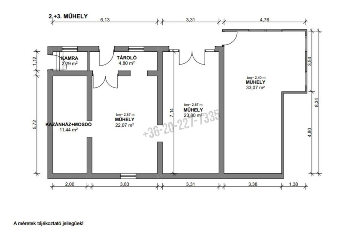
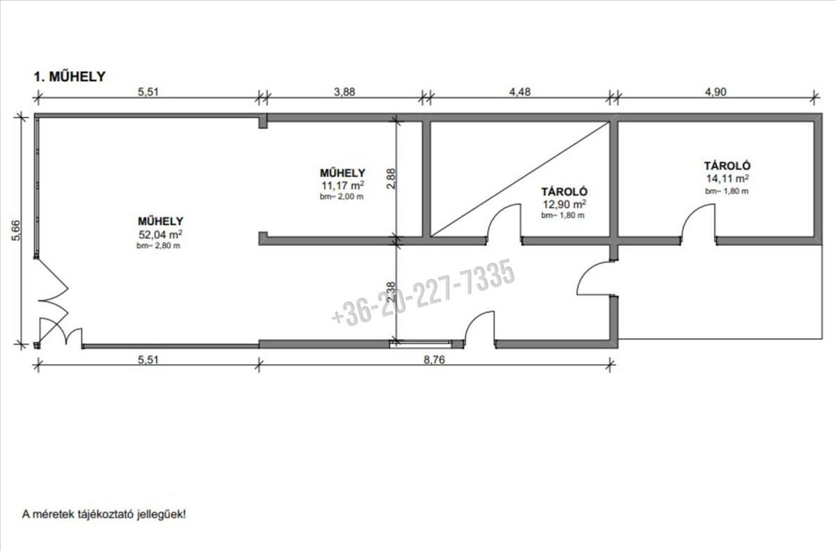
A tágas telken különálló garázs, három külön bejáratú műhely, melyben ipari áram is rendelkezésre áll, valamint egy praktikus nyári konyha is helyet kapott, így vállalkozásra, barkácsolásra, vagy tárolásra is kiváló lehetőség kínálkozik.
- a gondozott, nagyméretű udvar bőven ad teret akár kertészkedésre, akár gyerekeknek, házi kedvenceknek. a telek két irányból is megközelíthető, ami szintén nagy előnyt jelent – akár több generáció, akár vállalkozás számára.
Ez az ingatlan tökéletes választás lehet nagycsaládosoknak, összeköltözőknek, vállalkozóknak vagy bárkinek, aki értékeli a tágas terek, melléképületek és a rugalmas kialakítás lehetőségét egy csendes, mégis jól megközelíthető környéken. FIX 3% lakáshitelre megvehető

