Eladó új építésű ház - Ráckeve
- INGYENES HIRDETÉS FELADÁS
Ingatlan adatai
- Feladva:41 napja a megveszLAK-on
- Eladó vagy kiadó:Eladó
- Település:Ráckeve
- Kategória:Ház
- Alkategória:Családi ház
- Alapterület:130 m2
- Telekterület:606 m2
- Csere is:Nem
- Hirdető:Cég
- Élő videón megtekinthető:Nem
- Építés éve:2026
- Szobaszám:4
- Állapot:Új építésű
- Hány szintes az ingatlan:nincs megadva
- Tetőtér:nincs megadva
- Komfortosság:nincs megadva
- Pince:nincs megadva
- Parkolási lehetőség:nincs megadva
- Fűtés:nincs megadva
- Bútorozottság:nincs megadva
- Fényviszony:nincs megadva
- Tájolás:DNY
- Kilátás:nincs megadva
- Internet:nincs megadva
- Klíma:nincs megadva
- Akadálymentesített:nincs megadva
- Energiatanúsítvány:nincs megadva
- Villany:Van
- Víz:Van
- Gáz:Nincs
- Csatorna:Van
- Kapcsolatfelvétel

Andreopulos Niki
+36-(70)-716-8706
Mondd meg a hirdetőnek, hogy a megveszLAK-on találtad a hirdetést.
Hitel ajánlatok
Ingatlan hirdetés leírása
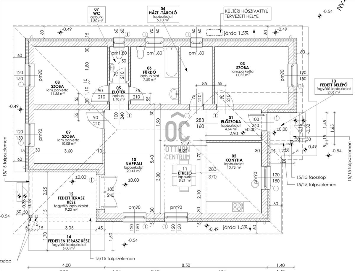
Ráckevén újépítésű családi ház HÁZ: - br. 120 nm, nettó 93 nm...
Ráckevén új építésű családi ház
HÁZ:
- br. 120 Nm, nettó 93 nm nappali + 3 szoba
- 2026-ben épül
- minőségi anyagokból
- Porotherm tégla + dryvit szigetelés (15 cm ), Bramac tetőcserép
- biztonsági bejárati ajtó, 3 rétegű műanyag nyílászárók
- levegő-víz hőszívattyús fűtésrendszer - padlófűtés
- Ariston Velis Evo 100 gazdaságos villanybojler
- electrolux központi PORSZÍVÓ
- 3, 5 kw hűtő-fűtő KLÍMA
- választható burkolatok hideg 4000Ft. /Nm, meleg 4000Ft. /Nm-ig
- remek elosztású, napfényes
TELEK:
- 606 nm telek
- betonozott autóbeálló, járdák
- elektromos KAPU
- körbekerítve
Elhelyezkedés:
- Budapesttől 40 percre
- központi elhelyezkedés
- Éttermek, bevásárlási lehetőség, óvoda, iskola valamint a busz kényelmes sétával elérhető
HITEL és CSOK igényelhető! Minden hivatalos ügyintézésben segítünk!
20 %-Tól már most FOGLALHATÓ!
ÁTADÁS: 2026-10 FIX 3% lakáshitelre megvehető
Tetszett ez az eladó Ráckevei új építésű 4 szobás családi ház? Hívd fel a hirdetőt most, és tudj meg mindent erről az eladó családi házról! Ha gondolod nézelődj tovább az eladó ház Ráckeve oldal hirdetései között. Ennek az eladó háznak az ára 82900000 Ft és mivel az alapterülete 130 négyzetméter, ezért az átlagos négyzetméterára 637692 HUF/m2.
Az eladó házak menüpontban további hirdetések között is böngészhetsz. Ha van kedved, akkor böngészhetsz a Andreopulos Niki összes hirdetése között, vagy akár a/az Otthon Centrum Szigethalom összes hirdetése között is.

