Eladó felújítandó ház - Rádfalva
- INGYENES HIRDETÉS FELADÁS
Ingatlan adatai
- Eladó vagy kiadó:Eladó
- Település:Rádfalva
- Kategória:Ház
- Alkategória:Családi ház
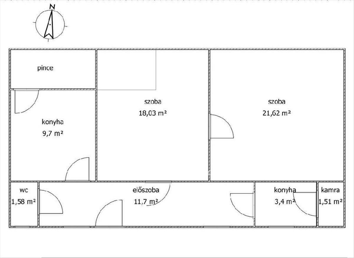
- Alapterület:68 m2
- Telekterület:1530 m2
- Csere is:Nem
- Hirdető:Cég
- Élő videón megtekinthető:Nem
- Építés éve:1970
- Szobaszám:2
- Állapot:Felújítandó
- Hány szintes az ingatlan:Földszintes
- Tetőtér:nincs megadva
- Komfortosság:nincs megadva
- Pince:Van
- Parkolási lehetőség:Udvaron
- Fűtés:Gáz (konvektor)
- Bútorozottság:nincs megadva
- Fényviszony:Napfényes
- Tájolás:D
- Kilátás:nincs megadva
- Internet:nincs megadva
- Klíma:nincs megadva
- Akadálymentesített:Akadálymentesített
- Energiatanúsítvány:nincs megadva
- Villany:Van
- Víz:Van
- Gáz:Van
- Csatorna:Nincs
- Kapcsolatfelvétel

Vincze László György
+36-(20)-938-4141
Mondd meg a hirdetőnek, hogy a megveszLAK-on találtad a hirdetést.
Referencia szám: M320896
Hitel ajánlatok
Ingatlan hirdetés leírása
Eladó Ház, Rádfalva, Eladó felújítandó ház - Rádfalva
2 Szobás ház eladó Rádfalván!
1530 Négyzetméteres vízszintes terület tartozik hozzá.
Fel kell újítani! Az ablakokat és a bejárati ajtót műanyagra cserélték. Az egyik szobában van gázkonvektoros fűtés. a másikban nincs, a konyhában kályha volt valamikor, a kémény használható. a villanybojlert leszerelték. a gázórát a szolgáltató elvitte, az új tulajdonosnak vissza fogja szereltetni. Vízszolgáltatás van, a szennyvizet derítőben lehet gyűjteni. a ház alatt egy pince van, ami benyúlik az egyik szoba alá.
Referenciaszám: M320896
13800000 Ft
Referencia szám: m320896 FIX 3% lakáshitelre megvehető
Tetszett ez az eladó Rádfalvai felújítandó 2 szobás családi ház? Hívd fel a hirdetőt most, és tudj meg mindent erről az eladó családi házról! Ha gondolod nézelődj tovább az eladó ház Rádfalva oldal hirdetései között. Ennek az eladó háznak az ára 13800000 Ft és mivel az alapterülete 68 négyzetméter, ezért az átlagos négyzetméterára 202941 HUF/m2.
Az eladó házak menüpontban további hirdetések között is böngészhetsz. Ha van kedved, akkor böngészhetsz a Vincze László György összes hirdetése között, vagy akár a/az OTPip Pécs Király utca 75 - OTP Ingatlanpont Iroda összes hirdetése között is.

