Eladó újszerű állapotú ház Remeteszőlős
| Kedvencbe | Megosztás | Árfigyelő |
| Kedvezményes lakáshitel ajánlatok | ||
| 185 000 000 HUF | ||
Ingatlan adatai
- Eladó vagy kiadó:Eladó
- Település:Remeteszőlős
- Kategória:Ház
- Alkategória:Családi ház
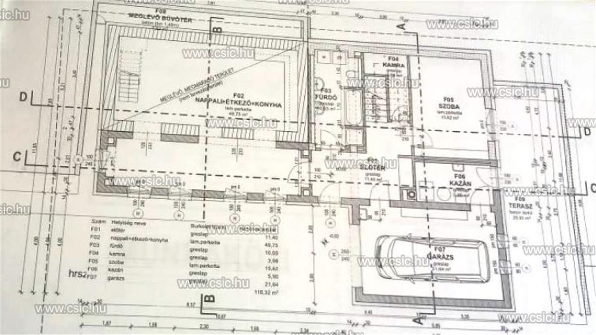
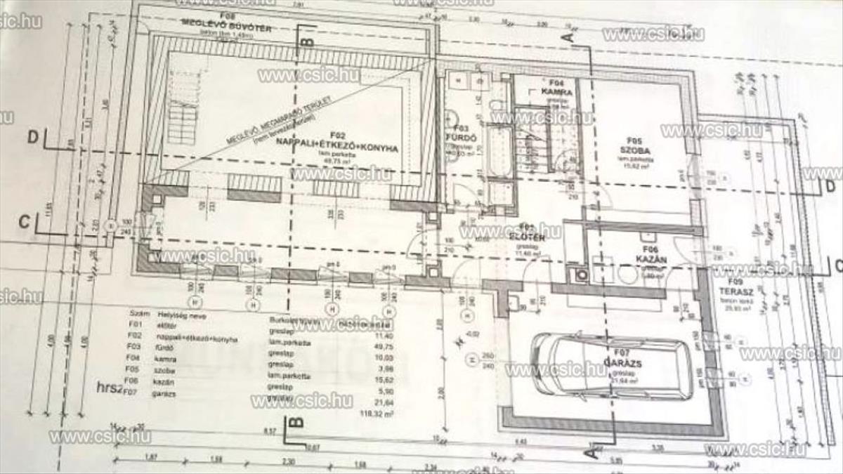
- Alapterület:209 m2
- Telekterület:714 m2
- Csere is:Nem
- Hirdető:Cég
- Élő videón megtekinthető:Nem
- Szobaszám:4 + 1 fél
- Állapot:Újszerű, kitűnő
- Hány szintes az ingatlan:nincs megadva
- Tetőtér:nincs megadva
- Komfortosság:Összkomfortos
- Parkolási lehetőség:Garázsban
- Fűtés:Egyéb
- Bútorozottság:nincs megadva
- Fényviszony:nincs megadva
- Tájolás:nincs megadva
- Kilátás:Panorámás
- Internet:nincs megadva
- Akadálymentesített:nincs megadva
- Energiatanúsítvány:nincs megadva
- Villany:Van
- Víz:Van
- Gáz:Van
- Csatorna:Van
- Üzenetküldés
- Hívás


Hitel ajánlat
Ingatlan hirdetés leírása
ELADÓ CSALÁDI HÁZ REMETESZŐLŐS
Eladó panorámás családi ház REMETESZŐLŐSÖNA korábbi üdülőépület bővítésével kialakított kétszintes családi ház hatalmas teraszáról és tetőteréből pazar panoráma nyílik a környező hegyekre. Az ingatlan akár két generáció számára is kialakítható.
A kertből a nappali-konyhába érkezünk. a földszinten található továbbá még egy kádas-zuhanyzós fürdőszoba, valamint egy privát terasszal rendelkező kertkapcsolatos háló- vagy dolgozószoba, valamint a kazánoknak és tartályoknak helyet adó gépészeti helyiség. a tetőtér két különálló részre tagolódik. a nappaliból megközelíthető tetőtérrészben egymásból nyíló két szoba kapott helyet, amelyek igény szerint egybe is nyithatók. a lépcsőházból megközelíthető tetőtérben egy nappaliként is használható nagyméretű társalgó, egy fürdő-, illetve egy hálószoba található. Az ablakos, fűtött egyállásos garázs akár szobává is alakítható.
A ház fűtését gázkazán és alternatívaként vegyes tüzelésű kazán biztosítja radiátoros hőleadókkal. Az eladó remeteszőlősi családi ház hőszigetelt, korszerű műanyag nyílászárókkal ellátott. a kert térkövezett részén további 3-4 gépkocsi elhelyezésére van lehetőség.
Kiváló lokáció: bkk buszmegálló, élelmiszerüzlet 500 m-re, az aisb autóval 3 percre. Megtekintéssel kapcsolatban várom hívását akár hétvégén is! Hitel.hu - Hasonlítsa össze a bankok lakáshitel ajánlatait

