Eladó ház - Ricse
- INGYENES HIRDETÉS FELADÁS
Ingatlan adatai
- Feladva:4 hónapja a megveszLAK-on
- Eladó vagy kiadó:Eladó
- Település:Ricse
- Kategória:Ház
- Alkategória:Családi ház
- Alapterület:120 m2
- Telekterület:1437 m2
- Csere is:Igen
- Hirdető:Magánszemély
- Élő videón megtekinthető:Nem
- Építés éve:2000
- Szobaszám:4
- Állapot:Jó állapotú
- Hány szintes az ingatlan:3 szintes
- Tetőtér:Beépített
- Komfortosság:Összkomfortos
- Pince:Van
- Parkolási lehetőség:Garázsban
- Fűtés:Vegyes tüzelésű kazán
- Bútorozottság:Bútorozott
- Fényviszony:Jó
- Tájolás:nincs megadva
- Kilátás:Utcai
- Internet:nincs megadva
- Klíma:Van
- Akadálymentesített:Nem akadálymentesített
- Energiatanúsítvány:nincs megadva
- Villany:Van
- Víz:Van
- Gáz:nincs megadva
- Csatorna:Van
- Kapcsolatfelvétel

Madzinné Marika
+36-(20)-489-5056
Mondd meg a hirdetőnek, hogy a megveszLAK-on találtad a hirdetést.
Hitel ajánlatok
Ingatlan hirdetés leírása
Eladó kétgenerációs családi ház Ricse belterületén
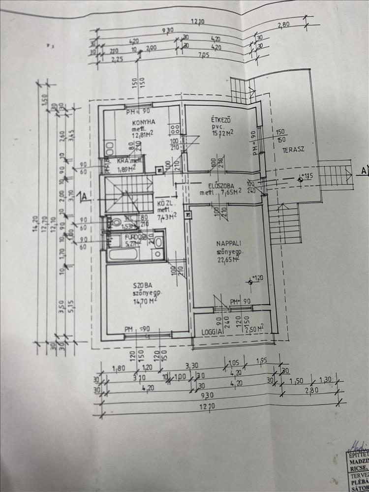
Ricse belterületén kínálok megvételre egy 1437 m²-es telken fekvő, tágas, kétszintes és pincével rendelkező, azonnal költözhető családi házat, amely kiváló választás lehet nagycsaládosoknak vagy akár két generáció számára is. Az ingatlan csendes, tiszta környéken helyezkedik el, 9, 70 x 12, 30 méter alapterületű és a nettó 200 m²-es lakótér elegendő helyet biztosít akár nagyobb család számára is.
A ház alsó szintjén pince található, ahol a kazánház kapott helyet központi vegyes tüzelésű fűtéssel, valamint egy garázs is innen nyílik. a földszinten két szoba, egy nappali, egy konyha spájzzal, egy fürdőszoba és egy különálló wc található. a külső nagy terasz kellemes helyszínt biztosít családi összejövetelekhez vagy pihenéshez. a tetőtérben további két szoba - melyekből az egyik erkélyes-, valamint egy fürdőszoba WC-vel került kialakításra, így a felső szint akár külön élettérként is funkcionálhat.
Az utcafront felől egy különálló lemezgarázs is rendelkezésre áll.
A nagy méretű kert nemcsak pihenésre alkalmas, hanem kiváló adottságokkal rendelkezik otthoni zöldség- és gyümölcstermesztéshez is, így akár saját konyhakertet vagy gyümölcsöst is kialakíthat új tulajdonosa. a több melléképülettel rendelkező ingatlan ideális választás lehet kisebb családi gazdaság működtetésére, állattartásra vagy műhely kialakítására. a biztonságról kiépített kamera- és riasztórendszer gondoskodik, a komfortérzetet pedig a 2025-ben felszerelt két klímaberendezés növeli. Az ingatlan megegyezés szerint akár bútorozottan is eladó.
A településen bölcsőde, óvoda, iskola és gyógyszertár is megtalálható, így a mindennapi élethez szükséges intézmények könnyen elérhetők. Mindössze 5 percnyi gyaloglásra található egy horgásztó mely kitűnő időtöltés lehet kikapcsolódáshoz.
Ricse falutól nem messze találhatók olyan városok, mint például:
Kisvárda (23 km-re távolságra), különféle rendezvények és számos üzlet, kórház, mozi, cukrászdák, éttermek stb.
Sátoraljaújhely (36 km-re), ahol különféle üzletek, kórház, gyalogos övezet, cukrászdák, éttermek, a Zemplén Kalandpark (zemplénkalandpark. Hu).
Sárospatak (40 km-re) ahol szintén különféle rendezvények és számos üzlet, kórház, cukrászdák, éttermek, termálfürdő található.
Az ingatlan irányára 31. 500. 000 Ft, és budapesti vagy Budapest környéki ingatlanra történő csere is szóba jöhet értékegyeztetéssel.
Ez az otthon ideális választás lehet mindazok számára, akik nyugodt, vidéki környezetben keresnek tágas, biztonságos és jól alakítható életteret.
Megtekintés előre egyeztetett időpontban lehetséges! FIX 3% lakáshitelre megvehető
Tetszett ez a cserélhető Ricsei jó állapotú 4 szobás családi ház? Hívd fel a hirdetőt most, és tudj meg mindent erről a cserélhető családi házról! Ha gondolod nézelődj tovább a cserélhető ház Ricse oldal hirdetései között. Ennek az eladó háznak az ára 31500000 Ft és mivel az alapterülete 120 négyzetméter, ezért az átlagos négyzetméterára 262500 HUF/m2.
A eladó házak menüpontban további hirdetések között is böngészhetsz. Ha van kedved, akkor böngészhetsz a Madzinné Marika összes hirdetése között.

