Eladó átlagos állapotú ház - Sajószentpéter
- INGYENES HIRDETÉS FELADÁS
Ingatlan adatai
- Eladó vagy kiadó:Eladó
- Település:Sajószentpéter
- Kategória:Ház
- Alkategória:Családi ház
- Alapterület:138 m2
- Telekterület:1200 m2
- Csere is:Nem
- Hirdető:Cég
- Élő videón megtekinthető:Nem
- Építés éve:1956
- Szobaszám:2
- Állapot:Átlagos állapotú
- Hány szintes az ingatlan:nincs megadva
- Tetőtér:nincs megadva
- Komfortosság:nincs megadva
- Pince:Nincs
- Parkolási lehetőség:Udvaron
- Fűtés:Gáz (cirko)
- Bútorozottság:nincs megadva
- Fényviszony:nincs megadva
- Tájolás:D
- Kilátás:nincs megadva
- Internet:nincs megadva
- Klíma:nincs megadva
- Akadálymentesített:Nem akadálymentesített
- Energiatanúsítvány:nincs megadva
- Villany:Van
- Víz:Van
- Gáz:Van
- Csatorna:Van
- Rezsi:35 000 Ft
- Kapcsolatfelvétel

Kozák Csaba
+36-(30)-165-3051
Mondd meg a hirdetőnek, hogy a megveszLAK-on találtad a hirdetést.
Hitel ajánlatok
Ingatlan hirdetés leírása
Két különálló családi ház eladó Sajószentpéteren - kiváló lehe...
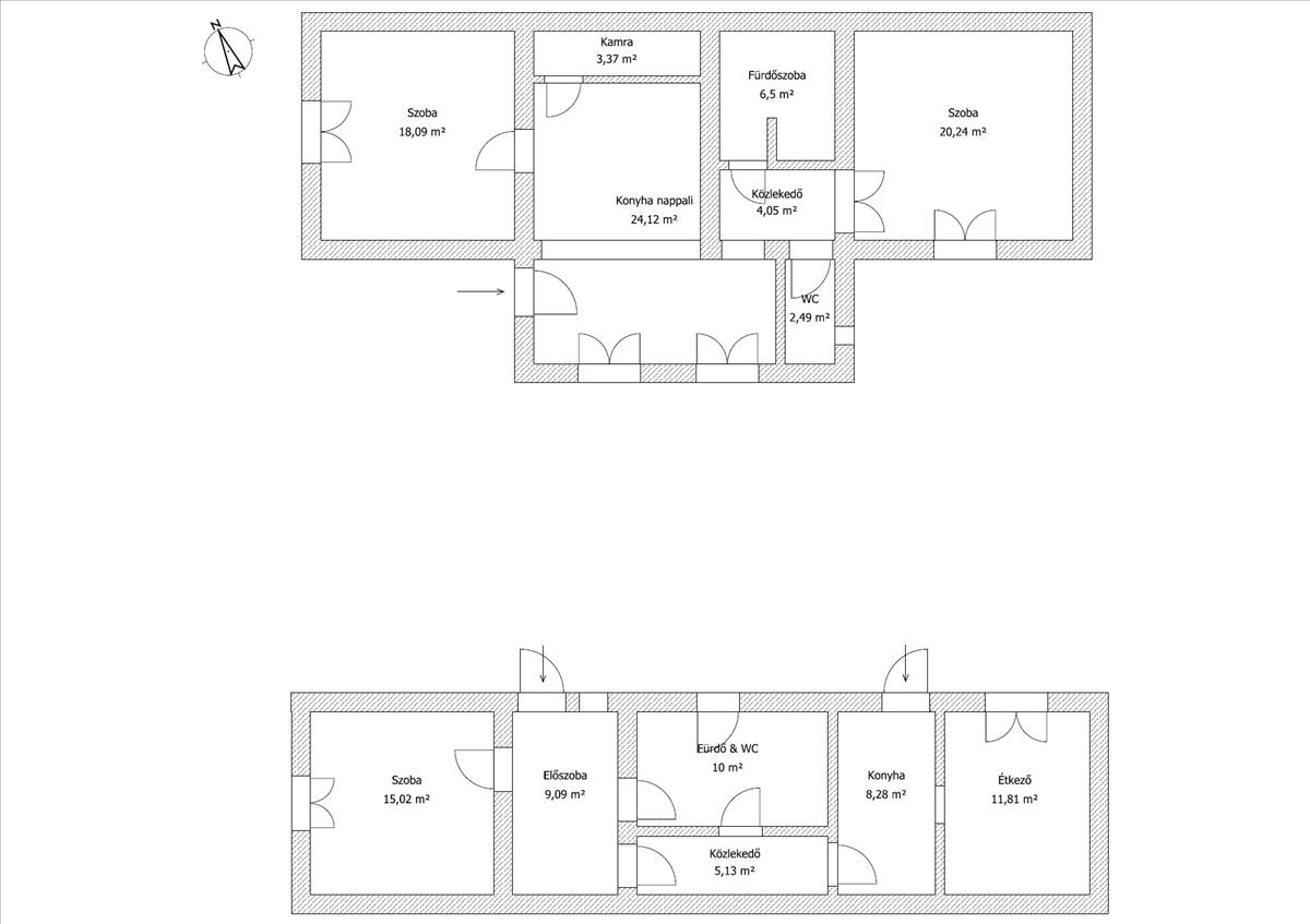
Sajószentpéteren, az edelényi elágazás közelében, egy 1200 m²-es telken két különálló családi ház eladó. Az ingatlan ideális választás lehet több generáció együttélésére, befektetésre vagy akár bérbeadásra is, hiszen a két ház egymástól függetlenül használható.
A telken található épületek 79 m² és 60 m² alapterületűek, az udvar két oldalán, egymással szemben helyezkednek el, így mindkét ház külön életteret biztosít.
Telek
A 1200 m²-es telek hátsó része mintegy 800 m², amely bőséges lehetőséget kínál:
- kertészkedésre
- pihenőkert kialakítására
- további melléképületek vagy garázs építésére
Az udvaron jelenleg lemezgarázs található, de a nagy telek miatt további parkolóhelyek vagy garázsok kialakítása is könnyen megoldható.
Közművek
A két ház külön villany- és gázórával rendelkezik, ami jelentősen megkönnyíti a külön használatot vagy bérbeadást.
A vízóra közös.
Nagyobb családi ház - 79 m²
Az ingatlan összkomfortos, átlagos állapotú, azonnal lakható.
Elrendezése:
- 2 tágas szoba
- kényelmes konyha
- külön fürdőszoba és WC
Jellemzők:
- gázcirkó fűtés, téli fűtési költség kb. 25 000 Ft/hó
- műanyag nyílászárók
Kisebb családi ház – 60 m²
Ez az épület felújítandó állapotú, így új tulajdonosa saját elképzelései szerint alakíthatja.
Elrendezése:
- 1 tágas szoba
- előszoba
- konyha étkezővel
- fürdőszoba és wc egyben
Jellemzők:
- konvektoros fűtés
- villanybojler biztosítja a melegvizet
- fa nyílászárók
Fontos tudnivalók
Mindkét épület esetében a homlokzat és a tető héjazat felújítása időszerű, amely remek lehetőséget ad arra, hogy az új tulajdonos saját ízlése szerint korszerűsítse az ingatlanokat.
„Az ingatlan energetikai besorolásának meghatározása jelenleg folyamatban van. FIX 3% lakáshitelre megvehető
Tetszett ez az eladó Sajószentpéteri átlagos állapotú 2 szobás családi ház? Hívd fel a hirdetőt most, és tudj meg mindent erről az eladó családi házról! Ha gondolod nézelődj tovább az eladó ház Sajószentpéter oldal hirdetései között. Ennek az eladó háznak az ára 27600000 Ft és mivel az alapterülete 138 négyzetméter, ezért az átlagos négyzetméterára 200000 HUF/m2.
Az eladó házak menüpontban további hirdetések között is böngészhetsz. Ha van kedved, akkor böngészhetsz a Kozák Csaba összes hirdetése között, vagy akár a/az Newex Ingatlaniroda összes hirdetése között is.

