Eladó felújítandó ház - Sajószentpéter (33567473)
ELADÓ INGATLANOK
KIADÓ INGATLANOK
CSERE INGATLANOK
KÜLFÖLDI INGATLANOK
RÉSZLETES KERESÉS
INGATLAN HÍREK
HIRDETÉS FELADÁS
BELÉPÉS
REGISZTRÁCIÓ
hirdetés 1. fotó
hirdetés 2. fotóhirdetés 3. fotó
hirdetés 4. fotóhirdetés 5. fotó
hirdetés 6. fotó
+ 14 fotó
hirdetés 7. fotó
+ 11 fotó
hirdetés 7. fotóhirdetés 8. fotóhirdetés 9. fotóhirdetés 10. fotóhirdetés 11. fotóhirdetés 12. fotóhirdetés 13. fotóhirdetés 14. fotóhirdetés 15. fotóhirdetés 16. fotóhirdetés 17. fotó

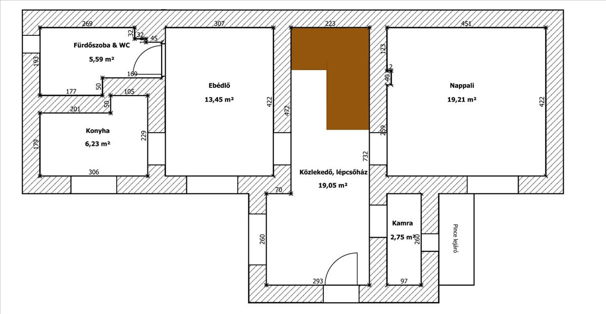
Ingatlan adatai

  • Eladó vagy kiadó:Eladó
  • Település:Sajószentpéter
  • Kategória:Ház
  • Alkategória:Családi ház
  • Alapterület:94 m2
  • Telekterület:1221 m2
  • Csere is:Nem
  • Hirdető:Cég
  • Élő videón megtekinthető:Nem
  • Szobaszám:3
  • Állapot:Felújítandó
  • Hány szintes az ingatlan:Földszintes
  • Tetőtér:nincs megadva
  • Komfortosság:nincs megadva
  • Pince:Nincs
  • Parkolási lehetőség:Garázsban
  • Fűtés:Gáz (cirko)
  • Bútorozottság:nincs megadva
  • Fényviszony:nincs megadva
  • Tájolás:DNY
  • Kilátás:nincs megadva
  • Internet:nincs megadva
  • Klíma:nincs megadva
  • Akadálymentesített:Nem akadálymentesített
  • Energiatanúsítvány:nincs megadva
  • Villany:Van
  • Víz:Van
  • Gáz:Van
  • Csatorna:Van
  • Kapcsolatfelvétel
Kozák Csaba
Kozák Csaba
+36-(30)-165-3051
Mondd meg a hirdetőnek, hogy a megveszLAK-on találtad a hirdetést.
Érdekel kedvezményes lakáshitel ajánlat is
Az ASZF-et és az Adatkezelési tájékoztatót elfogadom

Hitel ajánlatok

 

Ingatlan hirdetés leírása

Belvárosi családi ház nagy telekkel!


Eladó Sajószentpéter Belvárosában egy 94 m² alapterületű, tégla építésű családi ház, amely 1 221 m²-es telken helyezkedik el. Az ingatlan felújítandó állapotban van, így új tulajdonosa saját elképzelései szerint újíthatja fel és alakíthatja ki a belső tereket.

A házban három különálló szoba található, amelyek jól alakítható életteret biztosítanak család számára. a helyiségek elrendezése praktikus, a nagy telekméret pedig lehetőséget ad kert kialakítására, bővítésre vagy akár további fejlesztésre is.

A telek délnyugati tájolású, ennek köszönhetően a ház világos, napfényes. a környezet csendes, ugyanakkor a belvárosi elhelyezkedés miatt a boltok, iskola, óvoda és egyéb szolgáltatások rövid időn belül elérhetők.

A fűtésről cirkó rendszer gondoskodik. Az ingatlan összkomfortos, minden közmű rendelkezésre áll. a parkolás garázsban megoldott, ami a központi elhelyezkedés mellett külön előnyt jelent.

Az elérhető irányár  28 500 000 Ft, ami figyelembe véve a telket és a ház adottságait, kiváló befektetési lehetőséget kínál. Ne hagyja ki ezt az alkalmat, hogy saját otthona tervezésébe kezdjen!

„Az ingatlan energetikai besorolásának meghatározása jelenleg folyamatban van. FIX 3% lakáshitelre megvehető

Tetszett ez az eladó Sajószentpéteri felújítandó 3 szobás családi ház? Hívd fel a hirdetőt most, és tudj meg mindent erről az eladó családi házról! Ha gondolod nézelődj tovább az eladó ház Sajószentpéter oldal hirdetései között. Ennek az eladó háznak az ára 28500000 Ft és mivel az alapterülete 94 négyzetméter, ezért az átlagos négyzetméterára 303191 HUF/m2.

Az eladó házak menüpontban további hirdetések között is böngészhetsz. Ha van kedved, akkor böngészhetsz a Kozák Csaba összes hirdetése között, vagy akár a/az Newex Ingatlaniroda összes hirdetése között is.

 
 
© megveszLAK.hu - Az egyszerűen jó ingatlan hirdetési oldal