Eladó jó állapotú ház - Sárvár
- INGYENES HIRDETÉS FELADÁS
Ingatlan adatai
- Eladó vagy kiadó:Eladó
- Település:Sárvár
- Kategória:Ház
- Alkategória:Családi ház
- Alapterület:80 m2
- Telekterület:3569 m2
- Csere is:Nem
- Hirdető:Cég
- Élő videón megtekinthető:Nem
- Építés éve:2006
- Szobaszám:3
- Állapot:Jó állapotú
- Hány szintes az ingatlan:nincs megadva
- Tetőtér:nincs megadva
- Komfortosság:nincs megadva
- Pince:nincs megadva
- Parkolási lehetőség:nincs megadva
- Fűtés:Cserépkályha
- Bútorozottság:nincs megadva
- Fényviszony:nincs megadva
- Tájolás:NY
- Kilátás:nincs megadva
- Internet:nincs megadva
- Klíma:nincs megadva
- Akadálymentesített:nincs megadva
- Energiatanúsítvány:nincs megadva
- Villany:Van
- Víz:Van
- Gáz:Nincs
- Csatorna:Nincs
- Kapcsolatfelvétel

Szolnoki Nóra
+36-(70)-388-5831
Mondd meg a hirdetőnek, hogy a megveszLAK-on találtad a hirdetést.
Hitel ajánlatok
Ingatlan hirdetés leírása
Sárvár csendes, nyugodt Hegyközségi részén kínálunk eladásra e...
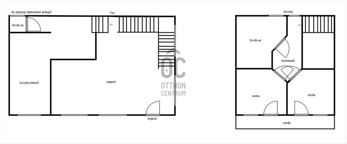
Sárvár csendes, nyugodt Hegyközségi részén kínálunk eladásra egy 2006-ban épült családi házat, mely 3569 nm -es területen helyezkedik el.
Az ingatlan nappali +2 szobával, konyha-étkezővel, 2 fürdőszoba-wc-vel és erkéllyel rendelkezik -melyről gyönyörű panoráma tárul elénk a zöldellő területre.
A nappaliban hatalmas üvegfelületeket alakítottak ki, ennek és a NY-i tájolásnak köszönhetően a ház szinte egész nap fényárban úszik. a nyitott födémes kialakítás miatt nagyon egyedi és tágas, világos hangulat jellemzi a helyiséget.
A sok természetes, fa anyag felhasználásából adódóan az ingatlan teljesen beleillik a környezetbe. Itt a természet és az ember végtelen harmóniában élhet egy csendes, nyugodt helyen, közvetlen az erdő és annak sokszínű élővilága mellett.
A nyílászáró fa, hő- és hangszigetelt. Az otthon melegéről kandalló gondoskodik, mely a hideg téli napokban tovább fokozza az ingatlan hangulatát és meghitt melegséget áraszt. Opcionálisan két hűtő-fűtő klíma is rendelkezésre áll az emeleti szobákban.
Amennyiben minden álma egy egyedi enteriőrrel rendelkező, természetközeli, beleszeretős családi ház, ne habozzon, hívjon bizalommal! Ne maradjon le erről a kivételes lehetőségről! ! Nézze meg minél előbb!
Hitelre van szüksége? Az Otthon Centrum az ország egyik legnagyobb és legmegbízhatóbb hitelközvetítőjeként, teljes körű és díjmentes hitel ügyintézéssel, biztosításkötéssel áll rendelkezésére! Kérje személyre szabott ajánlatunkat Kollégáinktól!
Válassza ki az Önnek legmegfelelőbbet! FIX 3% lakáshitelre megvehető
Tetszett ez az eladó Sárvári jó állapotú 3 szobás családi ház? Hívd fel a hirdetőt most, és tudj meg mindent erről az eladó családi házról! Ha gondolod nézelődj tovább az eladó ház Sárvár oldal hirdetései között. Ennek az eladó háznak az ára 59900000 Ft és mivel az alapterülete 80 négyzetméter, ezért az átlagos négyzetméterára 748750 HUF/m2.
Az eladó házak menüpontban további hirdetések között is böngészhetsz. Ha van kedved, akkor böngészhetsz a Szolnoki Nóra összes hirdetése között, vagy akár a/az Otthon Centrum Szombathely – Széll Kálmán utca összes hirdetése között is.

