Eladó jó állapotú ház - Segesd
- INGYENES HIRDETÉS FELADÁS
Ingatlan adatai
- Eladó vagy kiadó:Eladó
- Település:Segesd
- Kategória:Ház
- Alkategória:Családi ház
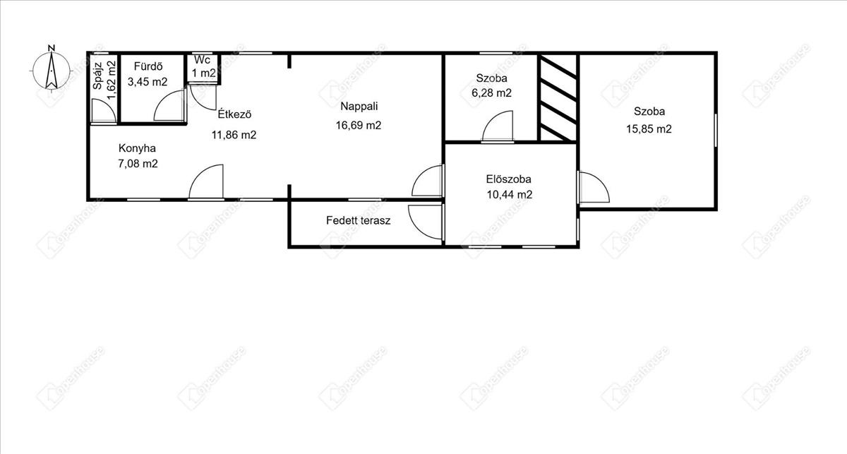
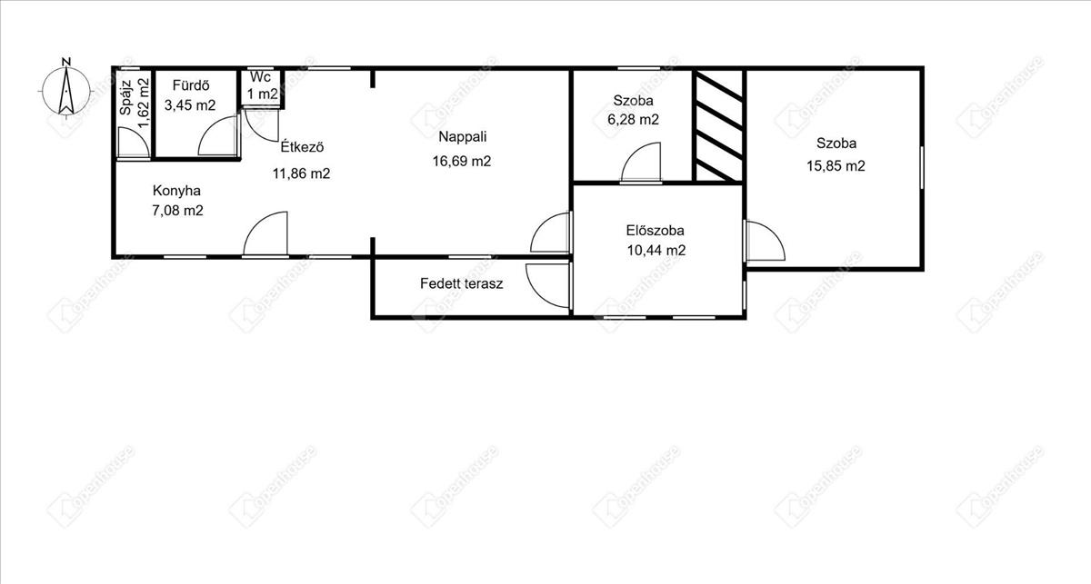
- Alapterület:75 m2
- Telekterület:3141 m2
- Csere is:Nem
- Hirdető:Cég
- Élő videón megtekinthető:Nem
- Építés éve:1950
- Szobaszám:3
- Állapot:Jó állapotú
- Hány szintes az ingatlan:Földszintes
- Tetőtér:nincs megadva
- Komfortosság:nincs megadva
- Pince:nincs megadva
- Parkolási lehetőség:Udvaron
- Fűtés:Gáz (konvektor)
- Bútorozottság:nincs megadva
- Fényviszony:Jó
- Tájolás:D
- Kilátás:nincs megadva
- Internet:nincs megadva
- Klíma:Van
- Akadálymentesített:nincs megadva
- Energiatanúsítvány:nincs megadva
- Villany:Van
- Víz:Van
- Gáz:Van
- Csatorna:Van
- Kapcsolatfelvétel
Béres-Dergecz Anikó
+36-(30)-508-4899
Mondd meg a hirdetőnek, hogy a megveszLAK-on találtad a hirdetést.
Referencia szám: 179264
Hitel ajánlatok
Ingatlan hirdetés leírása
Segesd központjában, felújítás alatt álló családi ház eladó
Az Openhouse Kaposvár Ingatlaniroda kínálatában eladó a #179264 hivatkozási számú segesdi családi ház.
Költözz be új otthonodba Segesden!
Segesd központjában felújítás alatt álló családi ház eladó!
Új lakóit várja ez a részben felújított, részben felújítandó, vegyes falazatú, 75 m2 alapterületű, családi ház. Szerkezetileg jó állapotnak örvend, 2 szoba, előszoba, nappali, étkező, konyha, kamra, fürdő és wc helyiségekkel rendelkezik jelenleg. Fűtése gáz konvektorokkal, illetve klíma berendezéssel megoldott. a tetőszerkezet felújított állapotú, nyílászárói egy részét már műanyagra váltották. Teljes villanyhálózata áthúzásra került, burkolatait részben kicserélték. a ház igény szerint tovább alakítható. Az ingatlan 3141 m2 méretű, gazdálkodásra is alkalmas, nagy telken fekszik, melyen téglából épült melléképület és állattartásra alkalmas ólak, gyümölcsfák is találhatók.
Az ingatlan összközműves.
Kiváló lehetőséget nyújt akár gyerekes családok, akár az idősebb korosztály számára. Az ingatlan központi elhelyezkedésű, 200 méteren belül busz megálló, étterem, posta, gyógyszertár, orvosi rendelő, védőnői szolgálat, benzinkút is megtalálható.
Elhelyezkedés és távolságok:
Segesd Belső-Somogy egyik, több mint ezeréves történelmi múlttal rendelkező nagyközsége, Nagyatádtól 13 kilométerre északra, Kaposvártól kb. 40 Km-re délre helyezkedik el. a községben található bölcsőde, óvoda, iskola, bolt, posta, orvosi rendelő, gyógyszertár, étterem, szociális otthon, benzinkút is megtalálható.
Tedd magadévá ezt a csodálatos lehetőséget, ahol a béke és a nyugalom adott!
Ha felkeltette érdeklődését ez az eladó segesdi családi ház, vagy bármely más családi ház és bővebb információt szeretne, keressen bizalommal. Hivatkozási szám: #179264
Az Openhouse Kaposvár Ingatlaniroda tagjaként várom Önt az országos hálózatunk teljes kínálatával.
A családi ház vásárláshoz hitelt igényelne? Ingyenes hitelközvetítéssel segít Önnek bankfüggetlen hitelszakértőnk.
További szolgáltatásainkkal (pl. Értékbecslés, energetikai tanúsítvány, jogi háttér) is segítjük Önt a vásárlásban.
Az otthon érték. Az ingatlan üzlet. FIX 3% lakáshitelre megvehető
Tetszett ez az eladó Segesdi jó állapotú 3 szobás családi ház? Hívd fel a hirdetőt most, és tudj meg mindent erről az eladó családi házról! Ha gondolod nézelődj tovább az eladó ház Segesd oldal hirdetései között. Ennek az eladó háznak az ára 29900000 Ft és mivel az alapterülete 75 négyzetméter, ezért az átlagos négyzetméterára 398667 HUF/m2.
Az eladó házak menüpontban további hirdetések között is böngészhetsz. Ha van kedved, akkor böngészhetsz a Béres-Dergecz Anikó összes hirdetése között, vagy akár a/az Open House Openhouse Kaposvár Ingatlaniroda összes hirdetése között is.

