Eladó átlagos állapotú ház - Selyeb
- INGYENES HIRDETÉS FELADÁS
Ingatlan adatai
- Feladva:4 hónapja a megveszLAK-on
- Eladó vagy kiadó:Eladó
- Település:Selyeb
- Kategória:Ház
- Alkategória:Családi ház
- Alapterület:350 m2
- Telekterület:1194 m2
- Csere is:Nem
- Hirdető:Cég
- Élő videón megtekinthető:Nem
- Építés éve:1970
- Szobaszám:2
- Állapot:Átlagos állapotú
- Hány szintes az ingatlan:2 szintes
- Tetőtér:nincs megadva
- Komfortosság:nincs megadva
- Pince:nincs megadva
- Parkolási lehetőség:Beállóban
- Fűtés:Elektromos
- Bútorozottság:nincs megadva
- Fényviszony:nincs megadva
- Tájolás:nincs megadva
- Kilátás:nincs megadva
- Internet:nincs megadva
- Klíma:nincs megadva
- Akadálymentesített:nincs megadva
- Energiatanúsítvány:nincs megadva
- Villany:Van
- Víz:Van
- Gáz:Nincs
- Csatorna:Nincs
- Kapcsolatfelvétel

Dudás Ágnes
+36-(30)-179-0970
Mondd meg a hirdetőnek, hogy a megveszLAK-on találtad a hirdetést.
Hitel ajánlatok
Ingatlan hirdetés leírása
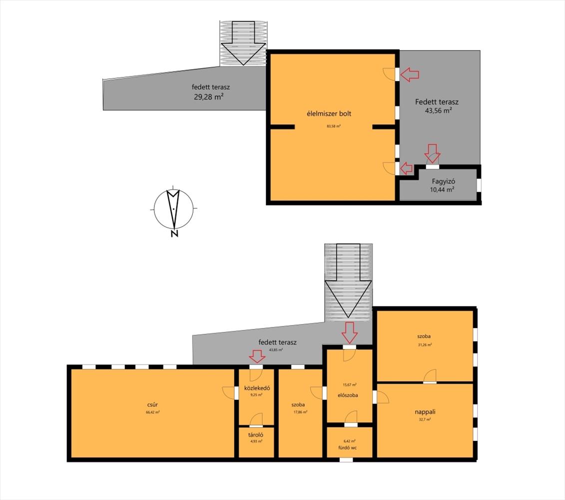
Selyeb településen, kétszintes polgári ház eladó. A felső szin...
Selyeb településen, kétszintes polgári ház eladó.
A felső szinten található két szoba és amerikai konyhás nagy nappali, valamint egy fürdőszoba (ami nemrég lett felújítva).
Az alsó szinten bolt (mely jelenlegi is üzemel), fagyizó és egy fedett terasz van. Az ingatlan így vállalkozásra is tökéltetesen megfelelő.
A környezet szép, az ingatlant erdős rész veszi körül így pihenésre, kikapcsolódársa alkalmas.
Ajánlom annak, aki nyugodt csendes környezetben szeretne élni és már egy működő vállalkozást szeretne átvenni!
Amennyiben felkeltettem érdeklődését, kérem, hívjon bizalommal! FIX 3% lakáshitelre megvehető
Tetszett ez az eladó Selyebi átlagos állapotú 2 szobás családi ház? Hívd fel a hirdetőt most, és tudj meg mindent erről az eladó családi házról! Ha gondolod nézelődj tovább az eladó ház Selyeb oldal hirdetései között. Ennek az eladó háznak az ára 20500000 Ft és mivel az alapterülete 350 négyzetméter, ezért az átlagos négyzetméterára 58571 HUF/m2.
Az eladó házak menüpontban további hirdetések között is böngészhetsz. Ha van kedved, akkor böngészhetsz a Dudás Ágnes összes hirdetése között, vagy akár a/az GDN Ingatlanhálózat összes hirdetése között is.

