Eladó jó állapotú ház Siklós
| Kedvencbe | Megosztás | Árfigyelő |
| FIX 3% lakáshitelre megvehető | ||
| 59 500 000 HUF | ||
Ingatlan adatai
- Eladó vagy kiadó:Eladó
- Település:Siklós
- Kategória:Ház
- Alkategória:Családi ház
- Alapterület:160 m2
- Telekterület:619 m2
- Csere is:Nem
- Hirdető:Cég
- Élő videón megtekinthető:Nem
- Építés éve:1980
- Szobaszám:3
- Állapot:Jó állapotú
- Hány szintes az ingatlan:2 szintes
- Tetőtér:nincs megadva
- Komfortosság:nincs megadva
- Parkolási lehetőség:Udvaron
- Fűtés:Gáz (cirko)
- Bútorozottság:nincs megadva
- Fényviszony:Napfényes
- Tájolás:nincs megadva
- Kilátás:nincs megadva
- Internet:nincs megadva
- Akadálymentesített:nincs megadva
- Energiatanúsítvány:C
- Villany:Telken belül
- Víz:Telken belül
- Gáz:Telken belül
- Csatorna:nincs megadva
- Üzenetküldés
- Hívás

Referencia szám: M309056

Hitel ajánlat
Ingatlan hirdetés leírása
Eladó Ház, Siklós, Eladó jó állapotú ház - Siklós
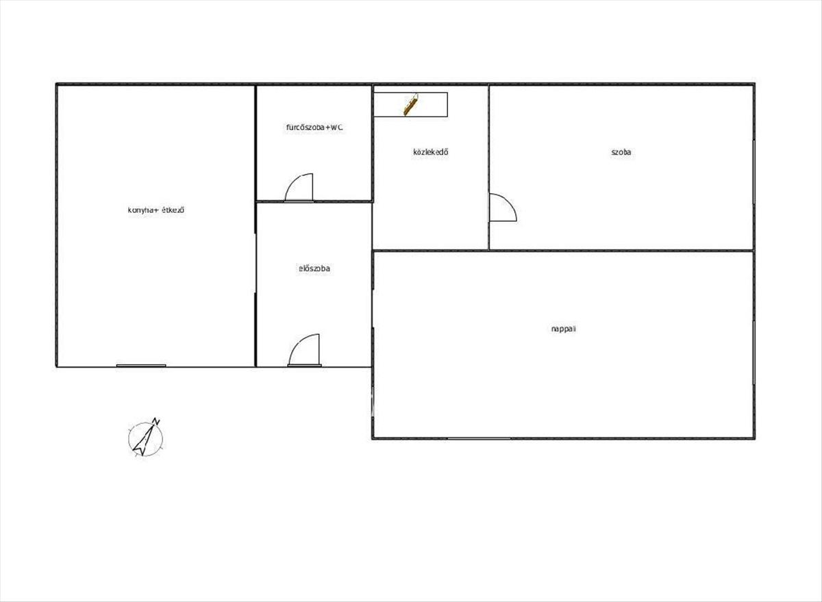
Eladó Kétszintes Ház Siklós, Családi Házas Övezetében!A város egyik csendes részén ajánljuk figyelmébe ezt a 70-es években épült, kétszintes, 80 m2 alapterületű, összesen 160 m2-es lakóterű, önálló családi házat.
Az alsó szint teljesen felújított: nappali + 1 hálószoba, tágas konyha étkezővel, fürdőszoba WC-vel és előtér található, ahol a víz- és villanyvezetékek, gépészet teljes cseréje megtörtént.
A felső szint 80 négyzetméter, ahol minden nyílászáró korszerűsítve, a válaszfalak és betonozás előkészítve, így az új tulajdonos saját elképzelése szerint alakíthatja ki a fürdőszobát, WC-t, konyhát, burkolatokat.
Az ingatlan új tetővel és teljes körű szigeteléssel rendelkezik. Fedett, három gépkocsi számára alkalmas beálló, a 619 négyzetméteres, teljesen sík telken. Kiválóan alkalmas két generáció együttélésére!
A közelben minden megtalálható: iskola, óvoda, boltok, buszmegálló.
További információért forduljon hozzám bizalommal!
Referenciaszám: M309056
Referencia szám: m309056-ml FIX 3% lakáshitelre megvehető
Tetszett ez az eladó Siklósi jó állapotú 3 szobás családi ház? Hívd fel a hirdetőt most, és tudj meg mindent erről az eladó családi házról! Ha gondolod nézelődj tovább az eladó ház Siklós oldal hirdetései között. Ennek az eladó háznak az ára 59500000 Ft és mivel az alapterülete 160 négyzetméter, ezért az átlagos négyzetméterára 371875 HUF/m2.
Az eladó ház menüpontban további hirdetések között is böngészhetsz. Ha van kedved, akkor böngészhetsz a Reisz Éva összes hirdetése között, vagy akár a/az OTPip Pécs Király utca 75 - OTP Ingatlanpont Iroda összes hirdetése között is.

