Eladó jó állapotú ház - Siófok
- INGYENES HIRDETÉS FELADÁS
Ingatlan adatai
- Eladó vagy kiadó:Eladó
- Település:Siófok
- Kategória:Ház
- Alkategória:Családi ház
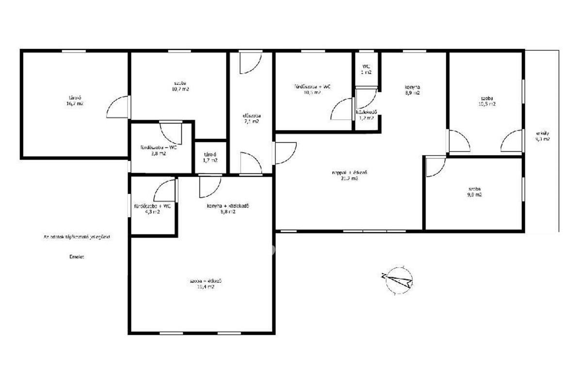
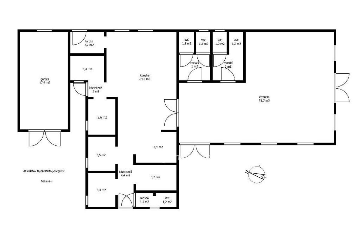
- Alapterület:260 m2
- Telekterület:716 m2
- Csere is:Nem
- Hirdető:Cég
- Élő videón megtekinthető:Nem
- Építés éve:2000
- Szobaszám:5
- Állapot:Jó állapotú
- Hány szintes az ingatlan:2 szintes
- Tetőtér:nincs megadva
- Komfortosság:nincs megadva
- Pince:nincs megadva
- Parkolási lehetőség:Teremgarázsban
- Fűtés:Gáz (cirko)
- Bútorozottság:nincs megadva
- Fényviszony:Jó
- Tájolás:nincs megadva
- Kilátás:nincs megadva
- Internet:nincs megadva
- Klíma:nincs megadva
- Akadálymentesített:nincs megadva
- Energiatanúsítvány:nincs megadva
- Villany:nincs megadva
- Víz:nincs megadva
- Gáz:nincs megadva
- Csatorna:nincs megadva
- Kapcsolatfelvétel

Kalmár Edit Virág
+36-(70)-942-4398
Mondd meg a hirdetőnek, hogy a megveszLAK-on találtad a hirdetést.
Referencia szám: M287483
Ingatlan hirdetés leírása
Eladó Ház, Siófok, Eladó jó állapotú ház - Siófok
Somogy megyében, Siófok Balatonszéplakon, az Ezüstparton, 260 m2-es ház 716 m2-es telken eladó. Az ingatlan Balatonszéplak központi részén helyezkedik el, csendes, nyugodt környezetben, 350 m-re az Ezüstpart szabadstrandtól. a 2 szintes, 5 szobás ház fűtését cirkó gázkazán biztosítja radiátor hőleadókkal, amit kandalló, illetve klíma egészít ki. Az ingatlan 141 m2-es felső szintjén 3 lakóegység található, a 119 m2-es alsó szintje étteremként és konyhaként került kialakításra. Parkolni a 17 m2-es garázsban, illetve zárt kocsibeállón lehetséges. a ház kialakítása lehetővé teszi a két szint különálló használatát is, így kiváló lehetőség akár több generációs családoknak állandó lakhatásra vagy nyaralásra, valamint üzleti vállalkozásnak, illetve befektetési céllal részben vagy egészben kiadásra is. Budapesti belvárosi lakás értékegyeztetéssel beszámítható. Bővebb információért keressen telefonon! Hitel.hu - Hasonlítsa össze a bankok lakáshitel ajánlatait


