+ 14 fotó

Eladó jó állapotú ház Siófok
| |  |
| Kedvencbe | Megosztás | Árfigyelő |
- Eladó vagy kiadó:Eladó
- Település:Siófok
- Kategória:Ház
- Alkategória:Családi ház
- Alapterület:220 m2
- Telekterület:603 m2
- Csere is:Nem
- Hirdető:Cég
- Élő videón megtekinthető:Nem
- Építés éve:1946
- Szobaszám:8
- Állapot:Jó állapotú
- Hány szintes az ingatlan:2 szintes
- Tetőtér:nincs megadva
- Komfortosság:nincs megadva
- Parkolási lehetőség:Garázsban
- Fűtés:Gáz (cirko)
- Bútorozottság:nincs megadva
- Fényviszony:nincs megadva
- Tájolás:nincs megadva
- Kilátás:nincs megadva
- Internet:nincs megadva
- Akadálymentesített:nincs megadva
- Energiatanúsítvány:nincs megadva
- Villany:nincs megadva
- Víz:nincs megadva
- Gáz:nincs megadva
- Csatorna:nincs megadva

Katona Tamás
Mondd meg a hirdetőnek, hogy a megveszLAK-on találtad a hirdetést.

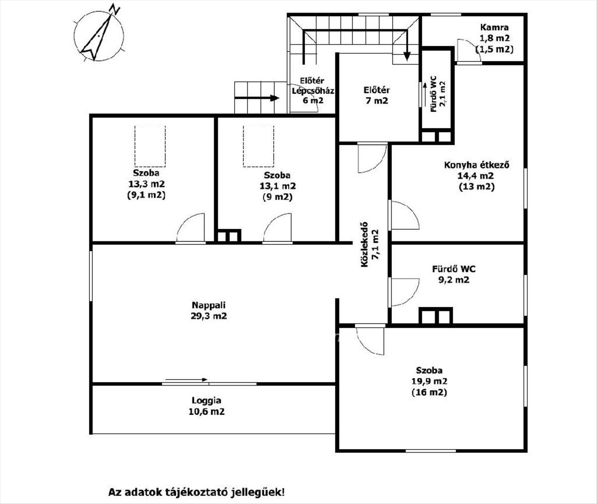
Balaton déli part, Siófok, 220 m2 társasházzá alakított 2 lakó...
Balaton déli part, Siófok, 220 m2 társasházzá alakított 2 lakóegységes családi ház eladó. a földszint + tetőtér kialakítású ingatlan frekventált üdülőövezetben helyezkedik el, a Balaton-parttól 280 méterre. Az épület több elemében felújításra került az elmúlt években, homlokzati hőszigetelés, műanyag nyílászárók kerültek beépítésre, tetőhéjazat csere történt. a lakások megközelítése külön bejáraton keresztül biztosított, a terület kerítéssel kettéválasztott, a tetőtéri lakás megközelítése zárt lépcsőházon keresztül történik. a lakások külön mérőórákkal rendelkeznek. a lakások fűtése külön kombi gázkazánról működik. Minkét lakóegységben biztosított a vegyes tüzelésű kiegészítő fűtés. a lakások minősített kereskedelmi szálláshelyként vannak nyilvántartva. Az épület alkalmas lehet több generáció együttélésére, valamint befektetésre, kiadásra. Városközpont 800 méter távolságban van. Bővebb információért keressen telefonon!
Hitel.hu - Hasonlítsa össze a bankok lakáshitel ajánlatait Hasonló ingatlan hirdetések