Eladó újszerű állapotú ház - Siófok
- INGYENES HIRDETÉS FELADÁS
Ingatlan adatai
- Eladó vagy kiadó:Eladó
- Település:Siófok
- Kategória:Ház
- Alkategória:Családi ház
- Alapterület:157 m2
- Telekterület:681 m2
- Csere is:Nem
- Hirdető:Cég
- Élő videón megtekinthető:Nem
- Építés éve:2024
- Szobaszám:8
- Állapot:Újszerű, kitűnő
- Hány szintes az ingatlan:nincs megadva
- Tetőtér:nincs megadva
- Komfortosság:nincs megadva
- Pince:nincs megadva
- Parkolási lehetőség:nincs megadva
- Fűtés:nincs megadva
- Bútorozottság:nincs megadva
- Fényviszony:nincs megadva
- Tájolás:D
- Kilátás:nincs megadva
- Internet:nincs megadva
- Klíma:nincs megadva
- Akadálymentesített:nincs megadva
- Energiatanúsítvány:nincs megadva
- Villany:Van
- Víz:Van
- Gáz:Nincs
- Csatorna:Van
- Kapcsolatfelvétel

Hitel ajánlatok
Ingatlan hirdetés leírása
Többgenerációs balatoni bázist keresel, ahol együtt lehet a cs...
Többgenerációs balatoni bázist keresel, ahol együtt lehet a család, de mindenkinek megvan a saját tere vagy kiadáson töröd a fejed?
Siófok-Sóstón ez a 8 szobás, két szintes, kiváló állapotú családi ház garázzsal, 6 felszíni beállóval és zöldre néző panorámával vár. Két külön nappali-étkezős szint, hatalmas erkély és terasz, önálló tároló – tökéletes nagycsaládnak, “szülők lent, gyerekek fent” felállásra, vagy akár vendégezésre, vállalkozás mellé.
Csendes utca, sok autóhely - külön beálló rész a két szintnek! - Balaton-közeli életérzés – ha tágas otthont keresel, ez nagyon komoly opció.
Referencia szám: h515232
Besorolás: lakóingatlan, családi ház (emeletes ikerház)
Építés módja: tégla (30 cm)
Telek méret: 681 nm
Nettó méret: 128, 8 nm
Bruttó méret: 157, 4 nm
Belmagasság: 270 cm
Szobák száma: 8
Fürdőszobák: 2
Külön álló wc-k: 2
Terasz: van
Erkély: van
Szintszám: 2 szint (földszint + 1. emelet - külön megközelíthetőek)
Fűtés/hűtés: hűtő-fűtő klíma (3, 5 kW), elektromos fűtőpanel és kandalló
Építés éve: 2024
Tájolás: D
Közút burkolata: aszfaltozott
Utcafronti szélesség: 20 m
Medence, jakuzzi: kertben van rá lehetőség
Szauna: kertben van rá lehetőség
Pince: nincs
Tároló: van
Garázs: van (2 férőhelyes)
Nyitott beálló férőhely: 6
Állapot
- ingatlan: kiváló
- ház/homlokzat állapota: kiváló
- szigetelés: korszerű (15 cm)
- nyílászárók: jó állapotú, modern műanyag, földszinten redőny és szúnyogháló
- tető: jó állapotú, ácsolt szerkezet, betoncserép
- burkolás, festés: igényes, jó állapotú (járólap + laminált)
Közművek
- víz: bekötve (csapadék szabad elvezetéssel), fúrt kút és locsolás mérő nincs
- gáz: nincs
- villany: bekötve (földkábel, 3x25A), érintésvédelem van, H tarifa nincs
- csatorna: bekötve
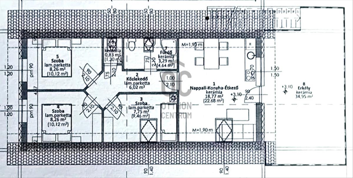
Helyiséglista:
Földszint: 64, 5 nm + 22, 23 nm terasz
- nappali-étkező: 22. 68 M²
- hálószoba: 9. 62 M²
- hálószoba: 10. 12 M²
- hálószoba: 10. 12 M²
- fürdőszoba: 4. 64 M²
- wc: 1, 3 m²
- közlekedő: 6. 02 M²
- terasz: 20. 23 M²
- garázs / tároló:
1. emelet: 64, 3 nm + 34, 95 nm erkély
- nappali-étkező: 22. 68 M²
- hálószoba: 9. 46 M²
- hálószoba: 10. 12 M²
- hálószoba: 10. 12 M²
- fürdőszoba: 4. 64 M²
- wc: 1. 3 M²
- közlekedő: 6. 02 M²
- erkély: 34. 95 M²
Összesen: 128, 8 nm + 57, 18 nm terasz/erkély = 185, 98 nm
Az energetikai tanúsítvány készítése folyamatban van, amint rendelkezésre áll, úgy azzal a hirdetés frissítésre kerül.
(A képek között mesterséges intelligencia segítségével készített látványtervek, 3d alaprajzok is vannak, amikkel bemutatom az ingatlanban rejlő potenciált. Ezek a képek tájékoztató jellegűek, a jelenlegi helyzettől eltérhetnek. )
Keressen bizalommal! Hitel.hu - Hasonlítsa össze a bankok lakáshitel ajánlatait
Tetszett ez az eladó Siófoki újszerű állapotú 8 szobás családi ház? Hívd fel a hirdetőt most, és tudj meg mindent erről az eladó családi házról! Ha gondolod nézelődj tovább az eladó ház Siófok oldal hirdetései között. Ennek az eladó háznak az ára 173000000 Ft és mivel az alapterülete 157 négyzetméter, ezért az átlagos négyzetméterára 1101911 HUF/m2.
Az eladó házak menüpontban további hirdetések között is böngészhetsz. Ha van kedved, akkor böngészhetsz a Renner Tamás összes hirdetése között, vagy akár a/az Otthon Centrum Balatonföldvár összes hirdetése között is.
További hirdetéseket találsz az eladó Balaton déli parti nyaralók között. Ha a teljes régió kínálata érdekel, nézd meg az eladó Balatoni nyaralók oldalt.

