Eladó újszerű állapotú ház Siófok
| Kedvencbe | Megosztás | Árfigyelő |
| Kedvezményes lakáshitel ajánlatok | ||
| 360 000 000 HUF | ||
Ingatlan adatai
- Eladó vagy kiadó:Eladó
- Település:Siófok
- Kategória:Ház
- Alkategória:Családi ház
- Alapterület:240 m2
- Telekterület:2681 m2
- Csere is:Nem
- Hirdető:Cég
- Élő videón megtekinthető:Nem
- Építés éve:2002
- Szobaszám:6
- Állapot:Újszerű, kitűnő
- Hány szintes az ingatlan:2 szintes
- Tetőtér:nincs megadva
- Komfortosság:nincs megadva
- Parkolási lehetőség:Udvaron
- Fűtés:Gáz (cirko)
- Bútorozottság:nincs megadva
- Fényviszony:Napfényes
- Tájolás:nincs megadva
- Kilátás:nincs megadva
- Internet:nincs megadva
- Klíma:Van
- Akadálymentesített:nincs megadva
- Energiatanúsítvány:nincs megadva
- Villany:Telken belül
- Víz:Telken belül
- Gáz:Telken belül
- Csatorna:nincs megadva
- Üzenetküldés
- Hívás

Vincze László György
Mondd meg a hirdetőnek, hogy a megveszLAK-on találtad a hirdetést.
Referencia szám: M307812

Hitel ajánlat
Ingatlan hirdetés leírása
Eladó Ház, Siófok, Eladó újszerű állapotú ház - Siófok
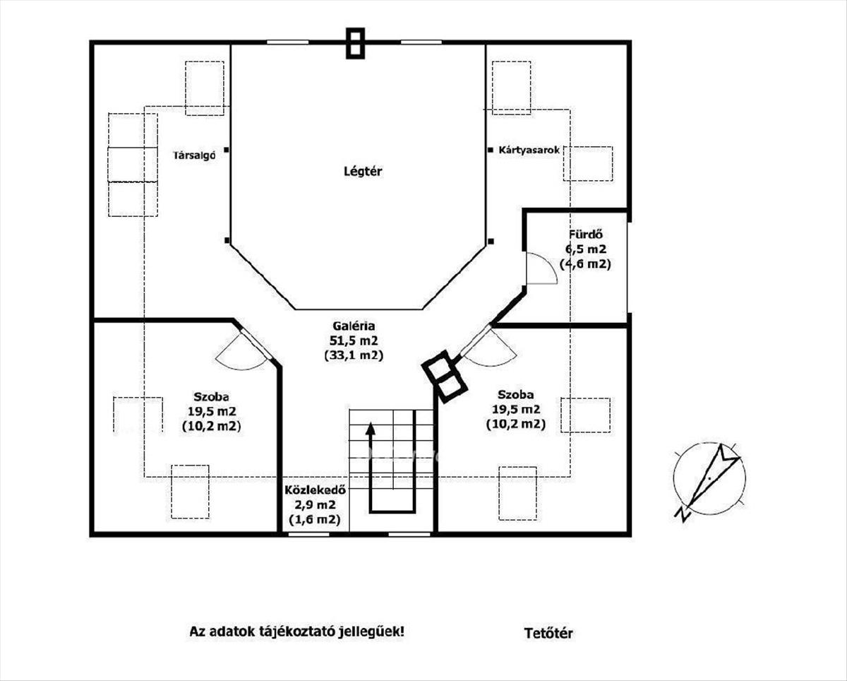
Balaton déli partján, Siófokon, 280 m2-es családi ház eladó. Az ingatlan Szabadifürdő városrész csendes utcájában helyezkedik el, Balaton-part 900 méterre, m7 autópálya csatlakozás 2400 méter távolságban van. Az átlagosnál nagyobb méretű telek területe, ami 3 ingatlan összevonásával alakult ki: 2681 m2. a parkszerű igényes kertépítészeti elemekkel körülvett lakóépület intim külső terekkel kapcsolódik a belső lakótérhez. a kertben úszómedence, kerti tó, grillezőhely, kerti lak épített elemek találhatók parkolókkal, kerti utakkal és sétányokkal. a kertfenntartáshoz fúrt kút és automata öntözőrendszer került létesítésre. a telek súlypontjában elhelyezett lakóépület belső terei kedvező benapozást biztosítanak. a három szintes épület földszintjén lakótér teraszkapcsolatokkal és hálószobák vizesblokkokkal, tetőtérben galéria és hálószoba funkciók vizesblokkal kerültek kialakításra. a pinceszinten kazánház és tároló kapott helyet. a belső terek egyedi építészeti megoldásokkal kivitelezettek, igényes felületekkel, burkolatokkal. a villaépület alkalmas állandó lakhatásra vagy nyaralás céljára is. Az ár tartalmazza a teljes berendezést. Bővebb információért keressen telefonon! M307812360000000 Ft
Referencia szám: m307812 Hitel.hu - Hasonlítsa össze a bankok lakáshitel ajánlatait

