Eladó újszerű állapotú ház Siófok
| Kedvencbe | Megosztás | Árfigyelő |
| Kedvezményes lakáshitel ajánlatok | ||
| 360 000 000 HUF | ||
Ingatlan adatai
- Eladó vagy kiadó:Eladó
- Település:Siófok
- Kategória:Ház
- Alkategória:Családi ház
- Alapterület:240 m2
- Telekterület:2681 m2
- Csere is:Nem
- Hirdető:Cég
- Élő videón megtekinthető:Nem
- Építés éve:2002
- Szobaszám:6
- Állapot:Újszerű, kitűnő
- Hány szintes az ingatlan:2 szintes
- Tetőtér:nincs megadva
- Komfortosság:nincs megadva
- Parkolási lehetőség:Udvaron
- Fűtés:Gáz (cirko)
- Bútorozottság:nincs megadva
- Fényviszony:Napfényes
- Tájolás:nincs megadva
- Kilátás:nincs megadva
- Internet:nincs megadva
- Klíma:Van
- Akadálymentesített:nincs megadva
- Energiatanúsítvány:nincs megadva
- Villany:Telken belül
- Víz:Telken belül
- Gáz:Telken belül
- Csatorna:nincs megadva
- Üzenetküldés
- Hívás

Referencia szám: M307812

Hitel ajánlat
Ingatlan hirdetés leírása
Eladó Ház, Siófok, Eladó újszerű állapotú ház - Siófok
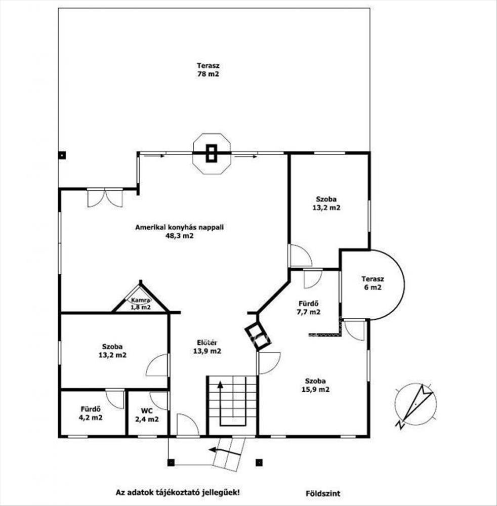
Balaton déli partján, Siófokon, 280 m2-es családi ház eladó. Az ingatlan Szabadifürdő városrész csendes utcájában helyezkedik el, Balaton-part 900 méterre, m7 autópálya csatlakozás 2400 méter távolságban van. Az átlagosnál nagyobb méretű telek területe, ami 3 ingatlan összevonásával alakult ki: 2681 m2. a parkszerű igényes kertépítészeti elemekkel körülvett lakóépület intim külső terekkel kapcsolódik a belső lakótérhez. a kertben úszómedence, kerti tó, grillezőhely, kerti lak épített elemek találhatók parkolókkal, kerti utakkal és sétányokkal. a kertfenntartáshoz fúrt kút és automata öntözőrendszer került létesítésre. a telek súlypontjában elhelyezett lakóépület belső terei kedvező benapozást biztosítanak. a három szintes épület földszintjén lakótér teraszkapcsolatokkal és hálószobák vizesblokkokkal, tetőtérben galéria és hálószoba funkciók vizesblokkal kerültek kialakításra. a pinceszinten kazánház és tároló kapott helyet. a belső terek egyedi építészeti megoldásokkal kivitelezettek, igényes felületekkel, burkolatokkal. a villaépület alkalmas állandó lakhatásra vagy nyaralás céljára is. Az ár tartalmazza a teljes berendezést. Bővebb információért keressen telefonon!M307812
Az OTP Ingatlanpont, mint egyetlen közvetlen banki hátterű ingatlanközvetítő társaság teljes körű ügyintézéssel áll az eladók és a vevők rendelkezésére! a kínálatunkból választott ingatlan finanszírozásához minősített fogyasztóbarát, piaci és kedvezményes hitel- és lízingkonstrukciókat kínálunk (lakásvásárlási hitel, CSOK plusz, szabad felhasználású hitel, babaváró hitel, céges hitelek, pályázatok). Az adásvételi szerződés megkötéséhez igény szerint megbízható ügyvédi közreműködést biztosítunk, és segítséget nyújtunk az adásvételhez kapcsolódó egyéb ügyek intézéséhez.
Ha az új ingatlana megvásárlásához a jelenlegi ingatlanát el kell adnia, abban is szívesen
Referencia szám: m307812-ml Hitel.hu - Hasonlítsa össze a bankok lakáshitel ajánlatait

