Eladó jó állapotú ház - Siófok
- INGYENES HIRDETÉS FELADÁS
Ingatlan adatai
- Eladó vagy kiadó:Eladó
- Település:Siófok
- Kategória:Ház
- Alkategória:Családi ház
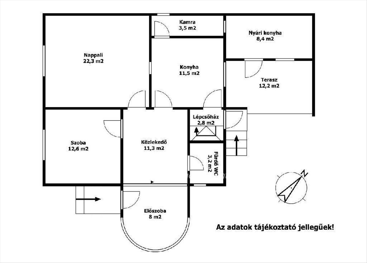
- Alapterület:75 m2
- Telekterület:316 m2
- Csere is:Nem
- Hirdető:Cég
- Élő videón megtekinthető:Nem
- Építés éve:1970
- Szobaszám:2
- Állapot:Jó állapotú
- Hány szintes az ingatlan:Földszintes
- Tetőtér:nincs megadva
- Komfortosság:nincs megadva
- Pince:nincs megadva
- Parkolási lehetőség:Udvaron
- Fűtés:Elektromos
- Bútorozottság:nincs megadva
- Fényviszony:Jó
- Tájolás:nincs megadva
- Kilátás:nincs megadva
- Internet:nincs megadva
- Klíma:nincs megadva
- Akadálymentesített:nincs megadva
- Energiatanúsítvány:nincs megadva
- Villany:Telken belül
- Víz:Telken belül
- Gáz:Telken belül
- Csatorna:nincs megadva
- Kapcsolatfelvétel

Hitel ajánlatok
Ingatlan hirdetés leírása
Eladó Ház, Siófok, Eladó jó állapotú ház - Siófok
Balaton déli part, Siófok, 75 m2 családi ház eladó. Az ingatlan a Belvároshoz közel, forgalmas út mellett helyezkedik el. a földszintes lakóépület több elemében az elmúlt években felújításra került, nyílászárók nagy részben korszerű műanyag szerkezetek, a külső homlokzat hőszigetelést és új vakolatot kapott, a tető, tetőhéjazat megújult. a belső térben új padlóburkolatok készültek, közlekedőben elektromos padlófűtéssel. a fűtés elektromos infra panelekkel megoldott. a lakótérben hűtő fűtő klímaberendezés került kiépítésre. a jól karbantartott épület kedvező tájolású, déli-nyugati benapozású. a konyhabútor a vételár részét képezi, a többi berendezés további megegyezés tárgya lehet. a telek területe 316 m2. a lakóépület részben alápincézett, mögötte nyári konyha és fedett terasz található. Balaton-part 1500 méterre, autóval 5 perc alatt elérhető. Otthon Start Program. Bővebb információért keressen telefonon! FIX 3% lakáshitelre megvehető
Tetszett ez az eladó Siófoki jó állapotú 2 szobás családi ház? Hívd fel a hirdetőt most, és tudj meg mindent erről az eladó családi házról! Ha gondolod nézelődj tovább az eladó ház Siófok oldal hirdetései között. Ennek az eladó háznak az ára 79000000 Ft és mivel az alapterülete 75 négyzetméter, ezért az átlagos négyzetméterára 1053333 HUF/m2.
Az eladó házak menüpontban további hirdetések között is böngészhetsz. Ha van kedved, akkor böngészhetsz a Németh Andrásné összes hirdetése között, vagy akár a/az OTPip Siófok Sió utca 10 - OTP Ingatlanpont Iroda összes hirdetése között is.
További hirdetéseket találsz az eladó Balaton déli parti nyaralók között. Ha a teljes régió kínálata érdekel, nézd meg az eladó Balatoni nyaralók oldalt.

