Eladó új építésű ház Siófok
| Kedvencbe | Megosztás | Árfigyelő |
| FIX 3% lakáshitelre megvehető | ||
| 87 000 000 HUF | ||
Ingatlan adatai
- Eladó vagy kiadó:Eladó
- Település:Siófok
- Kategória:Ház
- Alkategória:Családi ház
- Alapterület:84 m2
- Telekterület:300 m2
- Csere is:Nem
- Hirdető:Cég
- Élő videón megtekinthető:Nem
- Építés éve:2026
- Szobaszám:4
- Állapot:Új építésű
- Hány szintes az ingatlan:nincs megadva
- Tetőtér:nincs megadva
- Komfortosság:nincs megadva
- Parkolási lehetőség:nincs megadva
- Fűtés:nincs megadva
- Bútorozottság:nincs megadva
- Fényviszony:nincs megadva
- Tájolás:NY
- Kilátás:nincs megadva
- Internet:nincs megadva
- Akadálymentesített:nincs megadva
- Energiatanúsítvány:nincs megadva
- Villany:Van
- Víz:Van
- Gáz:Utcában
- Csatorna:Van
- Üzenetküldés
- Hívás


Hitel ajánlat
Ingatlan hirdetés leírása
Siófok, Ezüstpart közelében - Egy új ház azoknak, akik nem sze...
Siófok, Ezüstpart közelében - Egy új ház azoknak, akik nem szeretnek zajban élni.Eladásra kínálunk egy új építésű, földszintes, önálló családi házat Siófokon, az Ezüstpart szabadstrandtól 1000 méterre.
Az ingatlan kulcsrakészen kerül átadásra, a kivitelezés minden részlete a hosszú távú minőségre és az alacsony üzemeltetési költségekre lett optimalizálva.
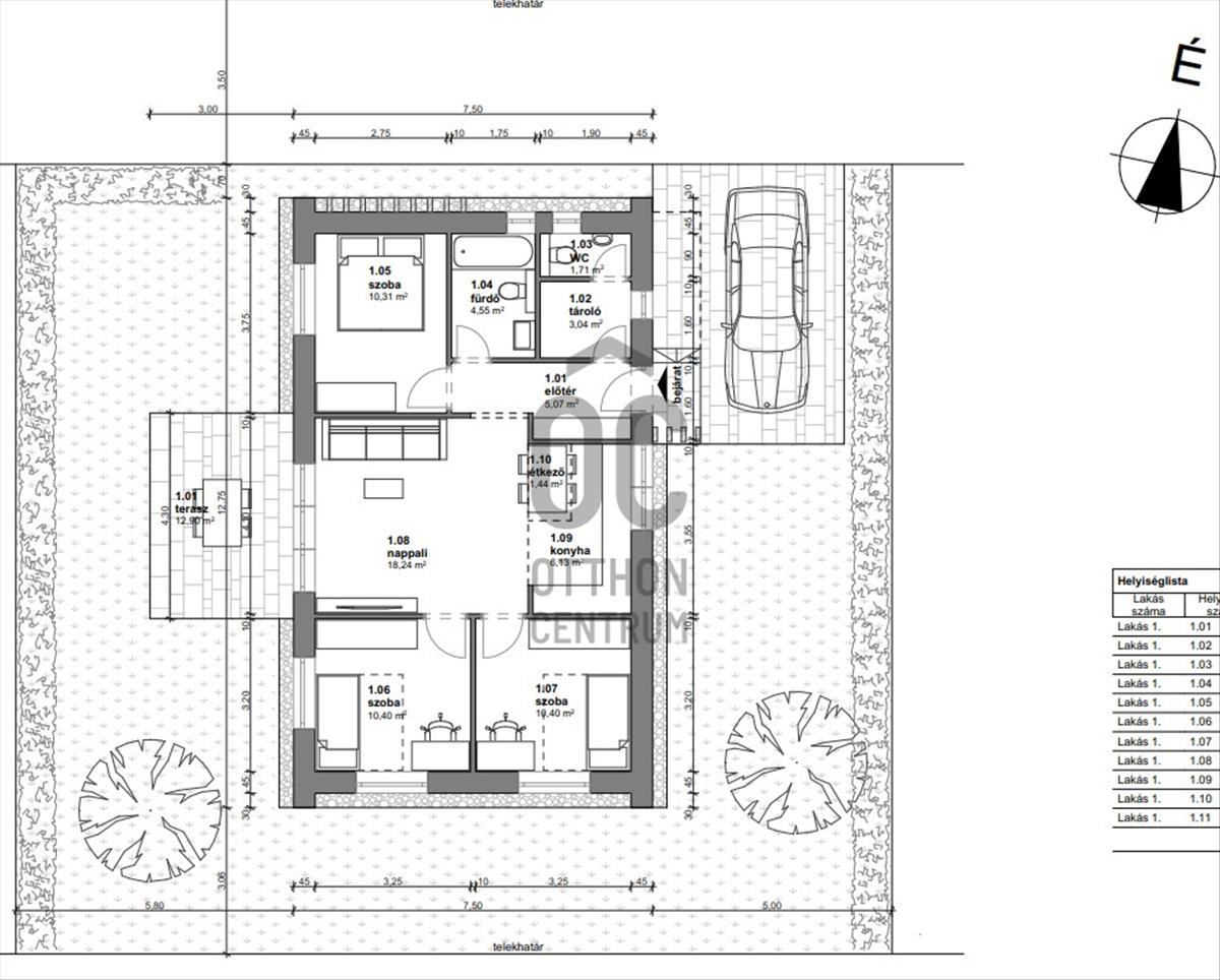
A 61–71 m² alapterületű házak átgondolt alaprajzzal készülnek:
Nappali–amerikai konyha, 2–3 hálószoba, fürdőszoba, külön wc, terasz.
Földszintes kialakítás, természetes térarányok, élhető méretek.
A szerkezet 30 cm-es Porotherm téglából épül, korszerű hőszigeteléssel, háromrétegű nyílászárókkal.
A fűtést és a használati melegvizet levegő–víz hőszivattyú biztosítja, padlófűtéssel.
A burkolatok és szaniterek meghatározott árkategórián belül választhatók.
Az ár tartalmazza a 3d kerítést, a tereprendezést és a felszíni gépkocsi-beállót.
A projektben összesen 12 önálló ház épül, külön bejárattal és saját kerítéssel.
A főbb építőanyagok már rendelkezésre állnak. Várható átadás: 2026. Második negyedév.
A környezet csendes, zöld, nem a főút és nem a Balaton felőli oldalon található.
A Balaton 15 perc sétával elérhető, a mindennapi infrastruktúra néhány percre van.
Ez az ingatlan nem látványos ígéretekkel operál.
Egyszerűen jól lesz megépítve.
Tervdokumentáció és részletes műszaki tartalom kérhető.
Projekt bemutatása
Siófok, Ezüstpart közelében – új, földszintes otthon csendes, zöld környezetben.
Olyan házat keres, ahol a nyugalom és a praktikum találkozik?
Eladásra kínálunk Siófokon, az Ezüstpart szabadstrandtól mindössze 1000 méterre egy kulcsrakész, önálló, földszintes családi házat.
A kivitelezés fókusza az időtálló minőség és az alacsony üzemeltetési költség – felesleges ígéretek nélkül.
Átgondolt elrendezés, élhető méretek: 61–71 m² alapterület.
Nappali–amerikai konyha, 2–3 hálószoba, fürdőszoba, külön wc, TERASZ.
A lépcsőmentes kialakítás és a természetes térarányok kényelmes mindennapokat biztosítanak az idősebb korosztály számára is.
Megbízható műszaki tartalom:
- 30 cm porotherm falazat, korszerű HŐSZIGETELÉS
- háromrétegű nyílászárók a jobb hő- és hangkomfortért
- levegő–víz hőszivattyú és padlófűtés – energiahatékony működés
- Burkolatok és szaniterek választhatók meghatározott árkategórián belül
- Az ár tartalmazza:
3D kerítés, tereprendezés, felszíni GÉPKOCSI-BEÁLLÓ
Projektinformációk:
Összesen 12 önálló ház épül, mindegyik külön bejárattal és saját KERÍTÉSSEL.
A főbb építőanyagok rendelkezésre állnak.
Várható átadás: 2026. Második NEGYEDÉV.
Elhelyezkedés:
CSENDES, zöld utcák, nem a főút és nem a Balaton felőli oldal.
A Balaton 15 perc séta, a mindennapi infrastruktúra néhány percre elérhető.
„Ez az ingatlan nem látványos ígéretekkel operál. Egyszerűen jól lesz megépítve. ”
Tervdokumentáció és részletes műszaki tartalom kérhető.
#Siofok #ezustpart_kozeleben #uj_haz #foldszintes #onallo_csaladi_haz #kulcsrakeszen #eladohaz #siofok #eladohazsiofok#fokihegy FIX 3% lakáshitelre megvehető

