Eladó ház - Sopron
- INGYENES HIRDETÉS FELADÁS
Ingatlan adatai
- Eladó vagy kiadó:Eladó
- Település:Sopron
- Kategória:Ház
- Alkategória:Családi ház
- Alapterület:132 m2
- Telekterület:nincs megadva
- Csere is:Nem
- Hirdető:Cég
- Élő videón megtekinthető:Nem
- Építés éve:2025
- Szobaszám:3
- Állapot:nincs megadva
- Hány szintes az ingatlan:nincs megadva
- Tetőtér:nincs megadva
- Komfortosság:nincs megadva
- Pince:nincs megadva
- Parkolási lehetőség:nincs megadva
- Fűtés:nincs megadva
- Bútorozottság:Bútorozott
- Fényviszony:nincs megadva
- Tájolás:nincs megadva
- Kilátás:nincs megadva
- Internet:nincs megadva
- Klíma:Van
- Akadálymentesített:nincs megadva
- Energiatanúsítvány:nincs megadva
- Villany:nincs megadva
- Víz:nincs megadva
- Gáz:nincs megadva
- Csatorna:nincs megadva
- Kapcsolatfelvétel

Deák Gabriella
+36309535417
Mondd meg a hirdetőnek, hogy a megveszLAK-on találtad a hirdetést.
Hitel ajánlatok
Ingatlan hirdetés leírása
Ahol a minőség otthonná válik. Ahol minden részlet mögött szán...
Ahol a minőség otthonná válik.
Ahol minden részlet mögött szándék van.
Ahol a kompakt méret nem kompromisszum, hanem előny.
Újszerű, kiemelkedő műszaki színvonalú családi ház eladó a Kuruc-dombon – 135 000 000 Ft
Lakótér: 87, 73 m² | Pince: 44, 28 m² | Összes nettó: 132, 01 m² | Telek: 311 m²
(A pince alapterületéből 16, 98 m² tartozik a lakószint hasznos teréhez. )
Lakás hasznos alapterület: 104, 71 m²
KURUC-DOMB — ahová jó hazaérkezni
Ebben a rendezett, elegáns és csendes városrészben vált eladóvá egy olyan otthon, amely nem építészeti túlzásokat, hanem ravaszul megtervezett, élhető minőséget kínál.
2025-Ben újjáépítéssel és új építési elemekkel kiegészítve született újjá, így szerkezeti és műszaki szempontból is a mai magas elvárásoknak megfelelő.
Az energetikai teljesítménye pedig biztosíték:
a közel nulla energiaigény szintje felett teljesít — ez hosszú távon alacsony rezsit és stabil értéktartást jelent.
A ház atmoszférája — elegancia, fény, tudatos harmónia
Ez az otthon nem akar többet mutatni annál, ami:
jól működő, szerethető, elegánsan megtervezett tér, ahol minden négyzetméter értéket képvisel.
A nagy méretű, padlószintig érő üvegfelületek egész nap természetes fényt hoznak be, amitől a ház világos, nyugodt és kiegyensúlyozott hangulatú.
Az előszoba kellemesen tágas, minőségi beépített bútorokkal — már itt érezhető a ház átgondolt, kényelmes ritmusa.
A konyha–étkező–nappali egybenyíló tere igazán otthonos és praktikus:
– nagy méretű, prémium gépekkel felszerelt konyha
– konyhaszigettel, kényelmes étkezővel
– jól arányolt nappalival
A beépített bútorok minden helyiségben asztalos minőségben készültek — ezáltal a lakótér rendezett, funkcionális és időtálló.
(A vételár valamennyi beépített bútort és beépített gépet tartalmazza. )
A két hálószoba barátságos, élhető méretű, igazi privát tereket biztosítva.
A hálókhoz vezető közlekedőben egy ízléses, praktikus beépített szekrény található, amely tovább növeli a lakótér rendezettségét és kényelmét.
A fürdőszoba (WC-vel) letisztult, elegáns és jól szervezett.
Minőségi burkolatokkal és kellemes térarányokkal a ház egyik legszebb helyisége.
A nappaliban működő kandalló melegséget és valódi otthonhangulatot ad, miközben a lakószinten kiépített padlófűtés egyenletes és komfortos meleget biztosít.
A telek pont megfelelő méretű: jól használható, élhető, mégis könnyen karbantartható.
A terasz a konyha–étkező–nappali meghosszabbítása, így a kert a mindennapi élet természetes kültéri folytatásává válik.
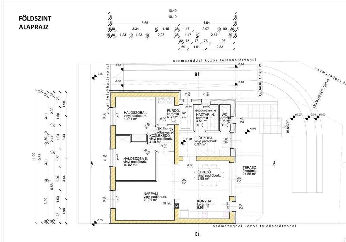
FÖLDSZINT – 87, 73 m² | Átgondolt, élhető lakótér
Helyiségek méretekkel:
- Előszoba – 8, 97 m²
- wc – 1, 96 m²
- Háztartási helyiség – 4, 51 m²
- Konyha – 9, 98 m²
- Étkező – 9, 98 m²
- Nappali – 20, 21 m²
- Közlekedő – 4, 19 m²
- Fürdőszoba (WC-vel) – 6, 30 m²
- Hálószoba i. – 10, 81 M²
- Hálószoba II. – 10, 82 M²
A konyha–étkező–nappali összefüggő tere a ház szíve.
A nagy tolóajtóval nyíló terasz a mindennapok természetes kültéri folytatása.
PINCE – 44, 28 m² | Rendkívül jól használható szint
Helyiségek méretekkel:
- Háztartási tároló i. – 23, 14 M²
- Háztartási tároló II. – 16, 98 M²
- Közlekedő – 4, 16 m²
- wc + kézmosó-val
- injektálva
A rendezett, szellős pince ideális tárolásra, műhelynek, hobbinak vagy sporteszközöknek.
MŰSZAKI tartalom — stabil, megbízható, időtálló
Fűtés – hűtés – melegvíz
- teljes lakószinten padlófűtés
- Bosch Condens 2300 kondenzációs gázkazán
- split klímaberendezés
- működő kandalló (Schiedel kémény)
- Napelemrendszer – 5, 1 kWp
- 17 db as-60pr panel
- Fronius inverter
Nyílászárók
- 7 kamrás műanyag ablakok
- 3 rétegű üvegezés
- padlószintig érő üvegfelületek
- elektromos alumínium redőnyök
- beépített szúnyoghálók
Extrák
- központi vízlágyító
- Patent Security riasztórendszer
- 5 m³-es esővíztartály
Parkolás
- saját udvari autóbeálló
- utcán díjmentes parkolás
Kinek ajánlom?
Ez a ház azoknak szól, akik:
– párban vagy egy gyermekkel keresnek minőségi, jól működő otthont
– szeretnék a kompakt méret előnyeit, de nem mondanak le a prémium műszaki tartalomról
– nagyra értékelik a földszintes, könnyen fenntartható, kényelmes életteret
– idősebb korosztály, akiknek fontos a letisztult alaprajz és a biztonság
– mindenkinek, aki egy elegáns, értékálló és élhető házat keres Sopron egyik legjobb környékén
Egy ház, ami nem hivalkodik – hanem okosan megtervezett.
És nem kompromisszum – hanem minőségi választás. Nézzük ugye? FIX 3% lakáshitelre megvehető

