- >>
- eladó ingatlanok
- >>
- eladó ház
- >>
- eladó ház Sükösd
- >>
Eladó átlagos állapotú ház - Sükösd
| | |||
| Kedvencnek jelölöm | Elküldöm emailben | Megosztás | Szavazás |
| FIX 3% lakáshitelre megvehető | |||
| 28 900 000 HUF | |||
Ingatlan adatai
- Eladó vagy kiadó:Eladó
- Település:Sükösd
- Kategória:Ház
- Alkategória:Családi ház
- Alapterület:117 m2
- Telekterület:4087 m2
- Csere is:Nem
- Hirdető:Cég
- Élő videón megtekinthető:Nem
- Építés éve:1990
- Szobaszám:3
- Állapot:Átlagos állapotú
- Hány szintes az ingatlan:nincs megadva
- Tetőtér:nincs megadva
- Komfortosság:nincs megadva
- Parkolási lehetőség:nincs megadva
- Fűtés:Gáz
- Bútorozottság:nincs megadva
- Fényviszony:nincs megadva
- Tájolás:K
- Kilátás:nincs megadva
- Internet:nincs megadva
- Akadálymentesített:nincs megadva
- Energiatanúsítvány:nincs megadva
- Villany:Van
- Víz:Van
- Gáz:Van
- Csatorna:Van
- Üzenetküldés
- Hívás

Simonics Tímea Éva
Mondd meg a hirdetőnek, hogy a megveszLAK-on találtad a hirdetést.

Hitel ajánlat
Ingatlan hirdetés leírása
Bajától mindössze 10 km-re, az 51-es út mellett vár rád ez a 1...
Bajától mindössze 10 km-re, az 51-es út mellett vár rád ez a 117 m2-es, 3 szobás családi ház, 4087 m2-es telekkel, amelynek a végében a Dunavölgyi-főcsatorna folyik – tökéletes horgászatra, pihenésre, vagy akár saját kis „vízparti oázis” kialakítására.A ház egy 1990-ben épült, masszív, jó szerkezeti állapotú ingatlan, felújítandó állapotú, így szabadon alakíthatod ki a saját stílusodra. Összközműves, a 3 fázis rendelkezésre áll, plusz fúrt kút is van.
Fűtése: gáz- és vegyes tüzelésű kazánnal kialakított központi fűtés.
Meleg víz: villanybojler.
Belmagasság: 275 cm.
Tájolás: keleti.
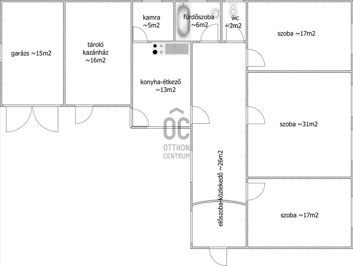
Elrendezés:
– tágas előszoba és közlekedő,
– 3 külön nyíló, nagy méretű szoba,
– fürdőszoba + külön WC,
– konyha-étkező + kamra,
– a ház folytatásában: tároló, kazánház, garázs, fatároló, baromfi ól.
Az ingatlan jelenleg már nem lakott, de a lomtalanítás és takarítás még folyamatban van.
Tehermentes, térképészetileg rendezett, és rövid határidővel birtokba vehető.
Ha szeretnél egy hatalmas telekkel rendelkező, vízkapcsolatos ingatlant, amit a saját ízlésed szerint újíthatsz fel, akkor ez az ajánlat neked szól! Keress bizalommal, nézzük meg együtt! FIX 3% lakáshitelre megvehető

