- >>
- eladó ingatlanok
- >>
- eladó ház
- >>
- eladó ház Sümeg
- >>
Eladó felújított ház - Sümeg
| | |||
| Kedvencnek jelölöm | Elküldöm emailben | Megosztás | Szavazás |
| FIX 3% lakáshitelre megvehető | |||
| 43 000 000 HUF | |||
Ingatlan adatai
- Eladó vagy kiadó:Eladó
- Település:Sümeg
- Kategória:Ház
- Alkategória:Családi ház
- Alapterület:116 m2
- Telekterület:593 m2
- Csere is:Nem
- Hirdető:Cég
- Élő videón megtekinthető:Nem
- Építés éve:1980
- Szobaszám:3
- Állapot:Felújított
- Hány szintes az ingatlan:nincs megadva
- Tetőtér:nincs megadva
- Komfortosság:nincs megadva
- Pince:Nincs
- Parkolási lehetőség:nincs megadva
- Fűtés:Gáz (cirko)
- Bútorozottság:nincs megadva
- Fényviszony:nincs megadva
- Tájolás:nincs megadva
- Kilátás:nincs megadva
- Internet:nincs megadva
- Akadálymentesített:nincs megadva
- Energiatanúsítvány:nincs megadva
- Villany:nincs megadva
- Víz:nincs megadva
- Gáz:nincs megadva
- Csatorna:nincs megadva
- Üzenetküldés
- Hívás


Hitel ajánlat
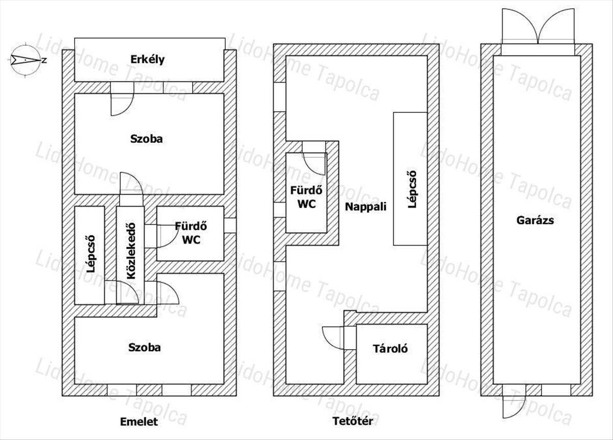
Ingatlan hirdetés leírása
Családoknak ideális, öné lehet akár máris!
Kizárólag irodánkat bízták meg!Kiváló állapotú, családias beosztású ház, mely akár több generáció részére is ideális választás lehet.
A lido home eladásra kínálja, jó beosztású sümegi SORHÁZÁT.
A lido home által kínált sümegi sorház jellemzői:
- 1980-as építés, 1994-es teljes körű felújítás, 8 cm hőszigetelés, palatető, 4 szint, tágas garázs, gondozott kert, kerti tárolók, . . .
- Központi fűtését vegyes tüzelésű kazán és gázkazán is táplálja - hogy ön választhasson.
- a tágas lakóteret, terasz, erkély, pince, több autó befogadására alkalmas garázs, termő gyümölcsfákkal teli kert, egészíti ki. a kert használhatóságát egy fatároló, és egy tágas kerti házikó fokozza.
- Nettó 116 m2-es lakótér 3 szinten. Szélső sorház, egy 4 lakrészes épületben.
- Praktikus beosztású - rugalmasan alakítható épület! - Itt megtalálhatja számításait!
- Az ingatlanhoz tartozó 593 m2-es telekrész, kertként funkcionáló része körbekerített, önállóan használható.
- Biztonságos, családias, nyugodt környék, barátságos szomszédok, a nyugodt hétköznapokért!
Amennyiben a lido home által kínált tapolcai családi (sor-) ház, vagy bármely a kínálatunkban található ingatlan felkeltette érdeklődését, hívjon bizalommal a megadott telefonszámon.
Vásárolna, de nincs rá keret? Kollégám díjmentes, bank semleges hitel-ügyintézéssel áll rendelkezésére!
LIDO home- Ingatlanok egy életen át! FIX 3% lakáshitelre megvehető

